ライオンズマンション小島町 805 3LDK
5490万円
66㎡ が仲介手数料無料!new
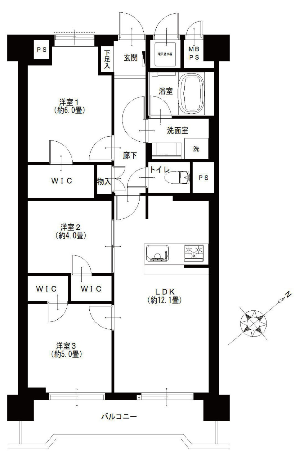
西葛西駅徒歩8分の新耐震適合物件にて、3つのWICを備えた収納力抜群のリノベーション住戸が誕生しました。8階南向きの明るい室内と一新された水回りが、ゆとりある多世代家族の快適な日常を支えます。
仲介手数料無料でできますので、171万円ほどオトクになります!

ライオンズマンション小島町
ライオンズマンション小島町 805 3LDK 66㎡
| 価格 | ||||
|---|---|---|---|---|
| 面積 | 66m² (バルコニー7.89m²) | |||
| 間取 | 3LDK 8階 |
|||
| 管理費等 | 管理費 9300円 修繕積立金 15250円 (合計 24,550円) | |||
| 所在地 | 東京都江戸川区西葛西3丁目10-22 | |||
| 設備・条件 | ||||
西葛西駅徒歩8分の好立地と、3つのウォークインクローゼットを備えた驚異の収納力が自慢です。部屋が片付かないストレスを抱える多世帯家族へ、整理整頓が自然に叶う住まいをご提案します。
大規模修繕工事実施済みかつ新耐震適合の安心感が、永住の地を探している方の不安を解消します。古い建物のメンテナンス状況を懸念される方でも、一新された内装と合わせて納得の品質を感じていただけます。
8階部分の南向きバルコニーからは心地よい光が差し込み、家事の合間に一息つける癒しの空間となります。周辺の生活利便施設と整備された街並みが、子育てや仕事に忙しい毎日の負担を軽減してくれます。
2026年1月20日時点の売出価格は5490万円でした。
耐震改修工事済。
平成21年12月に耐震改修工事が実施されて新耐震同等の耐震性となっています。東京都のサイトで管理組合の取組が紹介されています。 築46年8か月となります。 ローン控除の可否はご確認をお願いたします。
リノベーション状況について
リノベーション:電気温水器交換、CF張替、システムキッチン交換、下足入れ交換、ユニットバス交換、洗濯水栓器具交換、洗面台交換、防水パン交換、トイレ交換、スイッチパネル設置、全室クロス張替、ダウンライト設置、全フローリング張替、照明器具設置、全建具交換、玄関人感センサー設置
| 交通 | 東西線 西葛西 徒歩8分 | ||
|---|---|---|---|
| 築年 | 1979/05築 | 現況/引渡/入居時期 | |
| 土地権利 | 所有権 | 土地面積 | m² |
| 物件番号 | 260120000006 | 掲載期限日 | 2026/02/17 |
| 状態 | 売り出し中 | 取引態様 | 仲介 |
更新
- 普通の不動産屋ではできないこと
押し売りせず、丁寧に寄り添うのがロータス不動産のスタイルです。知識と経験を活かし、物件の良いところだけでなく、気になるところも、表面的な情報だけでなく、見えにくいリスクや将来性まで、あらゆる方向から包み隠さず情報おお伝えしています。ご期待ください。
手続きを知る
ローンのことなど
その他はよくあるご質問をご覧ください。
その他はよくあるご質問をご覧ください。
他のお部屋の販売情報
沿線の販売中物件
ジースクエア 8790万円 8階 2
シティテラス東陽町 13400万円 14階 2
ジョイフル門前仲町第一 4798万円 6階 2
西葛西ビューハイツA棟 4398万円 7階 2
グリーンパーク東砂 5580万円 7階 3
藤和シティホームズ茅場町 12980万円 4階 3
ジョイフル門前仲町第一 4980万円 5階 1
コスモ門前仲町 6780万円 8階 2
江戸川区内の売り物件を探す
西葛西エリアのマンションカタログ
- ダイアパレス西葛西2
- 西葛西ガーデンハウス
- ブランシエラ西葛西
- オーベル西葛西
- エクセレントシティ西葛西
- ザガーデンズ西葛西
- コスモ西葛西ロイヤルフォルム
- ヴェルビュ西葛西
- コスモ西葛西2
- ライオンズマンション小島町
- ライオンズマンション西葛西駅前
- リノア西葛西
- ライオンズガーデンシティ西葛西
- モナークレジデンス西葛西
- ライオンズステーションプラザ西葛西
- ナイスパークフロンテージ西葛西
- マイキャッスル西葛西
- サンクレイドル葛西
- ダイアパレス西葛西
- パークホームズ西葛西ブライトフォート
- ライオンズガーデン西葛西第2
- コスモ西葛西ステーションアベニュー
- エヴァーグリーン西葛西
- 西葛西パークホームズ
- 西葛西パークファミリア
- リベール西葛西
- ライオンズプラザ西葛西
- バームハイツ西葛西弐番館
- ソフトタウン小島町
- 日商岩井小島町マンション
- クレストフォルム西葛西パークサイド
- モアステージ西葛西
- バームハイツ西葛西
- グランヒルズ西葛西
- ゼファー西葛西
- ランドステージ西葛西
- 西葛西スカイハイツ
- ライオンズマンション西葛西第2
- 小島スカイハイツ
- フェアロージュ西葛西四季の道
- ニューハウス西葛西
- 中銀新葛西マンシオン
- クレストフォルム西葛西リバーウィング
- プライマリー西葛西クオーレ
- ライオンズ西葛西プライムマークス
- グリーンパーク西葛西
- サンシティ西葛西
- ライオンズマンション西葛西第5
- コスモ西葛西
- 小島第3スカイハイツ
- コンテ西葛西
- グリーンヒル西葛西
- 西葛西ビューハイツ
- シティコープ西葛西
- 小島第2スカイハイツ
- 西葛西グリーンホームズ2
- コンドミニアム葛西
- レジデントプレイス西葛西