グリーンヒル西葛西の売買情報[仲介手数料無料]

代表・春日秀典
昭和56年築・全318戸の大規模団地でありながら、東急コミュニティーによる日勤管理と熊谷組・戸田建設の共同施工で、堅実な管理と構造を保っています。 駅徒歩7分圏内に「イオン葛西」「行船公園」「西葛西小学校」がそろい、子育てと日常利便がどちらも揃う、下町らしい暮らしの土台が整った住まいです。
23区の中古マンション売買を扱う会社です
現在、当社サイトには売出物件の掲載はありませんが、不動産サイトで公開されているグリーンヒル西葛西が仲介手数料が無料・半額・割引になる場合があります。入力1~2分でメールで確認できます(なお賃貸の扱いはありません)
仲介手数料無料・半額・割引って?
売主から手数料をもらえるので買主は免除。これが手数料無料のカラクリ。それに該当しない物件は手数料半額です。もちろん、手数料の安さだけがウリではなく、知識と経験を活かし、いいづらい情報、リスクも事前に説明し、お客様の購入・売却をサポートしています。そのことは実績やブログなどで確認いただけるでしょう。

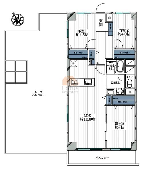
グリーンヒル西葛西の解説

代表・春日秀典
グリーンヒル西葛西のレビュー
837,448円/戸の積立金残高で、残高はおおむね良好で、順調な管理体制をうかがえます。長期修繕計画もあります。耐震性は2号棟は確認済み好立地の大規模物件です。
物件画像
駅チカ・買い物ラク・管理しっかり。昭和の大規模団地で、ムリなく家族の暮らしを。
立地に関する情報
グリーンヒル西葛西は、東京メトロ東西線「西葛西」駅から徒歩6〜7分。都心へも乗り換えなしでアクセスできるうえ、近くには「西葛西小学校」や「行船公園」もあり、子育て世帯にもうれしい環境です。
建物外観・共用部・共用施設に関する情報
昭和56年築、鉄骨鉄筋コンクリート造14階建て。全部で318戸の大規模マンションで、建物の規模と安心感が魅力です。施工は熊谷組・戸田建設、管理は東急コミュニティー。日勤管理で、管理体制もきちんとしています。
周辺環境に関する情報
徒歩4分の「行船公園」は緑いっぱいの区立公園。広い敷地でのんびり散歩や遊びが楽しめます。周辺には専門学校も多く、昔ながらの下町エリアながら活気があります。
周辺施設、利便性についての情報
北東には「イオン葛西」、徒歩7分の「サニーモール西葛西」、徒歩4分の「ファミリーマート」など、日々の買い物には困りません。駅近なのに静かで、生活に必要なものが近所でそろう便利な場所です。
イオン葛西店が隣接
「イオン葛西店」は同じ街区にあり隣接しています。徒歩1分です。
維持・管理の体制
東急コミュニティーの全部委託(日勤)管理。
維持・修繕の対応状況
長期修繕計画: あり
修繕積立金の額: ¥266,308,561(2024-05-31時点)、戸あたり¥837,448円です。残高はおおむね良好で、順調な管理体制をうかがえます。
過去の修繕履歴:
- 2024年 集会室・管理事務室改修工jい
- 2023年 電気設備更新
- 2022年 引込開閉基盤更新
- 2021年 汚雑排水管更生工事
- 2019年 衛生設備工事
- 2018年 マンション内道路等舗装改修工事
- 2017年 1号館共用部鉄部塗装工事
- 2016年 1号館汚雑排水管更新工事
- 2016年 2号館屋上防水改修工事
- 2014年 鉄骨階段塗装他工事
- 2013年 2号館大規模修繕工事
- 2012年 エレベーター改修工事
施設・設備
- 駐車場 : あり(空き状況は要確認)17,000~20,000円/月
- バイク置場 : あり
- 駐輪場 : あり
- エレベータ : あり
- 宅配ボックス : 無し
- オートロック : 無し
- TVドアフォン : 無し
- その他施設 : 防犯カメラ
マンションルール
- ペットの可否 : 不可
- 事務所の可否 : 不可
- 楽器の可否 : 規約参照
災害・耐震
1981/03築で、 総戸数318戸の 大規模な鉄骨鉄筋コンクリート地下1階付14階建て。
2号棟は確認済み2026年4月の時点で 築45年 1か月となります。
洪水により予想される浸水深さは3.0 ~ 5.0mです。高潮により予想される浸水深さは3.0 ~ 5.0mです。
洪水や高潮の浸水想定図
物件概要
| 所在地 |
東京都江戸川区西葛西3丁目9ー9
|
||
|---|---|---|---|
| 交通 | 東西線 西葛西駅 徒歩7分 | ||
| 築年 | 1981/03築 | ||
| 規模・構造 | 鉄骨鉄筋コンクリート 地下1階付 14階建て 総戸数318戸 | ||
| 新築時売主 | 砂町製作所 | ||
| 施工 | 社熊谷組、戸田建設 | ||
| 土地権利 | 所有権 | ||
| 用途地域 | 準工業 | ||
| 管理形態 | 全部委託 日勤 | ||
| 管理会社 | 東急コミュニティー | ||
相場・価格履歴
過去に当社サイトが公開情報から収集したリノベーションマンションの売出履歴です。 また、それから想定できる「個人売り物件の予想価格」「不動産業者による買取価格」をシミュレーションしました。 売却相談も歓迎。
| 時期 | フロア | 面積 | リノベ物件 相場 (履歴・万円/㎡) |
通常状態の 相場 (想定目安・万円/㎡) |
買取の相場 (想定目安・万円/㎡) |
備考 |
|---|---|---|---|---|---|---|
| 2025/11 | 3階 | 約99㎡ | @70.26 | @61.8 | @44.2 | |
| 2025/11 | 3階 | 約99㎡ | @68.26 | @59.7 | @42.7 | |
| 2025/10 | 3階 | 約99㎡ | @70.26 | @61.8 | @44.2 | |
| 2025/10 | 11階 | 約75㎡ | @68.52 | @59.3 | @42.1 | |
| 2025/7 | 4階 | 約82㎡ | @72.51 | @63.4 | @45.2 | |
| 2025/6 | 7階 | 約75㎡ | @64.66 | @55.5 | @39.2 | |
| 2025/5 | 9階 | 約75㎡ | @66.12 | @56.9 | @40.3 | |
| 2024/7 | 14階 | 約82㎡ | @68.88 | @59.7 | @42.5 | |
| 2024/5 | 13階 | 約88㎡ | @59.83 | @50.9 | @36 | |
| 2023/12 | 12階 | 約75㎡ | @63.23 | @54 | @38.2 | |
| 2023/9 | 11階 | 約82㎡ | @66.34 | @57.2 | @40.6 | |
| 2023/8 | 7階 | 約80㎡ | @68.46 | @59.2 | @42.1 | |
| 2023/5 | 5階 | 約75㎡ | @53.97 | @44.8 | @31.3 | |
| 2023/4 | 5階 | 約75㎡ | @55.29 | @46.1 | @32.2 | |
| 2023/3 | 5階 | 約75㎡ | @56.75 | @47.5 | @33.3 | |
| 2023/2 | 5階 | 約75㎡ | @59.26 | @50.1 | @35.2 | |
| 2023/1 | 5階 | 約75㎡ | @59.26 | @50.1 | @35.2 | |
| 2022/10 | 14階 | 約75㎡ | @63.23 | @54 | @38.2 | |
| 2022/8 | 14階 | 約75㎡ | @65.87 | @56.7 | @40.1 |
出典:当社サイト
過去の掲載物件
こちらの事例物件は成約となりましたが、当社ではほかにも仲介手数料もしくは半額で物件を紹介・お取り扱いしております。
過去掲載物件 / 3階 / 99.61m²
仲介料手数料無料で取扱していました
- 所在階
- 3階
- 間取り
- 3LDK
- 専有面積
- 99.61㎡
- バルコニー
- 29.33㎡
- 管理費
- 12800円
- 修繕積立金
- 14940円
西葛西駅徒歩6分、90㎡超の広々とした角住戸で、住み心地を追求したリノベーション物件が新登場 。イオン葛西店徒歩2分の利便性に加え、L字バルコニーの陽当りと約19帖のLDKが、豊かで快適な都市生活を提供します 。

過去掲載物件 / 4階 / 82.61m²
仲介料手数料無料で取扱していました
- 所在階
- 4階
- 間取り
- 3LDK
- 専有面積
- 82.61㎡
- バルコニー
- ㎡
- 管理費
- 円
- 修繕積立金
- 円
グリーンヒル西葛西2号館の仲介手数料がフリーです。
・徒歩圏のファミリータイプの住まいです。
・江戸川区西葛西3丁目の所在で、東西線天空橋駅の徒歩8分です。
過去掲載物件 / 9階 / 75.6m²
仲介料手数料無料で取扱していました
- 所在階
- 9階
- 間取り
- 3LDK
- 専有面積
- 75.6㎡
- バルコニー
- 8.52㎡
- 管理費
- 9700円
- 修繕積立金
- 11340円
南西向き・9階の住戸で、陽当たりと眺望に恵まれた開放的な暮らしを実現。キッチン・浴室など水回りを含むリフォーム済の3LDKは、75㎡超のゆとりある間取りと快適性が魅力。

過去掲載物件 / 7階 / 80.32m²
仲介料手数料無料で取扱していました
- 所在階
- 7階
- 間取り
- 3LDK
- 専有面積
- 80.32㎡
- バルコニー
- 84.26㎡
- 管理費
- 10300円
- 修繕積立金
- 12050円
・「グリーンヒル西葛西1号館」は14階建て7階部分・南西角部屋・75㎡大型ルーフバルコニー付きです。
・内装はリノベーションです。

過去掲載物件 / 5階 / 75.6m²
仲介料手数料無料で取扱していました
- 所在階
- 5階
- 間取り
- 3LDK
- 専有面積
- 75.6㎡
- バルコニー
- 8.25㎡
- 管理費
- 9700円
- 修繕積立金
- 11340円
・「グリーンヒル西葛西」は5階南西向き・対面キッチン・食洗器付きです。
・内装はリノベーションです。

地図、周辺環境
江戸川区西葛西3丁目9ー9
学校区
小学校:江戸川区立西葛西小学校(2分)
中学校:江戸川区立西葛西中学校(9分)
Convenience Store
- ローソン 西葛西二丁目店 2分
- ファミリーマート 西葛西小学校前店 2分
- サンクス 江戸川西葛西五丁目店 4分
- ローソン 西葛西店 5分
- ローソン 西葛西三丁目店 5分
SuperMarket,etc
- アコレ 西葛西駅北店 6分
- 新鮮市場マルエイ 西葛西店 5分
- まいばすけっと 西葛西3丁目店 4分
- アコレ 北葛西4丁目店 6分
- イオン 葛西店 2分
Medical
- 西葛西ファミリー歯科 2分
- えんどう医院 3分
- 西葛西・井上眼科病院 3分
- 葛西ひまわり歯科 3分
Kindergarten
- ちゃいれっく西葛西駅ビル第二保育園 6分
- 西葛西おひさま保育園 7分
- ちゃいれっく西葛西駅ビル保育園 6分
Bank
- 群馬銀行葛西支店 4分
- 朝日信用金庫葛西支店 3分
- 荘内銀行イオン葛西支店 2分
- 東京東信用金庫 ハロープラザ西葛西 3分
- 東日本産業振興協同組合 5分
Parks
- 行船公園 5分
電話:03-5809-1630
営業時間:9:30~20:00/水曜定休
よくある仲介手数料無料・半額Q&A
仲介手数料は無料とかいって、超怪しいんですが?
仲介手数料無料にできるわけは、売主さんから手数料をいただいているからです。リノベマンションなどの物件は広告費に相当する部分を仲介手数料として支払ってくれます。それでも23区ならかなりの高額ですので経営も大丈夫です。
仲介手数料無料のデメリットはありますか?
仲介手数料無料のデメリットと言われることは、話のすり替えだけで、実際には低レベルな手数料有料でも起こりえることです。ただし売却で仲介手数料無料をやるとデメリットが生じることもあります。
仲介手数料無料なんて大したことない不動産屋ですよね?
大きな会社ではないのはその通りですが、大したことない会社かと言われれば、ちがいます。ウェブに大量の露出をして、少々なら業界でも認識された会社です。今このページを見ていただいているのが何よりの証拠。押し売りせず、丁寧に寄り添うのがスタイルです。知識と経験を活かし、表面的な情報だけでなく、見えにくいリスクや将来性まで、あらゆる方向から包み隠さず情報をお伝えしています。ご期待ください。
仲介手数料は無料といっても、他にお金がかかるのではないですか?
ローン利用の場合、当社では調査事務手数料を33000円を頂いております※。これは不動産の調査に利用します。マンションの場合、積立金の残高の最新情報などは、管理会社に対する調査費用がかかり、これに使います。念ため申し上げますと、登記関連費用、銀行費用、税金、火災保険などの諸費用の負担がございますが、これらは外部のものなので、どの仲介業者でも差はありません。
その他「仲介手数料無料・半額のご質問と詳しい説明は以下のリンクからご覧いただけます。
仲介手数料無料・半額のよくあるご質問更新日:
近隣・沿線・類似の物件
沿線の販売中物件
ライオンズマンション神楽坂第3 6498万円 2階 1
アルファコート中葛西 6080万円 5階 2
東中野ハイム 5090万円 8階 2
中銀木場マンシオン 4399万円 2階 2
ライオンズプラザ西葛西 6999万円 12階 3
なぎさニュータウン4号棟 4999万円 2階 2
ユニーブル落合 7280万円 1階 2
コートシティ木場 6480万円 7階 2
ファミリータウン東陽E棟 6999万円 7階 3
ジェイパーク高田馬場プレジャーステージ 7998万円 4階 2
プラウド東陽町ガーデンズ 14480万円 13階 4
北砂四丁目住宅 3480万円 7階 2
コンドミニアム葛西 5380万円 9階 3
ライオンズマンション西葛西中央通り 5998万円 4階 3
北砂四丁目住宅 3180万円 9階 3
西葛西と同じ町内のマンションを調べよう
西葛西のマンションカタログの詳細はこちらです。
- ダイアパレス西葛西2
- 西葛西ガーデンハウス
- ブランシエラ西葛西
- オーベル西葛西
- エクセレントシティ西葛西
- ザガーデンズ西葛西
- コスモ西葛西ロイヤルフォルム
- ヴェルビュ西葛西
- コスモ西葛西2
- ライオンズマンション小島町
- ライオンズマンション西葛西駅前
- リノア西葛西
- ライオンズガーデンシティ西葛西
- モナークレジデンス西葛西
- ライオンズステーションプラザ西葛西
- ナイスパークフロンテージ西葛西
- マイキャッスル西葛西
- サンクレイドル葛西
- ダイアパレス西葛西
- パークホームズ西葛西ブライトフォート
- ライオンズガーデン西葛西第2
- コスモ西葛西ステーションアベニュー
- エヴァーグリーン西葛西
- 西葛西パークホームズ
- 西葛西パークファミリア
- リベール西葛西
- ライオンズプラザ西葛西
- バームハイツ西葛西弐番館
- ソフトタウン小島町
- 日商岩井小島町マンション
- クレストフォルム西葛西パークサイド
- モアステージ西葛西
- バームハイツ西葛西
- グランヒルズ西葛西
- ゼファー西葛西
- ランドステージ西葛西
- 西葛西スカイハイツ
- ライオンズマンション西葛西第2
- 小島スカイハイツ
- フェアロージュ西葛西四季の道
- ニューハウス西葛西
- 中銀新葛西マンシオン
- クレストフォルム西葛西リバーウィング
- プライマリー西葛西クオーレ
- ライオンズ西葛西プライムマークス
- グリーンパーク西葛西
- サンシティ西葛西
- ライオンズマンション西葛西第5
- コスモ西葛西
- 小島第3スカイハイツ
- コンテ西葛西
- 西葛西ビューハイツ
- シティコープ西葛西
- 小島第2スカイハイツ
- 西葛西グリーンホームズ2
- コンドミニアム葛西
- レジデントプレイス西葛西
区内の他地域のマンションを調べよう
区内の他の地域の物件も手数料割引にてご紹介できます。
- 江戸川区
- 一之江
- 一之江町
- 宇喜田町
- 江戸川
- 興宮町
- 北葛西
- 北小岩
- 小松川
- 鹿骨
- 鹿骨町
- 篠崎町
- 下篠崎町
- 中央
- 中葛西
- 新堀
- 西一之江
- 西小岩
- 西小松川町
- 西瑞江
- 二之江町
- 春江町
- 東葛西
- 東小岩
- 東小松川
- 東篠崎町
- 東瑞江
- 平井
- 船堀
- 松江
- 松島
- 南葛西
- 南小岩
- 南篠崎町
- 清新町
- 臨海町
- 大杉
- 上一色
- 本一色
- 松本
- 東篠崎
- 瑞江
- 上篠崎
- 北篠崎
- 谷河内
- 東松本
- 西篠崎
西葛西で似たような特徴のマンションを確認しよう
担当者

私が担当します:春日秀典
新築・中古を問わず、分譲マンションや戸建ての販売・開発に20年以上携わってきました。専門知識が欠かせない不動産の世界だからこそ、宅地建物取引士や公認不動産コンサルティングマスターなどの資格を活かして、日々の業務に取り組んでいます。
当社のサイトでは、物件の魅力はもちろん、将来的な資産価値や注意点まで率直にお伝えしています。「納得して取引できた」と思えるよう、判断材料をご提供しています。
なお、当サイトに掲載している情報は、すべて私自身が独自に執筆したものです。現場の肌感や最新動向も含め、信頼できる情報を目指しています。
不動産購入はそう何度もないご決断です。疑問や不安があれば、お気軽にご相談ください。納得感を持ってお取引いただけるよう、サポートいたします。