サンクタス本郷 401 2LDK
12480万円
56.56㎡ が仲介手数料無料!up
水道橋駅徒歩2分、5路線利用可能な都心の好アクセスと、ペット相談可のゆとりのある住空間で、あなたの都心生活をアップグレード。充実のアフターサービス保証と大規模修繕済みの安心感も魅力です。
仲介手数料無料でできますので、380万円ほどオトクになります!

サンクタス本郷
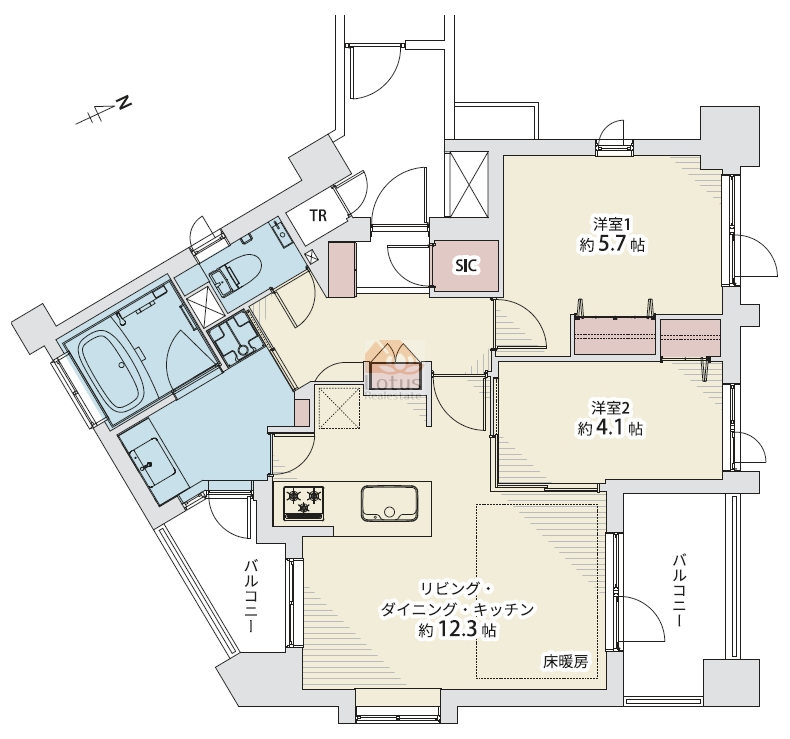
サンクタス本郷 401 2LDK 56.56㎡
| 価格 | ||||
|---|---|---|---|---|
| 面積 | 56.56m² 壁芯(バルコニー9.71m²) | |||
| 間取 | 2LDK 4階 南西 |
|||
| 管理費等 | 管理費 8900円 修繕積立金 21000円 (合計 29,900円) | |||
| 所在地 | 東京都文京区本郷1丁目11-8 | |||
| 設備・条件 | ||||
都営三田線「水道橋」駅徒歩2分を含む5路線利用可能なアクセスは、都心で働くあなたにとって、通勤のストレスを大幅に軽減します。多忙な日々の中でも、移動時間を短縮し、プライベートな時間をより多く確保できるでしょう。
専有ポーチ付きの角部屋は、プライバシーの確保と、採光・通風の良さという快適な住環境を提供します。共用部分を通る際のストレスが減り、明るく風通しの良い空間は、自宅での時間をより充実させてくれるでしょう。
ペット飼育相談可の物件は、愛するペットとの暮らしを望む方にとって大きなメリットです。大規模修繕工事実施済みで管理体制も良好なため、都心でありながらも安心と利便性を兼ね備えた、理想の生活を実現できます。
2025/10/28時点の売出価格は12480万円でした。
三田線「水道橋」駅徒歩2分で6駅5路線を使い分けられる立地に加え、東京ドームシティの気配が日常に混ざる感じがちょっと面白く、オートロックや宅配ボックスの実用性が“都心で無理しない暮らし”をそのまま形にしているように思えます。 ペット飼育可の明確なルールや中規模ならではの管理の行き届き方を体験すると、にぎわいと落ち着きが同時に成立する妙なバランスがこの物件らしさで、歩くたびに本郷の街との距離感がちょうどよく馴染んでいくという印象です。
ペットの飼育は可です。 1住戸につき、太陽50cm・体重10kg以内の犬・猫は1匹まで飼育可。
築23年10か月です。新耐震です。高い安全性が期待できます。 ローン控除は可です。
リノベーション状況について
リノベーション(2025年11月下旬完成): システムキッチン(W2290、食洗機)、ユニットバス(1418)、洗面台、防水パン、温水洗浄便座付トイレ、照明器具、建具、フローリング(LDK、洋室、廊下)、フロアタイル(玄関、洗面室、トイレ)、クロス貼、床暖房(LD)、室内クリーニング
| 交通 |
都営三田線 水道橋 徒歩2分 丸ノ内線 本郷三丁目 徒歩7分 JR総武線「水道橋」駅 徒歩7分、大江戸線「本郷三丁目」駅 徒歩8分、南北線他「後楽園」駅 徒歩9分、大江戸線他「春日」駅 徒歩10分 | ||
|---|---|---|---|
| 築年 | 2002/02築 | 現況/引渡/入居時期 | 空家 |
| 土地権利 | 所有権 | 土地面積 | m² |
| 物件番号 | 251028000003 | 掲載期限日 | 2025/12/16 |
| 状態 | 売り出し中 | 取引態様 | 仲介 |
更新
- 普通の不動産屋ではできないこと
押し売りせず、丁寧に寄り添うのがロータス不動産のスタイルです。知識と経験を活かし、物件の良いところだけでなく、気になるところも、表面的な情報だけでなく、見えにくいリスクや将来性まで、あらゆる方向から包み隠さず情報おお伝えしています。ご期待ください。
手続きを知る
ローンのことなど
ローン相談も対応いたします。ローンの対応力は、10年以上営業している会社の強みです。お客様専用の諸費用例を作成いたします。諸費用のローン化もご対応できます。親身に対応いたします。
その他はよくあるご質問をご覧ください。
ローン相談も対応いたします。ローンの対応力は、10年以上営業している会社の強みです。お客様専用の諸費用例を作成いたします。諸費用のローン化もご対応できます。親身に対応いたします。
その他はよくあるご質問をご覧ください。
他のお部屋の販売情報
沿線の販売中物件
サンビューハイツ白金台 9980万円 3階 2
パークタワー滝野川 15000万円 22階 2
ライオンズマンション蓮沼 3199万円 6階 1
シャルマンコーポ志村三丁目 3280万円 4階 3
ヴィオスガーデン城山 7698万円 10階 4
ヴィオスガーデン城山 7898万円 11階 3
蓮根パーク・ホームズ 4990万円 1階 3
グローベル志村坂上プライムシティ 4098万円 2階 2
文京区内の売り物件を探す
本郷エリアのマンションカタログ
- グランドメゾン本郷
- サンクタス本郷
- パークハウス本郷三丁目
- コノエ本郷三丁目
- プラウド本郷一丁目ディアージュ
- サンファミリー本郷
- ライオンズマンション本郷
- 本郷SYマンション
- プラウドタワー本郷東大前
- エースタンダード本郷三丁目
- ルミネ本郷赤門前
- トーカンキャステール本郷
- ザサンメゾン文京本郷エルド
- アールクレエ本郷
- 本郷春日マンション
- オープンレジデンシア本郷
- アクシルコート御茶の水
- プレジール本郷ステーションプラザ
- モンテベルデ東大前
- フォレストコート本郷菊坂
- シティハウス本郷弓町
- パークハウス本郷三丁目アーバンス
- パティオ本郷
- パークコート本郷真砂
- ハイシティ本郷
- アトラス本郷三丁目
- グラントゥルース本郷
- シャリエ本郷
- リビオレゾン本郷
- 真砂坂ハイツ
- クオス本郷本妙寺坂
- サンパークマンション本郷
- エクレール後楽園
- グラーサ本郷東大前
- ディアナコート本郷弓町
- ライオンズマンション東大赤門前
- 宝生ハイツ
- 本郷パークホームズ
- ブランズ本郷真砂
- 本郷パークハウスザプレミアフォート
- シティハイツ本郷
- 丸和ビル
- 藤和シティホームズ本郷
- 赤門アビタシオン
- ベルグリーンお茶の水
- ペガサスマンション本郷
- セントラルマンション本郷
- ベスト本郷
- スカーラ文京本郷スカイプラザ
- パレス御茶ノ水2号館
- パレス御茶ノ水1号館
- 赤門ロイヤルハイツ
- フローレンスパレス御茶ノ水フィアンコ
- ドムス本郷東野
- グランドメゾン本郷三丁目
- 後楽園キャステール
- ヴェラハイツ本郷
- ハイヴ本郷
- 本郷ニューハウジング
- 藤和本郷壱岐坂ホームズ
- ダイアパレス真砂
- 本郷モトフジ
- 湯島武蔵野マンション
- 中銀本郷マンシオン
- メゾンドール本郷
- トーア文京マンション
- クレール本郷
- 本郷サンハイツ
- 東野ビル後楽園住宅
- 東急アルス本郷