ランジュ2000ohjima 9F 3LDK
8980万円
74.07㎡ が仲介手数料無料!
大島駅から徒歩7分の好立地で、南東向き9階からの開放的なパノラマビューが日々の生活に彩りを与えます。フルリノベーション済みの機能的な3LDKは、ペット飼育も可能で家族全員が心地よく暮らせる住空間です。
仲介手数料無料でできますので、275万円ほどオトクになります!

ランジュ2000大島
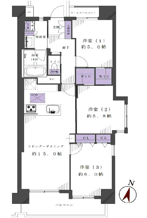
ランジュ2000ohjima 9F 3LDK 74.07㎡
| 価格 | ||||
|---|---|---|---|---|
| 面積 | 74.07m² (バルコニー9.87m²) | |||
| 間取 | 3LDK 9階 |
|||
| 管理費等 | 管理費 12220円 修繕積立金 20030円 (合計 32,250円) | |||
都営新宿線大島駅から徒歩圏内の利便性が魅力です。仕事帰りに商店街で買い物を楽しみたい共働き夫婦にとって、生活動線が整った理想的な環境といえます。
南東向きの9階に位置しており、家の中でも明るい光を感じられます。周囲に遮るものが少ないため、都心の開放的な眺望を日常的に享受できるのが大きな利点です。
フルリノベーションが施され、新築のような心地よさで新生活を始められます。ペットとの暮らしも可能で、大切な家族と一緒に穏やかな時間を過ごせる住まいです。
2026年4月4日時点の売出価格は8980万円でした。
築26年3か月です。新耐震です。高い安全性が期待できます。
ローン控除が利用できます。
リノベーション状況について
リノベーション:玄関収納交換、人感センサー取付、床タイル張替え、システムキッチン交換(食洗器・浄水器付)、ユニットバス交換(浴室換気乾燥暖房機・追炊機能付)、洗面化粧台交換、洗濯用防水パン・水栓交換、吊戸棚取付、一体型シャワートイレ交換、フローリング貼替え、建具交換、壁・天井クロス貼替え、LED照明器具取付、給湯器交換、エアコン1基設置、ハウスクリーニング等
| 交通 | 都営新宿線 大島 徒歩7分 | ||
|---|---|---|---|
| 所在地 | 東京都江東区北砂5丁目19-17 | ||
| 築年 | 2000/01築 | 現況/引渡/入居時期 | |
| 土地権利 | 所有権 | 土地面積 | m² |
| 物件番号 | 260404000002 | 掲載期限日 | 2026/05/02 |
| 状態 | 売り出し中 | 取引態様 | 仲介 |
更新
- 普通の不動産屋ではできないこと
押し売りせず、丁寧に寄り添うのがロータス不動産のスタイルです。知識と経験を活かし、物件の良いところだけでなく、気になるところも、表面的な情報だけでなく、見えにくいリスクや将来性まで、あらゆる方向から包み隠さず情報おお伝えしています。ご期待ください。
手続きを知る
ローンのことなど
その他はよくあるご質問をご覧ください。
不動産仲介手数料無料・半額のこと
+
No posts found in this category.
その他はよくあるご質問をご覧ください。
不動産仲介手数料無料・半額のこと
+他のお部屋の販売情報
沿線の販売中物件
コスモ21ガーデンズフォート 5880万円 11階 3
新大橋永谷マンション 3990万円 9階 2
東大島ハイライズ 4899万円 1階 3
パークハウス市谷仲之町 21980万円 4階 3
メゾン代々木 6480万円 8階 1
ハイラーク船堀 4998万円 1階 2
南篠崎スカイハイツB棟 3498万円 8階 3
ネバーランド大島 8480万円 6階 3
ゾンネンハイム北砂 5498万円 2階 3
四谷ガーデニア 12300万円 7階 2
オーベル船堀 7680万円 7階 4
プラウド九段南 20980万円 9階 2
コスモ大島グランコート 5798万円 4階 3
トーカンマンション大島C棟 6980万円 11階 3
住吉パーク・ホームズ 9480万円 7階 3
江東区内の売り物件を探す
北砂エリアのマンションカタログ
- グランシティユーロパレス住吉
- セザール第2西大島
- コンフィール西大島
- モアクレスト西大島
- バウス西大島
- ヴェラハイツ緑道公園弐番館
- ダイアパレス南砂町仙台堀川公園2
- コンドミニアム仙台堀パーク
- コスモ西大島エクシード
- コスモ大島
- コスモ大島グランコート
- マークステージ西大島
- 東京スイートレジデンス
- マンハイム第2西大島
- セトルコート大島
- キャニオングランデ大島
- エンゼルハイム西大島
- ミオカステーロ住吉南
- アーバンハイツ北砂
- 西大島ハイム
- コスモウィル大島
- クリオ南砂町
- ネオコーポ西大島
- ダイアパレス南砂町仙台堀川公園
- コープ野村大島
- コスモ西大島グランステージ
- ランジュ2000大島
- 東陽町ダイヤモンドパレス
- コンドミニアム仙台堀公園パーク
- 北砂四丁目住宅
- 小名木川ハウス
- ゾンネンハイム北砂
- コスモシティ北砂
- ダイアパレス東陽町2
- セザール北砂ガーデン
- ガーデンホーム住吉パークフォート
- コーポ小名木川
- マンハイム西大島