ソフトタウン綾瀬の売買情報[仲介手数料無料]

代表・春日秀典
北綾瀬駅徒歩10分、環七通り沿いの直線的な動線が心地よく、日々の移動が自然に整う立地です。ペット飼育可という条件も重なり、散歩や通院の流れを無理なく描けるのが魅力。肩肘張らず、生活のリズムを大切にしたい方に向いた住まいです。
23区の中古マンション売買を扱う会社です
現在、当社サイトには売出物件の掲載はありませんが、不動産サイトで公開されているソフトタウン綾瀬が仲介手数料が無料・半額・割引になる場合があります。入力1~2分でメールで確認できます(なお賃貸の扱いはありません)
仲介手数料無料・半額・割引って?
売主から手数料をもらえるので買主は免除。これが手数料無料のカラクリ。それに該当しない物件は手数料半額です。もちろん、手数料の安さだけがウリではなく、知識と経験を活かし、いいづらい情報、リスクも事前に説明し、お客様の購入・売却をサポートしています。そのことは実績やブログなどで確認いただけるでしょう。

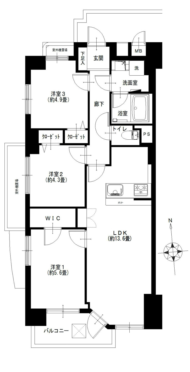
ソフトタウン綾瀬の解説

代表・春日秀典
ソフトタウン綾瀬のレビュー
1,302,606円/戸の積立金残高で、厚めの残高が備わり、良好な管理体制と予想できます。長期修繕計画もあります。築40年2か月の新耐震で、好立地の中規模物件です。
物件画像
ソフトタウン綾瀬の特徴
歩いて北綾瀬駅まで約10分。駅に近づくにつれて人の流れが増え、朝夕は小さな足音や自転車のベルが混ざるのが印象的です。千代田線の始発駅という特性もあり、座って都心へ向かえる時間帯がある点は、通勤のリズムを整えたい人に向いています。環七通り沿いの立地ですが、動線がシンプルで、生活の切り替えがしやすい感覚のあるエリアです。
外観は落ち着いた色味でまとめられ、主張しすぎない佇まい。共用部に入ると、反響音が少なく、足取りが自然とゆっくりになります。日常の移動を前提とした配置が多く、無理のない動線が意識されている印象です。ペット飼育可という条件も、散歩や通院の動線を考えた暮らし方と相性がよく、生活設計が組み立てやすい構成といえます。
環七通り沿いという立地から、車の走行音は聞こえますが、一定のリズムがあり、慣れると時間の目安になるような存在です。周囲には住宅が多く、朝は洗濯物の揺れる様子や、登校する子どもたちの声が見え隠れします。にぎやかさと日常の落ち着きが混ざる空気感で、下町らしい距離感のある暮らしが想像しやすい環境です。
駅前には日常使いしやすい店舗がまとまり、帰宅動線の途中で買い物を済ませられるのが実用的。夜は看板の灯りがほどよく残り、帰り道に安心感があります。まとめ買いよりも「必要な分だけ」を選びやすい距離感で、生活のテンポを崩しにくい構成です。移動効率を重視しつつ、無理のない日常を組み立てたい人に適した条件といえます。
維持・管理の体制
長谷工コミュニティの全部委託(日勤)管理。
維持・修繕の対応状況
長期修繕計画: あり
修繕積立金の額: ¥113,326,760(2025-03-31時点)、戸あたり¥1,302,606円です。厚めの残高が備わり、良好な管理体制と予想できます。
過去の修繕履歴:
- 2024年 雑排水管特別清掃工事
- 2023年 ガス感知器交換工事
- 2023年 光回線導入工事
- 2021年 インターホン設備改修工事
- 2018年 共用部雑排水管一部再生工事
- 2014年 機械式駐車場埋戻工事
- 2013年 共用照明LED化工事
施設・設備
- 駐車場 : あり(空き状況は要確認)14,000~18,000円/月
- バイク置場 : あり
- 駐輪場 : あり
- エレベータ : あり
- 宅配ボックス : 無し
- オートロック : 無し
- TVドアフォン : 無し
- その他施設 : 要確認
マンションルール
- ペットの可否 : 可
- 事務所の可否 : 不可
- 楽器の可否 : 不可
ペット可の内容:犬・猫は1住戸4匹以内(単種は3匹以内)飼育可
災害・耐震
1986/02築で、 総戸数87戸の 鉄骨鉄筋コンクリート11階建て。
2026年4月の時点で 築 40年 2か月となります。1981年6月以降の建築確認により新耐震です。高い安全性が期待できます。
洪水により予想される浸水深さは5.0 ~ 10.0mです。高潮により予想される浸水深さは3.0 ~ 5.0mです。
洪水や高潮の浸水想定図
物件概要
| 所在地 |
東京都足立区東和5丁目7-4
|
||
|---|---|---|---|
| 交通 | 千代田線 北綾瀬駅 徒歩10分 | ||
| 築年 | 1986/02築 | ||
| 規模・構造 | 鉄骨鉄筋コンクリート 11階建て 総戸数87戸 | ||
| 新築時売主 | 日交開発 | ||
| 施工 | 長谷川工務店 | ||
| 土地権利 | 所有権 | ||
| 用途地域 | 準工業 | ||
| 管理形態 | 全部委託 日勤 | ||
| 管理会社 | 長谷工コミュニティ | ||
| 管理費単価 | 314.52 | ||
相場・価格履歴
過去に当社サイトが公開情報から収集したリノベーションマンションの売出履歴です。 また、それから想定できる「個人売り物件の予想価格」「不動産業者による買取価格」をシミュレーションしました。 売却相談も歓迎。
| 時期 | フロア | 面積 | リノベ物件 相場 (履歴・万円/㎡) |
通常状態の 相場 (想定目安・万円/㎡) |
買取の相場 (想定目安・万円/㎡) |
備考 |
|---|---|---|---|---|---|---|
| 2026/3 | 10階 | 約64㎡ | @65.21 | @55.4 | @38.9 | |
| 2026/1 | 10階 | 約64㎡ | @66.77 | @56.9 | @40.1 | |
| 2025/6 | 4階 | 約60㎡ | @51.26 | @41.1 | @28.2 | |
| 2025/6 | 4階 | 約60㎡ | @54.59 | @44.4 | @30.7 | |
| 2025/5 | 4階 | 約60㎡ | @57.92 | @47.8 | @33.2 | |
| 2025/1 | 6階 | 約51㎡ | @52.17 | @41.2 | @28.1 | |
| 2024/6 | 6階 | 約60㎡ | @57.82 | @47.7 | @33.1 | |
| 2023/4 | 6階 | 約60㎡ | @55.46 | @45.4 | @31.4 | |
| 2023/3 | 6階 | 約60㎡ | @57.1 | @47 | @32.6 |
出典:当社サイト
地図、周辺環境
足立区東和5丁目7-4
学校区
小学校:足立区立東渕江小学校(5分)
中学校:足立区立蒲原中学校(9分)
Convenience Store
- ファミリーマート 大谷田三丁目店 2分
- ローソン 大谷田店 2分
- セブンイレブン 足立東和5丁目店 3分
- ローソンストア100足立東和五丁目店 2分
- セブンイレブン 足立大谷田1丁目店 5分
SuperMarket,etc
- トップフレッシュマーケット いずみ大谷田店 5分
- 西友 北綾瀬店 5分
Medical
- 大谷田耳鼻咽喉科 2分
- セツルメント診療所分院 4分
- 梅田整形外科 3分
- 大谷田団地歯科医院 5分
Kindergarten
- 足立区立 大谷田第一保育園 4分
- 聖母のさゆり保育園 5分
- コンビプラザ東和三丁目保育園 5分
Bank
- 東京東信用金庫東和支店 4分
- JA東京スマイル北綾瀬支店 11分
- きらばし銀行 北綾瀬支店 10分
- 足立成和信用金庫亀有駅前支店 12分
Parks
電話:03-5809-1630
営業時間:9:30~20:00/水曜定休
よくある仲介手数料無料・半額Q&A
仲介手数料は無料とかいって、超怪しいんですが?
仲介手数料無料にできるわけは、売主さんから手数料をいただいているからです。リノベマンションなどの物件は広告費に相当する部分を仲介手数料として支払ってくれます。それでも23区ならかなりの高額ですので経営も大丈夫です。
仲介手数料無料のデメリットはありますか?
仲介手数料無料のデメリットと言われることは、話のすり替えだけで、実際には低レベルな手数料有料でも起こりえることです。ただし売却で仲介手数料無料をやるとデメリットが生じることもあります。
仲介手数料無料なんて大したことない不動産屋ですよね?
大きな会社ではないのはその通りですが、大したことない会社かと言われれば、ちがいます。ウェブに大量の露出をして、少々なら業界でも認識された会社です。今このページを見ていただいているのが何よりの証拠。押し売りせず、丁寧に寄り添うのがスタイルです。知識と経験を活かし、表面的な情報だけでなく、見えにくいリスクや将来性まで、あらゆる方向から包み隠さず情報をお伝えしています。ご期待ください。
仲介手数料は無料といっても、他にお金がかかるのではないですか?
ローン利用の場合、当社では調査事務手数料を33000円を頂いております※。これは不動産の調査に利用します。マンションの場合、積立金の残高の最新情報などは、管理会社に対する調査費用がかかり、これに使います。念ため申し上げますと、登記関連費用、銀行費用、税金、火災保険などの諸費用の負担がございますが、これらは外部のものなので、どの仲介業者でも差はありません。
その他「仲介手数料無料・半額のご質問と詳しい説明は以下のリンクからご覧いただけます。
仲介手数料無料・半額のよくあるご質問更新日:
近隣・沿線・類似の物件
沿線の販売中物件
恒陽綾瀬マンション 3280万円 4階 2
代々木公園ガーデニア 7990万円 3階 2
グリーンパーク第15綾瀬 3980万円 7階 3
北千住パークファミリア 6299万円 9階 3
アルシオン北綾瀬 5999万円 2階 3
ナイスアーバン北綾瀬第二 4090万円 7階 3
東和ファイナンス 3598万円 7階 2
朝日綾瀬マンション 3980万円 5階 2
エンゼルハイム町屋第2 3880万円 2階 2
ライオンズマンション乃木坂 22980万円 6階 3
ザ・ライオンズ上野の森 11498万円 9階 1
ダイナシティ文京根津 7099万円 4階 1
デュオ綾瀬 4980万円 4階 3
ロワール北千住 6198万円 4階 2
グリーンパーク綾瀬21 2290万円 1階 2
同じ沿線のマンションを見てみよう
同じ沿線の他の駅にもマンションがあります。
東和と同じ町内のマンションを調べよう
東和のマンションカタログの詳細はこちらです。
- 亀有ガーデンハウス
- ライオンズガーデン綾瀬谷中公園
- ハイコーポ北綾瀬
- ジェイパーク綾瀬
- 亀有グリーンマンション
- セザール亀有
- センチュリーハイツ亀有
- ランドステージ亀有ヴェレスタ
- グリーンパーク第15綾瀬
- 東和ロイヤルプラザ
- 北綾瀬パークホームズ
- グレースヒル878
- イトーピア北綾瀬
- グリーンパーク第2東綾瀬
- レクセルガーデン北綾瀬
- ワコーレ綾瀬3
- ナイスアーバン北綾瀬
- セザール亀有親水公園
- 東急ドエルアルス北綾瀬
- サンヴェール亀有
- サンドミール綾瀬
- 秀和綾瀬レジデンス
- トーキョーガーデンスイート
- 亀有センチュリーマンション
- ライオンズマンション綾瀬谷中公園
- 東和ファイナンス
- 東和ダイヤモンドマンション
- サンクレイドル綾瀬東
- 東和中央マンション
- セザール第2亀有
- 亀有第10ウィーンハイツ
- グリーンパーク東綾瀬3
- グリーンパーク第6綾瀬
- エミネス北綾瀬
- グリーンパーク東綾瀬
- アルシオン北綾瀬
- 藤和亀有コープ
区内の他地域のマンションを調べよう
区内の他の地域の物件も手数料割引にてご紹介できます。
- 足立区
- 青井
- 足立
- 綾瀬
- 入谷町
- 梅島
- 梅田
- 扇
- 大谷田
- 興野
- 小台
- 加賀
- 加平
- 北加平町
- 栗原
- 弘道
- 江北
- 古千谷
- 佐野
- 皿沼
- 鹿浜
- 島根
- 新田
- 神明
- 神明南
- 関原
- 千住
- 千住曙町
- 千住旭町
- 千住大川町
- 千住河原町
- 千住寿町
- 千住関屋町
- 千住龍田町
- 千住中居町
- 千住仲町
- 千住橋戸町
- 千住宮元町
- 千住元町
- 千住柳町
- 千住東
- 千住桜木
- 千住緑町
- 竹の塚
- 辰沼
- 中央本町
- 椿
- 舎人
- 舎人町
- 中川
- 西綾瀬
- 西新井
- 西新井栄町
- 西新井本町
- 西伊興町
- 西加平
- 西保木間
- 花畑
- 東綾瀬
- 東保木間
- 東六月町
- 一ツ家
- 日ノ出町
- 保木間
- 保塚町
- 堀之内
- 南花畑
- 宮城
- 六木
- 本木
- 本木北町
- 本木西町
- 本木東町
- 本木南町
- 谷在家
- 柳原
- 六月
- 六町
- 伊興
- 西伊興
- 西竹の塚
- 東伊興
- 古千谷本町
- 舎人公園
- 伊興本町
- 谷中
- 平野
- 入谷
東和で似たような特徴のマンションを確認しよう
担当者

私が担当します:春日秀典
新築・中古を問わず、分譲マンションや戸建ての販売・開発に20年以上携わってきました。専門知識が欠かせない不動産の世界だからこそ、宅地建物取引士や公認不動産コンサルティングマスターなどの資格を活かして、日々の業務に取り組んでいます。
当社のサイトでは、物件の魅力はもちろん、将来的な資産価値や注意点まで率直にお伝えしています。「納得して取引できた」と思えるよう、判断材料をご提供しています。
なお、当サイトに掲載している情報は、すべて私自身が独自に執筆したものです。現場の肌感や最新動向も含め、信頼できる情報を目指しています。
不動産購入はそう何度もないご決断です。疑問や不安があれば、お気軽にご相談ください。納得感を持ってお取引いただけるよう、サポートいたします。