朝日動坂マンション 605 2LDK
7199万円
49.22㎡ が仲介手数料無料!up
インフラから刷新された安心のR1適合リノベーションが、将来にわたる快適な暮らしを支えます。浄水器付キッチンや機能的な収納を完備し、洗練された室内で心弾む新生活をスタートできます。
仲介手数料無料でできますので、222万円ほどオトクになります!

朝日動坂マンション
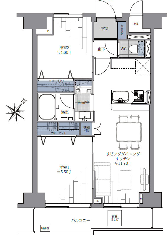
朝日動坂マンション 605 2LDK 49.22㎡
| 価格 | ||||
|---|---|---|---|---|
| 面積 | 49.22m² (バルコニー6.57m²) | |||
| 間取 | 2LDK 6階 |
|||
| 管理費等 | 管理費 10800円 修繕積立金 7480円 (合計 18,280円) | |||
歴史ある街に住みながら、最新の機能性を求める方へ、給排水管まで更新した適合リノベーション住宅を提案します。目に見えないインフラ部分まで刷新されており、将来の漏水不安を解消しています。
キッチンの使い勝手に不満を感じていた料理好きの方へ、浄水器付きの新型システムキッチンを導入しました。広い作業スペースと最新のコンロが、日々の献立作りをより楽しく、円滑なものに変えます。
季節ごとの整理整頓をスムーズにしたい方のために、各洋室に独立したクローゼットを配置しました。家具による収納の追加を抑えられるため、49㎡の空間を最大限に活用したスマートな生活が叶います。
2026年2月3日時点の売出価格は7199万円でした。
築42年7か月です。新耐震です。高い安全性が期待できます。 ローン控除はできません。
リノベーション状況について
リノベーション:フローリング新規貼替、ユニットバス交換、洗面化粧台交換、トイレ交換、建具・玄関収納交換、壁・天井クロス貼替、システムキッチン交換、給排水管交換(一部)、洗濯水栓・防水パン交換、給湯器交換
| 交通 | JR山手線 西日暮里 徒歩9分 | ||
|---|---|---|---|
| 所在地 | 東京都文京区千駄木4丁目7-15 | ||
| 築年 | 1983/07築 | 現況/引渡/入居時期 | |
| 土地権利 | 所有権 | 土地面積 | m² |
| 物件番号 | 260203000009 | 掲載期限日 | 2026/03/03 |
| 状態 | 売り出し中 | 取引態様 | 仲介 |
更新
- 普通の不動産屋ではできないこと
押し売りせず、丁寧に寄り添うのがロータス不動産のスタイルです。知識と経験を活かし、物件の良いところだけでなく、気になるところも、表面的な情報だけでなく、見えにくいリスクや将来性まで、あらゆる方向から包み隠さず情報おお伝えしています。ご期待ください。
手続きを知る
ローンのことなど
その他はよくあるご質問をご覧ください。
その他はよくあるご質問をご覧ください。
他のお部屋の販売情報
沿線の販売中物件
ハイネス巣鴨 6499万円 10階 2
キョウエイハイツ田町 5299万円 3階 1
秀和五反田駅前レジデンス 4499万円 4階 1
マンション島津山 7999万円 5階 2
TOKYO SEA SOUTH ブランファーレ 14500万円 23階 1
クリオ大塚弐番館 11999万円 4階 3
ライオンズプラザ日暮里 5180万円 5階 1
芝浦アイランドケープタワー 16500万円 43階 1
文京区内の売り物件を探す
千駄木エリアのマンションカタログ
- 千駄木リリエンハイム
- パロス本駒込
- モンテベルデ千駄木
- シティインデックス山手動坂
- 藤和千駄木コープ
- プラウド千駄木
- イトーピア千駄木マンション
- ライオンズマンション千駄木第2
- ナイスアーバン千駄木
- フジメゾン千駄木
- サントル千駄木
- クリオ千駄木動坂
- シルバーパレス千駄木
- イトーピア千駄木IDEA
- イクシア文京千駄木
- ルネ千駄木プラザ
- シャルマン文京千駄木
- パロス千駄木
- アドリーム文京動坂
- グランドステージ千駄木
- グランドメゾン千駄木
- ドミール千駄木
- モナーク千駄木
- ベルメゾン千駄木
- ハイライフ文京
- 千駄木センチュリー21
- ワールドパレス千駄木
- 朝日千駄木マンション
- 朝日動坂マンション
- グランドメゾン千駄木1番館
- ウィン千駄木
- イトーピアエステシオン千駄木
- ダイヤハイツ千駄木
- コンドミニアム千駄木