芦花公園プレスティージュ 614 4LDK
14177万円
130.36㎡ が仲介手数料無料!up
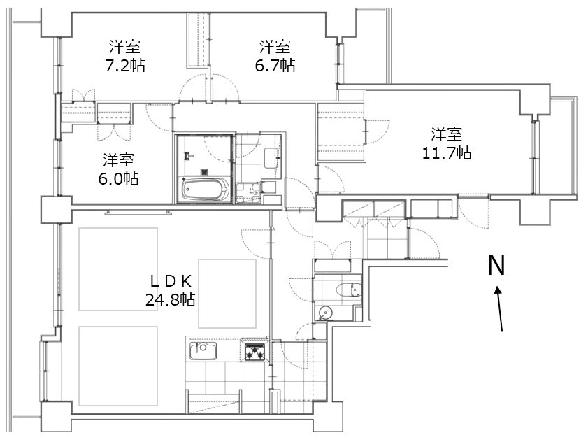
130平方メートル超という圧倒的な空間と開放感を誇る、世田谷の邸宅にふさわしい4LDKのリノベーション住戸です。最新の設備と全室6帖以上のゆとりある設計が、ご家族全員の満足度を最高レベルまで高めます。
仲介手数料無料でできますので、431万円ほどオトクになります!

芦花公園プレスティージュ
芦花公園プレスティージュ 614 4LDK 130.36㎡
| 価格 | ||||
|---|---|---|---|---|
| 面積 | 130.36m² (バルコニー23.28m²) | |||
| 間取 | 4LDK 6階 |
|||
| 管理費等 | 管理費 50800円 修繕積立金 29270円 (合計 80,070円) | |||
大家族でのびのびと暮らし、家の中での開放感を何よりも大切にしたい方へ。130平方メートルを超える圧倒的な広さは、都心近くではなかなか得られない希少な生活空間を提供します。
全室6帖以上の完全振り分けタイプの間取りが、家族一人ひとりのプライバシーを優しく守り抜きます。23平方メートルものワイドバルコニーは、外の空気を感じながらリラックスできる特別な場所です。
床暖房や浴室乾燥機など、日々の快適さを高める設備がフルリノベーションによって一新されています。世田谷の閑静な街並みに調和する大規模レジデンスで、誇り高いファミリーライフを形にしてください。
2026年3月31日時点の売出価格は14177万円でした。
ペットの飼育は不可です。 犬・猫は不可。小鳥・観賞用魚類のみ可。。
築38年7か月です。新耐震です。高い安全性が期待できます。
ローン控除は可です。
リノベーション状況について
リノベーション:システムキッチン交換、建具交換、ユニットバス交換、トイレ交換、洗面化粧台交換、浴室乾燥機、フローリング張替、床暖房、クロス張替、ダウンライト、カーペット張替(2026年4月)
| 交通 | 京王線 芦花公園 徒歩5分 | ||
|---|---|---|---|
| 所在地 | 東京都世田谷区南烏山2丁目31-31 | ||
| 築年 | 1987/09築 | 現況/引渡/入居時期 | |
| 土地権利 | 所有権 | 土地面積 | m² |
| 物件番号 | 260331000025 | 掲載期限日 | 2026/05/12 |
| 状態 | 売り出し中 | 取引態様 | 仲介 |
更新
- 普通の不動産屋ではできないこと
押し売りせず、丁寧に寄り添うのがロータス不動産のスタイルです。知識と経験を活かし、物件の良いところだけでなく、気になるところも、表面的な情報だけでなく、見えにくいリスクや将来性まで、あらゆる方向から包み隠さず情報おお伝えしています。ご期待ください。
手続きを知る
ローンのことなど
その他はよくあるご質問をご覧ください。
不動産仲介手数料無料・半額のこと
+
No posts found in this category.
その他はよくあるご質問をご覧ください。
不動産仲介手数料無料・半額のこと
+他のお部屋の販売情報
沿線の販売中物件
秀和幡ヶ谷レジデンス 4180万円 9階 1
ザ・グランツ代々木参宮橋 13980万円 5階 2
キャニオングランデ桜上水 4499万円 6階 1
芦花公園ハイツ 6990万円 3階 3
シャルマンコーポ第2芦花公園 5980万円 1階 3
ガーデンヴィラ芦花公園 10480万円 5階 3
ライオンズマンション幡ヶ谷 6490万円 1階 2
パールハイツ笹塚 6799万円 7階 3
八幡山ビューグリーン 7499万円 7階 3
ライオンズマンション幡ヶ谷 6190万円 6階 1
マンション和泉苑 3280万円 4階 1
ライオンズマンション幡ヶ谷 8190万円 1階 1
エスポワール松原 7798万円 6階 2
サーラ・コモド八幡山ヴェローナ 5399万円 4階 1
南烏山パーク・ホームズ 5999万円 3階 3