エクセルシオール錦糸町の売買情報[仲介手数料無料]

代表・春日秀典
錦糸町駅徒歩6分、亀戸駅徒歩10分、都市の躍動を身近に感じるポジションです。1999年築SRC造13階建、端正な佇まいにオートロックと宅配ボックス、ペット飼育可の安心設計。京葉道路至近、軽快なフットワークが叶います。
23区の中古マンション売買を扱う会社です
現在、当社サイトには売出物件の掲載はありませんが、不動産サイトで公開されているエクセルシオール錦糸町が仲介手数料が無料・半額・割引になる場合があります。入力1~2分でメールで確認できます(なお賃貸の扱いはありません)
仲介手数料無料・半額・割引って?
売主から手数料をもらえるので買主は免除。これが手数料無料のカラクリ。それに該当しない物件は手数料半額です。もちろん、手数料の安さだけがウリではなく、知識と経験を活かし、いいづらい情報、リスクも事前に説明し、お客様の購入・売却をサポートしています。そのことは実績やブログなどで確認いただけるでしょう。

エクセルシオール錦糸町の解説

代表・春日秀典
エクセルシオール錦糸町のレビュー
1,811,958円/戸の積立金残高で、厚めの残高が備わり、良好な管理体制と予想できます。長期修繕計画もあります。築26年6か月の新耐震で、賑やかな立地の中規模物件です。
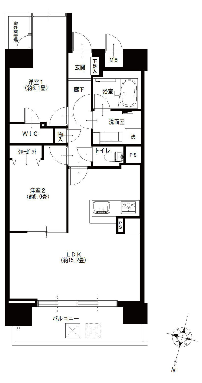
物件画像
エクセルシオール錦糸町|錦糸町駅徒歩6分、都市機能と下町感覚が交わる一角
JR総武線「錦糸町駅」徒歩6分、東京メトロ半蔵門線も利用可能という軽快な立地。京葉道路が近く、車移動の導線も取りやすい配置です。とはいえ一本入ると落ち着きがあり、下町らしい空気がやわらかく流れます。さらに「亀戸駅」徒歩10分圏という選択肢の広がりも日常の機動力を高める要素。都心勤務で帰宅時間が読みにくい共働き世帯にも適したポジションといえます。
1999年築、SRC造13階建・総戸数56戸。分譲はテイボンホームテック、施工は矢作建設工業という組み合わせです。エントランスはオートロックを備え、宅配ボックスも設置。ペット飼育可の条件もあり、生活設計に幅が出ます。北側接道で視界がすっと抜ける住戸もあり、たしかに派手さはありませんが、日常を支える堅実な仕様。新耐震基準、エレベーター1基という構成です。
日々の買い物は「コモディイイダ食彩館亀戸店」徒歩4分、「西友 錦糸町店」徒歩5分と具体的。さらに「錦糸町マルイ」徒歩6分で衣料や生活雑貨も完結します。夜でも人通りがあり、駅前の灯りがやわらかく視界に入る安心感。総合病院約250m、ドラッグストア約159mという距離感も実務的です。共働きで時間効率を重視する層にとって合理性の高い生活動線。
墨田区江東橋4丁目というアドレスは、繁華と住宅地の境界に位置します。浸水想定区域に該当するエリアである点は事前確認が必要ですが、都市部での暮らしを前提に情報を踏まえて判断する姿勢が求められます。小学校約900m、中学校約385mという通学距離も把握しやすい数字。下町の人情と都市機能が交わる錦糸町らしい住環境です。
維持・管理の体制
サニーライフの全部委託(日勤)管理。
維持・修繕の対応状況
長期修繕計画: あり
修繕積立金の額: ¥103,281,609(2025-05-31時点)、戸あたり¥1,811,958円です。厚めの残高が備わり、良好な管理体制と予想できます。
過去の修繕履歴:
過去の履歴は確認中です。施設・設備
- 駐車場 : あり(空き状況は要確認)29,000円/月
- バイク置場 : あり
- 駐輪場 : あり
- エレベータ : あり
- 宅配ボックス : あり
- オートロック : あり
- TVドアフォン : あり
- その他施設 : 要確認
マンションルール
- ペットの可否 : 可
- 事務所の可否 : 不可
- 楽器の可否 : 規約参照
ペット可の内容:犬・猫は1住戸1匹飼育可
災害・耐震
1999/10築で、 総戸数57 戸の 鉄骨鉄筋コンクリート13 階建て。
2026年4月の時点で 築 27年 6か月となります。1981年6月以降の建築確認により新耐震です。高い安全性が期待できます。
洪水や高潮の浸水想定図
墨田区の災害マップなどをご覧いただけるよう区のウェブサイトへのリンクを用意しました。
物件概要
| 所在地 |
東京都墨田区江東橋4丁目24-6
|
||
|---|---|---|---|
| 交通 |
JR総武線 錦糸町駅 徒歩6分 JR総武線 亀戸駅 徒歩10分 半蔵門線他「住吉駅」徒歩12分 |
||
| 築年 | 1999/10築 | ||
| 規模・構造 | 鉄骨鉄筋コンクリート 13 階建て 総戸数57 戸 | ||
| 新築時売主 | テイボンホームテック | ||
| 施工 | 矢作建設工業 | ||
| 土地権利 | 所有権 | ||
| 用途地域 | 商業 | ||
| 管理形態 | 全部委託 日勤 | ||
| 管理会社 | サニーライフ | ||
| 管理費単価 | 218 | ||
相場・価格履歴
過去に当社サイトが公開情報から収集したリノベーションマンションの売出履歴です。 また、それから想定できる「個人売り物件の予想価格」「不動産業者による買取価格」をシミュレーションしました。 売却相談も歓迎。
| 時期 | フロア | 面積 | リノベ物件 相場 (履歴・万円/㎡) |
通常状態の 相場 (想定目安・万円/㎡) |
買取の相場 (想定目安・万円/㎡) |
備考 |
|---|---|---|---|---|---|---|
| 2026/1 | 8階 | 約60㎡ | @127.73 | @117.6 | @85.3 | |
| 2025/3 | 6階 | 約46㎡ | @118.63 | @107.1 | @76.9 |
出典:当社サイト
過去の掲載物件
こちらの事例物件は成約となりましたが、当社ではほかにも仲介手数料もしくは半額で物件を紹介・お取り扱いしております。
過去掲載物件 / 6階 / 46.28m²
仲介料手数料無料で取扱していました
- 所在階
- 6階
- 間取り
- 1LDK
- 専有面積
- 46.28㎡
- バルコニー
- 8.88㎡
- 管理費
- 8400円
- 修繕積立金
- 1680円
クセルシオール錦糸町 602号室は、対面キッチン、ウォークインクローゼット付き、6階部分の北向きで眺望良好です。

地図、周辺環境
墨田区江東橋4丁目24-6
学校区
小学校:墨田区立錦糸小学校 徒歩13分
中学校:墨田区立竪川中学校 徒歩20分
電話:03-5809-1630
営業時間:9:30~20:00/水曜定休
よくある仲介手数料無料・半額Q&A
仲介手数料は無料とかいって、超怪しいんですが?
仲介手数料無料にできるわけは、売主さんから手数料をいただいているからです。リノベマンションなどの物件は広告費に相当する部分を仲介手数料として支払ってくれます。それでも23区ならかなりの高額ですので経営も大丈夫です。
仲介手数料無料のデメリットはありますか?
仲介手数料無料のデメリットと言われることは、話のすり替えだけで、実際には低レベルな手数料有料でも起こりえることです。ただし売却で仲介手数料無料をやるとデメリットが生じることもあります。
仲介手数料無料なんて大したことない不動産屋ですよね?
大きな会社ではないのはその通りですが、大したことない会社かと言われれば、ちがいます。ウェブに大量の露出をして、少々なら業界でも認識された会社です。今このページを見ていただいているのが何よりの証拠。押し売りせず、丁寧に寄り添うのがスタイルです。知識と経験を活かし、表面的な情報だけでなく、見えにくいリスクや将来性まで、あらゆる方向から包み隠さず情報をお伝えしています。ご期待ください。
仲介手数料は無料といっても、他にお金がかかるのではないですか?
ローン利用の場合、当社では調査事務手数料を33000円を頂いております※。これは不動産の調査に利用します。マンションの場合、積立金の残高の最新情報などは、管理会社に対する調査費用がかかり、これに使います。念ため申し上げますと、登記関連費用、銀行費用、税金、火災保険などの諸費用の負担がございますが、これらは外部のものなので、どの仲介業者でも差はありません。
その他「仲介手数料無料・半額のご質問と詳しい説明は以下のリンクからご覧いただけます。
仲介手数料無料・半額のよくあるご質問更新日:
近隣・沿線・類似の物件
沿線の販売中物件
コスモ平井メルベーユ 6598万円 5階 3
ハイネス亀戸 3480万円 2階 2
ブライトコート平井 6498万円 3階 3
東中野第2マンション 2980万円 4階 1
ヴェラハイツ新宿 3499万円 4階 1
北斗スターマンション亀戸 2990万円 3階 1
トーア第2亀戸マンション 4980万円 4階 3
プリマドムス立花 5980万円 12階 3
大久保ハウス 7299万円 5階 2
ファミール亀戸 5698万円 3階 3
メイツ新小岩親水公園 4480万円 4階 3
クレッセント東中野レジデンス 12990万円 3階 3
ライオンズマンション西荻第2 4799万円 4階 2
新小岩サマリヤマンション 2990万円 4階 2
コスモプレイス亀戸 8490万円 3階 3
江東橋と同じ町内のマンションを調べよう
江東橋のマンションカタログの詳細はこちらです。
- エクセレントシティ錦糸町
- ガリシア錦糸町2
- アルテシモテソロ
- グランドメゾン錦糸町
- サンクチュアリ菊川リバーサイドステージ
- エンゼルハイム錦糸町
- ライオンズマンション錦糸町
- ハーモニーレジデンス錦糸町#001
- トーア錦糸町マンション
- グリーンプラザ錦糸町
- ルイシャトレ錦糸町
- メゾンドール錦糸町ツイン
- 錦糸町グリーンプラザ
- ライオンズマンション錦糸町第5
- ホワイトハイツサカエ
- シティポート錦糸町2
- ドルミ錦糸町長谷川ビル
- トーカンマンション錦糸町
- ドルミ錦糸町大興ビル
- 錦糸町第3ローヤルコーポ
- 錦糸町ハイツ
- サンクタス錦糸町クレフ
- 錦糸町ハイタウン
- アプレ錦糸町
- ラコティスカイマンション
- グレイス錦糸町
区内の他地域のマンションを調べよう
区内の他の地域の物件も手数料割引にてご紹介できます。
江東橋で似たような特徴のマンションを確認しよう
担当者

私が担当します:春日秀典
新築・中古を問わず、分譲マンションや戸建ての販売・開発に20年以上携わってきました。専門知識が欠かせない不動産の世界だからこそ、宅地建物取引士や公認不動産コンサルティングマスターなどの資格を活かして、日々の業務に取り組んでいます。
当社のサイトでは、物件の魅力はもちろん、将来的な資産価値や注意点まで率直にお伝えしています。「納得して取引できた」と思えるよう、判断材料をご提供しています。
なお、当サイトに掲載している情報は、すべて私自身が独自に執筆したものです。現場の肌感や最新動向も含め、信頼できる情報を目指しています。
不動産購入はそう何度もないご決断です。疑問や不安があれば、お気軽にご相談ください。納得感を持ってお取引いただけるよう、サポートいたします。