青戸パーク・ホームズ 1001 2LDK
3390万円
50.1㎡ が仲介手数料無料!
建物情報を見る
問い合わせ
3390万円
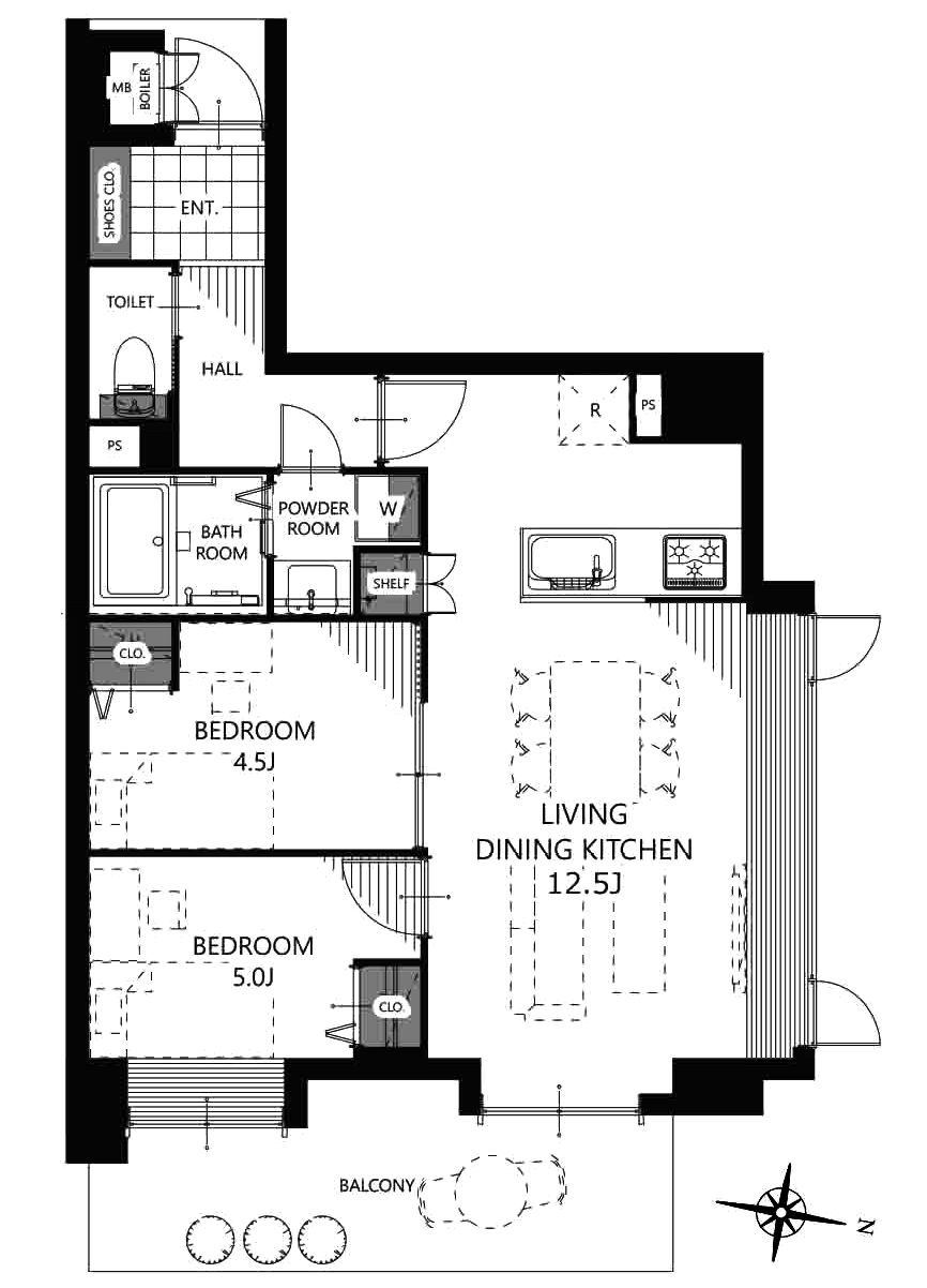
【間取図】青戸パークホームズ1001※図面と現況に相違がある場合は現況を優先します。
株式会社ロータス不動産 営業時間:9:30~20:00 / 定休日:水曜日
10階部分からの開放的な眺望と、ペットと一緒に暮らせるリノベーション空間が魅力です。最寄り駅から徒歩圏内で、生活利便施設も身近に揃う快適な環境が整っています。
仲介手数料無料でできますので、108万円ほどオトクになります!

建物情報
青戸パークホームズ
青戸パークホームズ
青戸パーク・ホームズ 1001 2LDK 50.1㎡
| 価格 | ||||
|---|---|---|---|---|
| 面積 | 50.1m² (バルコニー8.25m²) | |||
| 間取 | 2LDK 10階 |
|||
| 管理費等 | 管理費 15100円 修繕積立金 12780円 (合計 27,880円) | |||
10階部分からの開放的な眺望は、日々の喧騒を忘れさせてくれる贅沢な癒やしとなります。高層階ならではの光溢れるリビングは、暗い室内での生活に不満を感じていた方に明るい変化をもたらします。
大切なペットと一緒に暮らせる環境が整っており、家族の一員としての幸せを諦める必要はありません。リノベーション済みの洗練された住まいで、愛犬や愛猫との心安らぐ暮らしをすぐに始められます。
葛飾区青戸の落ち着いた住環境は、静かな暮らしを望む方にとって理想的な選択肢となります。最寄り駅から都心へも軽快にアクセスでき、仕事と休息のメリハリを大切にするライフスタイルを支えます。
2026年4月9日時点の売出価格は3390万円でした。
築34年1か月です。新耐震です。高い安全性が期待できます。
ローン控除が利用できます。
リノベーション状況について
リノベーション:令和8年6月下旬完了予定、新規リノベーション
| 交通 | 京成本線 青砥 徒歩13分 | ||
|---|---|---|---|
| 所在地 | 東京都葛飾区青戸7丁目29-8 | ||
| 築年 | 1992/03築 | 現況/引渡/入居時期 | |
| 土地権利 | 所有権 | 土地面積 | m² |
| 物件番号 | 260409000002 | 掲載期限日 | 2026/05/07 |
| 状態 | 売り出し中 | 取引態様 | 仲介 |
更新
- 普通の不動産屋ではできないこと
押し売りせず、丁寧に寄り添うのがロータス不動産のスタイルです。知識と経験を活かし、物件の良いところだけでなく、気になるところも、表面的な情報だけでなく、見えにくいリスクや将来性まで、あらゆる方向から包み隠さず情報おお伝えしています。ご期待ください。
手続きを知る
ローンのことなど
その他はよくあるご質問をご覧ください。
不動産仲介手数料無料・半額のこと
+
No posts found in this category.
その他はよくあるご質問をご覧ください。
不動産仲介手数料無料・半額のこと
+
No posts found in this category.
他のお部屋の販売情報
沿線の販売中物件
関屋ステーションハイツ 3999万円 9階 1
お花茶屋ダイヤモンドマンション 2180万円 6階 1
コスモ堀切菖蒲園 4580万円 7階 2
トーア立石マンション 2880万円 2階 2
第2お花茶屋ダイヤモンドマンション 2390万円 7階 1
アンビシャス青砥 5980万円 12階 3
葛飾区内の売り物件を探す
青戸エリアのマンションカタログ
- ライオンズマンション青戸第3
- ライオンズプラザ青戸
- ミオカステーロ青戸
- ディークラディア青戸
- ウインベルコーラス青砥
- グランシティ青砥ユーロレジデンス
- グリーンタウン青戸一番街
- レクセル青戸
- ニックアーバンハイム青砥
- ザパークハウス青砥
- コスモ青砥
- エンゼルハイム青戸第2
- タイガースマンション青戸
- レガリアシティ青戸プライムコート
- ヴェルアージュ亀有
- 青戸三鈴コーポ
- 青砥マイコーポ
- シーズガーデン青砥
- 青戸ローヤルコーポ
- ライオンズマンション青戸第5
- メゾンドール青戸
- 御殿山デュープレックス
- トップ青砥
- サニーハイツ亀有
- タウンハイツ亀有
- サンパレス青戸
- エムブランド亀有
- ルネ立石
- エンゼルハイム青戸第3
- 青戸ビューハイツ
- 青戸第2ローヤルコーポ
- グリーンタウン青戸二番街
- ライオンズマンション青戸平和公園
- 青戸ダイヤモンドパレス
- 亀有リバーサイドダイヤモンドパレス
- ライオンズマンション葛飾青戸
- レーベンリヴァーレリバースイート
- ナイスアーバン亀有さくら通り
- 青戸パークホームズ
- クレストフォルム青砥グランデッツァ