神宮前プリンスハイツ 202 2LDK
14490万円
63.72㎡ が仲介手数料無料!up
「外苑前」駅・「表参道」駅徒歩7分の都心好立地、総戸数12戸のプライベート性の高いレジデンスです 。フルリノベーション完了済み(2025年11月)の2LDK+2WICで、上質な空間と豊富な収納力が魅力の快適な暮らしをご提供します 。
仲介手数料無料でできますので、441万円ほどオトクになります!

神宮前プリンスハイツ
神宮前プリンスハイツ 202 2LDK 63.72㎡
| 価格 | ||||
|---|---|---|---|---|
| 面積 | 63.72m² 壁芯(バルコニー7.79m²) | |||
| 間取 | 2LDK 2階 南東 |
|||
| 管理費等 | 管理費 19980円 修繕積立金 14130円 (合計 34,110円) | |||
| 所在地 | 東京都渋谷区神宮前3丁目1-12 | |||
| 設備・条件 | ||||
| 周辺施設 | 渋谷区立神宮前小学校 徒歩9分 渋谷区立原宿外苑中学校 徒歩17分 | |||
「外苑前」駅・「表参道」駅まで徒歩7分、JR山手線「原宿」駅まで徒歩14分と、都心主要駅へ徒歩圏内の好立地は、アクセスとブランド力を重視するビジネスパーソンやDINKSに最適です 。都心でありながら総戸数12戸のプライベート性の高い環境 が、静かで落ち着いた生活を求めるお客様の悩みを解決します。
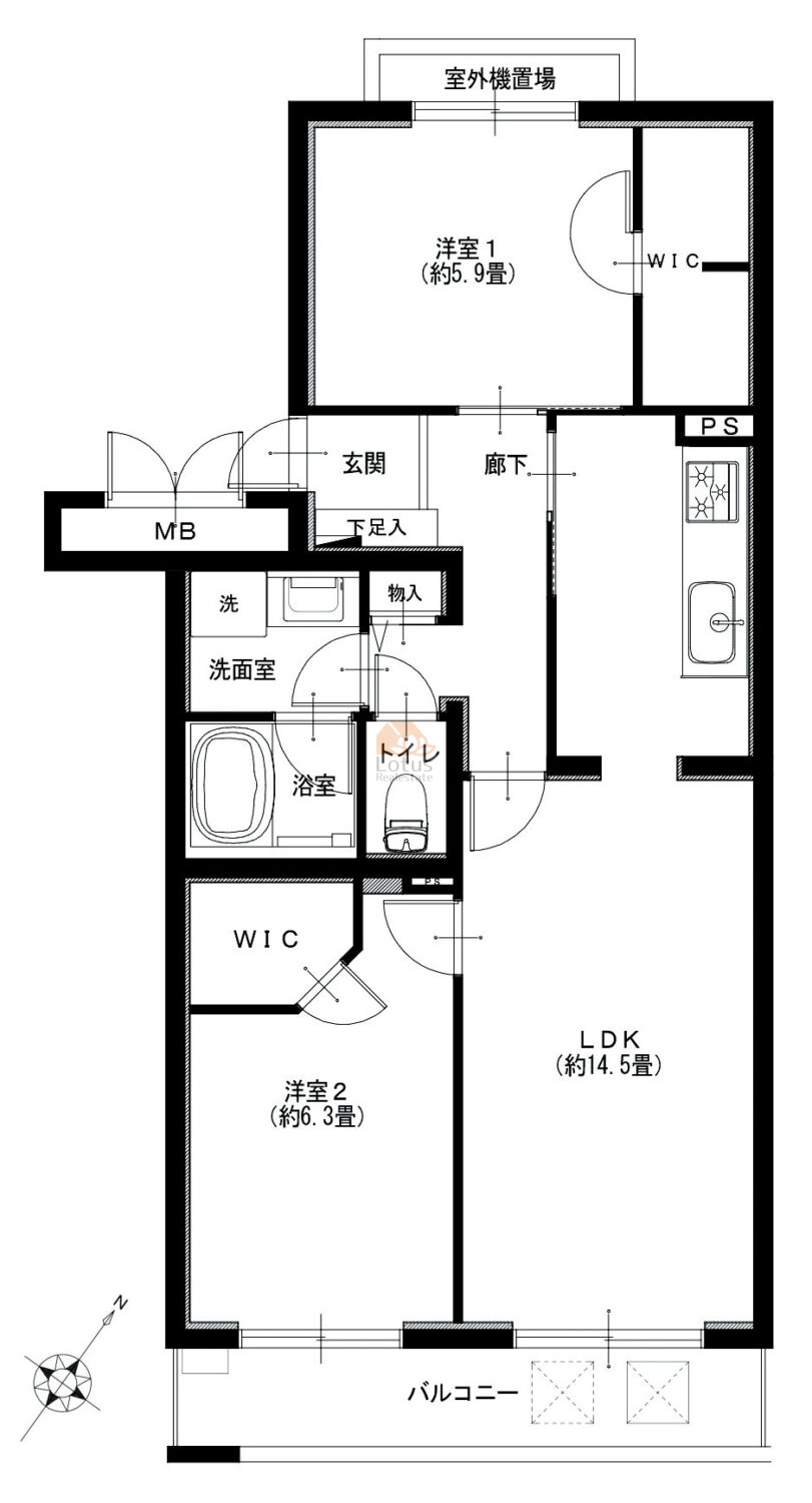
2LDK+2WICの間取り(63.72㎡)で、LDKが約14.5帖と広く、WICが2か所あるため、収納力とゆとりのある空間を両立したいお客様のニーズに応えます 。「竹中工務店」施工で、物件の品質を重視したいお客様にもおすすめです 。
新規フルリノベーションが完了済み(2025年11月完了)で、水回りから内装まですべて一新されているため 、すぐに新築同様の快適な生活をスタートできます。フラット35適合物件 なので、資金計画を立てやすく、新しい生活を前向きに始められる暮らしを提案します。
2025/11/28時点の売出価格は14490万円でした。
「表参道」駅徒歩7分・「外苑前」駅徒歩9分という都心の動線を確保しながら、閑静な住宅街に佇む低層レジデンスというバランスが知的で洗練されています。ローソンや「パンとエスプレッソと」「ブレッツカフェ クレープリー」「CHAVATY」が徒歩3分圏内という“生活の密度が高いのに静けさが残る感じ”が、都心暮らしに慣れた人ほど魅力に映ると思います。
ペットの飼育は不可です。
築41年9か月です。新耐震です。高い安全性が期待できます。 ローン控除は可です。
リノベーション状況について
リノベーション:給湯器交換、システムキッチン交換、ユニットバス交換、洗面台交換、トイレ交換、全室クロス張替、全フローリング張替、全建具交換、フロアタイル張替、下足入れ交換、洗濯水栓器具交換、防水パン交換、スイッチパネル設置、照明器具設置 (2025年11月完了)
| 交通 |
銀座線 外苑前 徒歩7分 半蔵門線 表参道 徒歩7分 千代田線「明治神宮前」駅 徒歩14分、山手線「原宿」駅 徒歩16分 | ||
|---|---|---|---|
| 築年 | 1984/03築 | 現況/引渡/入居時期 | 空家 |
| 土地権利 | 所有権 | 土地面積 | m² |
| 物件番号 | 251128000016 | 掲載期限日 | 2025/12/26 |
| 状態 | 売り出し中 | 取引態様 | 仲介 |
更新
- 普通の不動産屋ではできないこと
押し売りせず、丁寧に寄り添うのがロータス不動産のスタイルです。知識と経験を活かし、物件の良いところだけでなく、気になるところも、表面的な情報だけでなく、見えにくいリスクや将来性まで、あらゆる方向から包み隠さず情報おお伝えしています。ご期待ください。
手続きを知る
ローンのことなど
ローン相談も対応いたします。ローンの対応力は、10年以上営業している会社の強みです。お客様専用の諸費用例を作成いたします。諸費用のローン化もご対応できます。親身に対応いたします。
その他はよくあるご質問をご覧ください。
ローン相談も対応いたします。ローンの対応力は、10年以上営業している会社の強みです。お客様専用の諸費用例を作成いたします。諸費用のローン化もご対応できます。親身に対応いたします。
その他はよくあるご質問をご覧ください。














スカイプラザ赤坂 10380万円 1階 1
レガスタ浅草 5980万円 10階 1
東京アムフラット 10480万円 5階 1
