パークタワー東京フロント 507 3LDK
13800万円
83.65㎡ が仲介手数料無料!up
京急蒲田駅徒歩2分、空を身近にする拠点。免震構造と有人管理の安心が、世界へ羽ばたくあなたの日常を支えます。
仲介手数料無料でできますので、420万円ほどオトクになります!

パークタワー東京フロント
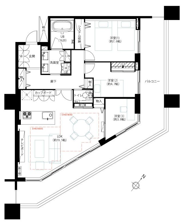
パークタワー東京フロント 507 3LDK 83.65㎡
| 価格 | ||||
|---|---|---|---|---|
| 面積 | 83.65m² (バルコニー31.87m²) | |||
| 間取 | 3LDK 5階 |
|||
| 管理費等 | 管理費 19910円 修繕積立金 20910円 (合計 40,820円) | |||
京急蒲田駅から徒歩2分、羽田空港まで最短6分という利便性は、空を拠点に活動するプロフェッショナルの方々に最適です。移動時間の無駄を省き、都心と世界を自在に使いこなすスマートなライフスタイルが実現します。
三井不動産旧分譲の免震タワーマンションという信頼性は、地震への不安を抱える都会暮らしの悩みに明確な答えを提供します。24時間有人管理の手厚い体制と多彩な共用スペースが、安心と誇りを感じさせる暮らしを支えます。
リノベーションにより刷新された広いLDKと、LD部分に配された床暖房は、冬場も快適な団らんの時間をもたらします。ペット2匹との暮らしも可能で、機能性と温かな家庭の幸せを両立したい方にふさわしい住まいです。
2026年2月14日時点の売出価格は13800万円でした。
ペットの飼育は可です。 小型犬・猫は1住戸につき計2匹まで飼育可。
築22年1か月です。新耐震です。高い安全性が期待できます。 ローン控除は可です。
リノベーション状況について
リノベーション:フローリング、クロス、洗面、トイレ、キッチン、ユニットバス、建具、床暖房(LD)、新規エアコン設置 (1台)
| 交通 | 京急本線 京急蒲田 徒歩2分 | ||
|---|---|---|---|
| 所在地 | 東京都大田区蒲田4丁目19-5 | ||
| 築年 | 2004/01築 | 現況/引渡/入居時期 | |
| 土地権利 | 所有権 | 土地面積 | m² |
| 物件番号 | 260214000018 | 掲載期限日 | 2026/03/14 |
| 状態 | 売り出し中 | 取引態様 | 仲介 |
更新
- 普通の不動産屋ではできないこと
押し売りせず、丁寧に寄り添うのがロータス不動産のスタイルです。知識と経験を活かし、物件の良いところだけでなく、気になるところも、表面的な情報だけでなく、見えにくいリスクや将来性まで、あらゆる方向から包み隠さず情報おお伝えしています。ご期待ください。
手続きを知る
ローンのことなど
その他はよくあるご質問をご覧ください。
その他はよくあるご質問をご覧ください。
他のお部屋の販売情報
パークタワー東京フロントの別室
| 所在階 | 価格 | 面積 | 間取り | 詳細 |
|---|---|---|---|---|
| 23階 2305 |
14700万円 | 83.65m² | 2LDK | 詳細 |
沿線の販売中物件
大森海岸ハウス 8799万円 12階 3
南六郷パークハウス 4380万円 11階 3
セザール大森本町 3980万円 3階 2
グランシティ蒲田東 5990万円 3階 3
大森海岸ハウス 5180万円 1階 3
エンゼルハイム大森本町第2 6099万円 12階 2
レクセル大森ラウンドアーク 6998万円 2階 2
ブランズ東品川 12800万円 9階 3
マイキャッスル大森町エクセレントステージ 7799万円 13階 2
メイツ大森西 6799万円 9階 2
エンゼルピュア大森 7199万円 9階 3
大森永谷マンションB棟 1990万円 1階 1