リプレゼ入谷[仲介手数料無料]

代表・春日秀典
台東区千束の下町情緒に寄り添う「リプレゼ入谷」は、モニター付きオートロックや宅配ボックス完備、ペット飼育可など都市生活に嬉しい機能を備えた中規模マンションです。日比谷線「入谷」駅徒歩8分、TX「浅草」駅徒歩9分の立地に加え、24時間ゴミ出しや長期修繕計画の整備が魅力で、安心して暮らせる都心居住を実現します。
仲介手数料無料・半額・割引ならば2~3か月分の月収の節約も可能!
ロータス不動産の仲介手数料無料とは、売主様より手数料をいただくことにより、買主様の手数料を免除するというビジネスモデル。新規リノベ、新築戸建てのような商品物件に適用できます。手数料無料にできない物件は、原則として手数料半額(「3%+6万+税」の半分)で対応しています。
もちろん、ロータス不動産は手数料の安さだけがウリの会社ではなく、知識と経験を活かし、いいづらい情報、リスクも事前に説明し、お客様の購入・売却をサポートしています。そのことは実績やブログなどで確認いただけるでしょう。
リプレゼ入谷の解説

代表・春日秀典
リプレゼ入谷のレビュー
979,929円/戸の積立金残高で、残高はおおむね良好で、順調な管理体制をうかがえます。長期修繕計画もあります。築21年1か月の新耐震で、賑やかな立地の中規模物件です。
下町と都心のバランスで選ぶ、コンパクト&快適な都心ライフ
リプレゼ入谷は、日比谷線「入谷」駅から徒歩8分、TX「浅草」駅からも徒歩9分の便利な立地に建つマンションです。台東区千束の落ち着いた下町エリアにありながら、上野・浅草エリアも生活圏。買い物環境も整っており、通勤・休日どちらも暮らしやすいポジションです。
建物は2004年築、地上11階建・総戸数31戸の中規模レジデンス。外観は落ち着いた印象で、オートロックや宅配ボックス、24時間ゴミ出し可能など、日常の快適さに配慮された設備が整っています。2024年には共用部の塗装工事も完了予定で、管理状況にも安心感があります。
モニター付きオートロックや宅配ボックスといった都市生活に欠かせない設備に加え、ペットの飼育も可能(細則あり)な点もポイント。DINKsや単身者にフィットする、「ちょうどいい規模感」と「機能性」を備えた都心の住まいです。
すぐ近くには「ファミリーマート千束三丁目店」や「まいばすけっと」、スーパー「肉のハナマサ」などがあり、買い物に困ることはありません。生活利便性と落ち着いた街の雰囲気、どちらも大切にしたい方におすすめの一棟です。
維持・管理の体制
大和ライフネクスト株式会社の全部委託(巡回)管理。
維持・修繕の対応状況
長期修繕計画: あり
修繕積立金の額: ¥30,377,808(2024-11-30時点)、戸あたり¥979,929円です。残高はおおむね良好で、順調な管理体制をうかがえます。
過去の修繕履歴:
- 2018年 大規模修繕工事
施設・設備
- 駐車場 : あり(空き状況は要確認)25,000~30,000円/月
- バイク置場 : 無し
- 駐輪場 : あり
- エレベータ : あり
- 宅配ボックス : あり
- オートロック : あり
- TVドアフォン : あり
- その他施設 : 要確認
マンションルール
- ペットの可否 : 可
- 事務所の可否 : 不可
- 楽器の可否 : 可
ペット可の内容:体長70cmまでの犬・猫は1住戸につき合計3匹まで、その他の小動物等はかごもしくは水槽内で一般的に飼育できる数を限度とします。
災害・耐震
2004/12築で、 総戸数31戸の 鉄筋コンクリート11階建て。
2026年1月の時点で 築 22年 1か月となります。1981年6月以降の建築確認により新耐震です。高い安全性が期待できます。
台東区の災害マップなどをご覧いただけるよう区のウェブサイトへのリンクを用意しました。
相場・価格履歴
過去に当社サイトが公開情報から収集したリノベーションマンションの売出履歴です。 また、それから想定できる「個人売り物件の予想価格」「不動産業者による買取価格」をシミュレーションしました。 売却相談も歓迎。
| 時期 | フロア | 面積 | リノベ物件 相場 (履歴・万円/㎡) |
通常状態の 相場 (想定目安・万円/㎡) |
買取の相場 (想定目安・万円/㎡) |
備考 |
|---|---|---|---|---|---|---|
| 2025/4 | 5階 | 約64㎡ | @105.1 | @95.3 | @68.7 | |
| 2024/2 | 6階 | 約64㎡ | @101.34 | @91.5 | @65.9 | |
| 2024/2 | 6階 | 約64㎡ | @107.5 | @97.7 | @70.5 | |
| 2023/8 | 6階 | 約64㎡ | @87.63 | @77.8 | @55.7 | |
| 2023/7 | 4階 | 約64㎡ | @98.9 | @89.1 | @64.1 | |
| 2023/6 | 6階 | 約64㎡ | @88.56 | @78.7 | @56.4 | |
| 2023/5 | 6階 | 約64㎡ | @89.17 | @79.4 | @56.9 | |
| 2023/5 | 6階 | 約64㎡ | @89.17 | @79.4 | @56.9 | |
| 2023/3 | 6階 | 約64㎡ | @90.71 | @80.9 | @58 | |
| 2023/1 | 6階 | 約64㎡ | @92.25 | @82.4 | @59.2 | |
| 2022/2 | 2階 | 約64㎡ | @77.49 | @67.7 | @48.1 | |
| 2022/1 | 2階 | 約64㎡ | @79.04 | @69.2 | @49.3 |
出典:当社サイト
過去の掲載物件
こちらの事例物件は成約となりましたが、当社ではほかにも仲介手数料もしくは半額で物件を紹介・お取り扱いしております。
過去掲載物件 / 5階 / 64.51m²
仲介料手数料無料で取扱していました
- 所在階
- 5階
- 間取り
- 2LDK
- 専有面積
- 64.51㎡
- バルコニー
- 5.94㎡
- 管理費
- 10470円
- 修繕積立金
- 21600円
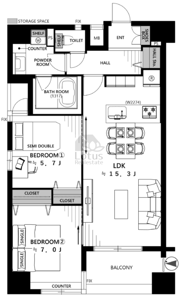
5階の北西角部屋で全居室に開口部があり、通風・採光ともに心地よい2LDK。開放感あるフラット対面キッチンや1317サイズのゆったりバスルームを備え、フラット35にも適合した安心の住まい。

過去掲載物件 / 6階 / 64.93m²
仲介料手数料無料で取扱していました
- 所在階
- 6階
- 間取り
- 3LDK
- 専有面積
- 64.93㎡
- バルコニー
- 5.94㎡
- 管理費
- 10540円
- 修繕積立金
- 21700円
・「リ・プレゼ入谷」は西向き・南西角部屋・対面キッチン・食洗器完備です。
・内装はリノベーションです。

物件概要
| 所在地 |
東京都台東区千束3丁目17-4
|
||
|---|---|---|---|
| 交通 |
日比谷線 入谷駅 徒歩8分 つくばエクスプレス 浅草駅 徒歩9分 |
||
| 築年 | 2004/12築 | ||
| 規模・構造 | 鉄筋コンクリート 11階建て 総戸数31戸 | ||
| 新築時売主 | 株式会社日本リーディング | ||
| 施工 | 中野建設株式会社 | ||
| 土地権利 | 所有権 | ||
| 用途地域 | 商業 | ||
| 管理形態 | 全部委託 巡回 | ||
| 管理会社 | 大和ライフネクスト株式会社 | ||
| 管理費単価 | 496.53 | ||
地図、周辺環境
台東区千束3丁目17-4
学校区
小学校:台東区立千束小学校(6分)
中学校:台東区立柏葉中学校(8分)
電話:03-5809-1630
営業時間:9:30~20:00/水曜定休
よくある仲介手数料無料・半額Q&A
仲介手数料は無料とかいって、超怪しいんですが?
仲介手数料無料にできるわけは、売主さんから手数料をいただいているからです。リノベマンション・新築戸建て・分譲宅地など、商品タイプの物件は広告費に相当する部分を仲介手数料として正当な報酬として支払ってくれます。手数料両手の業者と比べれば半分ですが、それでも23区ならかなりの高額になりますので大丈夫です。
仲介手数料無料のデメリットはありますか?
仲介手数料無料のデメリットと言われることは、低レベル業者だと発生する可能性がある問題を仲介手数料無料になすりつけているだけです。話をすり替えているだけで、実際には手数料有料でも起こりえることです。ただし売却で仲介手数料無料をやるとデメリットが生じることもあります。
仲介手数料無料なんて大したことない不動産屋ですよね?
大きな会社ではないのはその通りですが、大したことない会社かと言われれば、それはちがいます。ウェブに大量の露出をして、少々なら業界でも認識された会社です。今このページを見ていただいているのが何よりの証拠。当社は押し売りせず、丁寧に寄り添うのがロータス不動産のスタイルです。知識と経験を活かし、物件の良いところだけでなく、気になるところも、表面的な情報だけでなく、見えにくいリスクや将来性まで、あらゆる方向から包み隠さず情報をお伝えしています。ご期待ください。
仲介手数料は無料といっても、他にお金がかかるのではないですか?
ローン利用の場合、当社では調査事務手数料を33000円を頂いております※。これは不動産の調査に利用します。マンションの場合、積立金の残高の最新情報などは、管理会社に対する調査費用がかかり、これに使います。念ため申し上げますと、登記関連費用、銀行費用、税金、火災保険などの諸費用の負担がございますが、これらは外部のものなので、どの仲介業者でも差はありません。
その他「仲介手数料無料・半額のご質問と詳しい説明は以下のリンクからご覧いただけます。
詳しい情報を見る更新日:
近隣・沿線・類似の物件
沿線の販売中物件
東京日本橋シティタワー 12800万円 12階 2
プレジール日本橋人形町 8998万円 2階 2
クレアシティ入谷 8190万円 5階 2
クラウン西麻布 5580万円 2階 1
ライオンズ東京根岸レジデンス 7698万円 1階 2
朝日シティパリオ三ノ輪 7990万円 13階 3
ドマーニ人形町 10480万円 7階 2
グランドパーク入谷クレアーレ 8990万円 6階 2
同じ沿線のマンションを見てみよう
同じ沿線の他の駅にもマンションがあります。
同じで駅でも特に徒歩分数が近い物件を選びました。
千束と同じ町内のマンションを調べよう
千束のマンションカタログの詳細はこちらです。
- スカイコート入谷
- グランドメゾン入谷
- ジェム浅草プランドル
- メイングランディア浅草
- 浅草コーポ
- クレストフォルム浅草グランステージ
- リンクスアヴェニール
- ライジングプレイス浅草四番館
- ライジングプレイス浅草参番館
- フォースター入谷
- 浅草ダイヤモンドマンション
- 上野ダイカンプラザシティ
- プレジール入谷
- リストレジデンス浅草国際通り
- ペガサスマンション浅草
- セザール第2三ノ輪
- ハイライフ浅草
- ケルン浅草
- ドムール入谷
- エグザ三ノ輪アヴェニール
- シーズガーデン浅草
- 上野入谷シティハウス
- サンレイ浅草
- 日神デュオステージ三ノ輪
- マンション観月
- GSハイム入谷
区内の他地域のマンションを調べよう
区内の他の地域の物件も手数料割引にてご紹介できます。
- 台東区
- 秋葉原
- 浅草
- 浅草橋
- 池之端
- 今戸
- 入谷
- 上野
- 上野公園
- 上野桜木
- 雷門
- 北上野
- 清川
- 蔵前
- 小島
- 寿
- 駒形
- 下谷
- 台東
- 鳥越
- 西浅草
- 日本堤
- 根岸
- 橋場
- 花川戸
- 東浅草
- 東上野
- 松が谷
- 三筋
- 三ノ輪
- 元浅草
- 谷中
- 柳橋
- 竜泉
千束で似たような特徴のマンションを確認しよう
担当者

私が担当します:春日秀典
新築・中古を問わず、分譲マンションや戸建ての販売・開発に20年以上携わってきました。専門知識が欠かせない不動産の世界だからこそ、宅地建物取引士や公認不動産コンサルティングマスターなどの資格を活かして、日々の業務に取り組んでいます。
当社のサイトでは、物件の魅力はもちろん、将来的な資産価値や注意点まで率直にお伝えしています。「納得して取引できた」と思えるよう、判断材料をご提供しています。
なお、当サイトに掲載している情報は、すべて私自身が独自に執筆したものです。現場の肌感や最新動向も含め、信頼できる情報を目指しています。
不動産購入はそう何度もないご決断です。疑問や不安があれば、お気軽にご相談ください。納得感を持ってお取引いただけるよう、サポートいたします。
