竹の塚ビューハイツ 209 3LDK
2990万円
78㎡ が仲介手数料無料!
建物情報を見る
問い合わせ
2990万円
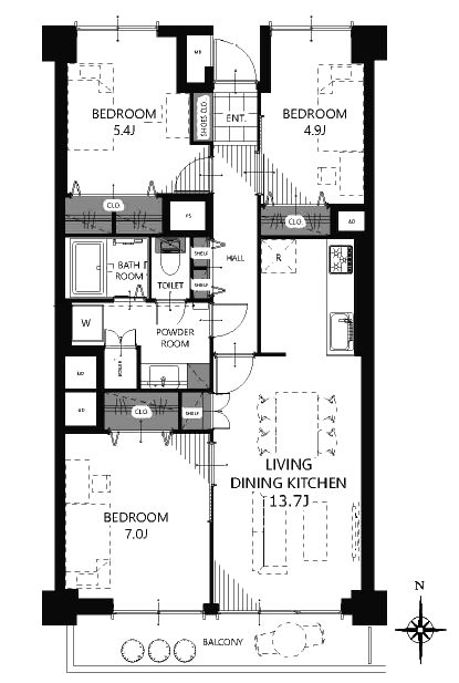
【間取図】竹の塚ビューハイツ209※図面と現況に相違がある場合は現況を優先します。
株式会社ロータス不動産 営業時間:9:30~20:00 / 定休日:水曜日
南向きの明るい陽光に包まれた3LDKで、最新のリノベーションと共に心地よい新生活を始められます。 ペット飼育可能で周辺の買い物環境も整っており、家族全員が満足できる穏やかな住環境が整っています。
仲介手数料無料でできますので、96万円ほどオトクになります!

建物情報
竹の塚ビューハイツ
竹の塚ビューハイツ
竹の塚ビューハイツ 209 3LDK 78㎡
| 価格 | ||||
|---|---|---|---|---|
| 面積 | 78m² (バルコニー7.54m²) | |||
| 間取 | 3LDK 2階 |
|||
| 管理費等 | 管理費 15440円 修繕積立金 12950円 (合計 28,390円) | |||
南向きで陽当たりが良く、明るい光が差し込むリビングは家族が自然と集まる居心地の良い空間となります。周辺環境も充実しており、落ち着いた住宅街で長く安心して暮らしたいご家庭に相応しい住まいです。
新規リノベーションにより室内が美しく生まれ変わっており、古いマンションの設備に不安を抱く方の悩みを解決します。ホームステージングが実施されているため、実際の生活イメージが湧きやすく、家具配置の参考にもなります。
ペットと一緒に暮らせる点が大きなメリットで、大切な家族との生活をそのまま維持することができます。駅からは少し距離がありますが、その分静かで穏やかな住環境が保たれており、日々のストレスを癒してくれます。
2026年4月7日時点の売出価格は2990万円でした。
築51年9か月です。新耐震です。高い安全性が期待できます。
ローン控除は可です。
リノベーション状況について
リノベーション:新規リノベーション
| 交通 | 東武スカイツリーライン 竹ノ塚 徒歩15分 | ||
|---|---|---|---|
| 所在地 | 東京都足立区六月2丁目17-4 | ||
| 築年 | 1974/07築 | 現況/引渡/入居時期 | |
| 土地権利 | 所有権 | 土地面積 | m² |
| 物件番号 | 260407000018 | 掲載期限日 | 2026/05/05 |
| 状態 | 売り出し中 | 取引態様 | 仲介 |
更新
- 普通の不動産屋ではできないこと
押し売りせず、丁寧に寄り添うのがロータス不動産のスタイルです。知識と経験を活かし、物件の良いところだけでなく、気になるところも、表面的な情報だけでなく、見えにくいリスクや将来性まで、あらゆる方向から包み隠さず情報おお伝えしています。ご期待ください。
手続きを知る
ローンのことなど
その他はよくあるご質問をご覧ください。
不動産仲介手数料無料・半額のこと
+
No posts found in this category.
その他はよくあるご質問をご覧ください。
不動産仲介手数料無料・半額のこと
+
No posts found in this category.
他のお部屋の販売情報
沿線の販売中物件
隅田グリーンマンション 4199万円 9階 3
グリーンパーク五反野10 3490万円 3階 2
向島パークハイツ第2 6999万円 6階 2
ダイナシティ浅草 6998万円 3階 1
五反野ダイヤモンドマンション 2180万円 6階 1
浅草ロイヤルマンション 5180万円 2階 1
ファミール向島桜橋 7490万円 6階 3
東武大師前サンライトマンション3号館 3390万円 4階 3
グランベルフォーシーズンズタワー 3399万円 7階 2
竹の塚ガーデンハウス 3199万円 7階 2
日商岩井西新井マンション 2490万円 1階 3
ダイアパレス西新井大師 3099万円 1階 3
ジェイシティ墨田鐘ヶ淵 6490万円 4階 3
ペルレ五反野 2399万円 2階 1
SSKグリーンパーク竹の塚Ⅱ 3290万円 5階 3
足立区内の売り物件を探す
- 一ツ家
- 中央本町
- 中川
- 伊興
- 保木間
- 入谷町
- 六月
- 加平
- 千住
- 千住中居町
- 千住仲町
- 千住宮元町
- 千住曙町
- 千住東
- 千住桜木
- 千住河原町
- 大谷田
- 小台
- 島根
- 扇
- 新田
- 日ノ出町
- 東伊興
- 東保木間
- 東和
- 柳原
- 栗原
- 江北
- 神明
- 神明南
- 竹の塚
- 綾瀬
- 興野
- 舎人
- 西保木間
- 西新井
- 西竹の塚
- 西綾瀬
- 谷中
- 足立
- 青井
- 鹿浜
六月エリアのマンションカタログ
- サンハイム竹の塚
- スマeタウン足立竹ノ塚
- 第15小倉ハイコーポ
- 小倉第6マンション
- セザール竹ノ塚
- エンゼルハイム竹の塚
- 日神パレステージ竹ノ塚第2
- レーベンハイム竹ノ塚ヴィナロス
- 竹の塚ビューハイツ
- マイキャッスル竹ノ塚3
- レクセルマンション西新井
- 第1竹ノ塚マンション