ガーデンヴィラ芦花公園 508 3LDK
10480万円
78.98㎡ が仲介手数料無料!up
南向きの陽光が降り注ぐ明るい住まいと、大規模物件ならではの充実した共用施設が、暮らしに彩りを添えます。フルリノベーション済みの快適な室内で、ペットと共に理想のライフスタイルを実現できます 。
仲介手数料無料でできますので、320万円ほどオトクになります!

ガーデンヴィラ芦花公園
ガーデンヴィラ芦花公園 508 3LDK 78.98㎡
| 価格 | ||||
|---|---|---|---|---|
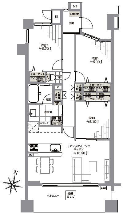
| 面積 | 78.98m² (バルコニー13m²) | |||
| 間取 | 3LDK 5階 |
|||
| 管理費等 | 管理費 18270円 修繕積立金 17910円 (合計 36,180円) | |||
132戸の大規模コミュニティならではの、ラウンジやシアタールームといった共用施設が、自宅以外のサードプレイスを提供します。南向きで眺望も良好な室内は、明るい住環境を求める方に最適です 。
リノベーションにより水回りから建具まで一新されており、最新の設備が日々の家事効率を向上させます。ペットの飼育も可能で、散歩に適した公園も近隣にあるため、愛犬家の方にも満足いただける環境です 。
長期修繕計画があり、管理体制も日勤のため、建物の将来性や日々の清掃状態に不安を感じている方も安心できます。モニター付オートロックなどのセキュリティ設備が、家族の安全をしっかりと守ります 。
2026年3月30日時点の売出価格は10480万円でした。
ペットの飼育は可です。
築20年9か月です。新耐震です。高い安全性が期待できます。
ローン控除は可です。
リノベーション状況について
リノベーション:フローリング新規貼替、ユニットバス・洗面化粧台・トイレ・システムキッチン・給湯器・洗濯水栓・防水パン新規交換、壁・天井クロス新規交換、建具・玄関収納新規交換等
| 交通 | 京王線 千歳烏山 徒歩14分 | ||
|---|---|---|---|
| 所在地 | 東京都世田谷区粕谷1丁目12-16 | ||
| 築年 | 2005/07築 | 現況/引渡/入居時期 | |
| 土地権利 | 所有権 | 土地面積 | m² |
| 物件番号 | 260330000010 | 掲載期限日 | 2026/05/11 |
| 状態 | 売り出し中 | 取引態様 | 仲介 |
更新
- 普通の不動産屋ではできないこと
押し売りせず、丁寧に寄り添うのがロータス不動産のスタイルです。知識と経験を活かし、物件の良いところだけでなく、気になるところも、表面的な情報だけでなく、見えにくいリスクや将来性まで、あらゆる方向から包み隠さず情報おお伝えしています。ご期待ください。
手続きを知る
ローンのことなど
その他はよくあるご質問をご覧ください。
不動産仲介手数料無料・半額のこと
+
No posts found in this category.
その他はよくあるご質問をご覧ください。
不動産仲介手数料無料・半額のこと
+他のお部屋の販売情報
沿線の販売中物件
秀和幡ヶ谷レジデンス 4180万円 9階 1
ザ・グランツ代々木参宮橋 13980万円 5階 2
キャニオングランデ桜上水 4499万円 6階 1
芦花公園ハイツ 6990万円 3階 3
芦花公園プレスティージュ 14177万円 6階 4
シャルマンコーポ第2芦花公園 5980万円 1階 3
ライオンズマンション幡ヶ谷 6490万円 1階 2
パールハイツ笹塚 6799万円 7階 3
八幡山ビューグリーン 7499万円 7階 3
ライオンズマンション幡ヶ谷 6190万円 6階 1
マンション和泉苑 3280万円 4階 1
ライオンズマンション幡ヶ谷 8190万円 1階 1
エスポワール松原 7798万円 6階 2
サーラ・コモド八幡山ヴェローナ 5399万円 4階 1
南烏山パーク・ホームズ 5999万円 3階 3
世田谷区内の売り物件を探す
粕谷エリアのマンションカタログ
- ガーデンヴィラ芦花公園
- サンクタス千歳烏山
- ファミール千歳烏山
- パークハイム芦花恒春園
- パラスト芦花公園
- ハイラーク芦花公園
- 藤和シティホームズ千歳烏山
- ディーグラフォート世田谷芦花公園
- グランスティル世田谷
- 第2芦花公園ヒミコセラン