フォルスコート学芸大学 403 3LDK
13480万円
72.68㎡ が仲介手数料無料!up
人気の学芸大学エリアに位置し、豊かな自然と都市の利便性を享受できるフルリノベーション済みの機能的な住戸です。配管まで更新された安心の品質と充実した家事時短設備が、憧れの街での上質な生活をしっかりと支えます。
仲介手数料無料でできますので、410万円ほどオトクになります!

フォルスコート学芸大学
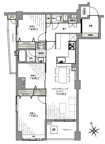
フォルスコート学芸大学 403 3LDK 72.68㎡
| 価格 | ||||
|---|---|---|---|---|
| 面積 | 72.68m² (バルコニー9.62m²) | |||
| 間取 | 3LDK 4階 |
|||
| 管理費等 | 管理費 17800円 修繕積立金 11350円 (合計 29,150円) | |||
憧れの学芸大学エリアで、豊かな自然と洗練された都市生活を同時に手に入れたいという願いを形にします。最新のフルリノベーションに加えて、配管まで更新されている安心感が、住まいの見えない部分への不安を解消してくれます。
ペットと一緒に暮らせる環境があり、近隣には公園も充実しているため、休日の散歩が新しい楽しみになります。オートロックや宅配ボックスといった共用設備が日々の暮らしをスマートに支え、忙しい現代人のライフスタイルに寄り添います。
L字型の使いやすいキッチンや食洗機など、料理を楽しむための工夫が散りばめられた空間が、家族の団らんをより豊かなものにします。周辺環境の利便性と室内の機能性が調和し、住むほどに愛着が深まるような日常を提供します。
2026年3月27日時点の売出価格は13480万円でした。
築26年8か月です。新耐震です。高い安全性が期待できます。
ローン控除が利用できます。
リノベーション状況について
リノベーション:フローリング新規貼替、ユニットバス新規交換、洗面化粧台新規交換、トイレ新規交換、システムキッチン新規交換、壁・天井クロス新規交換、建具・玄関収納新規交換、給湯器新規交換、洗濯水栓・防水パン新規交換、給排水管新規交換(一部既存)
| 交通 | 東急東横線 学芸大学 徒歩12分 | ||
|---|---|---|---|
| 所在地 | 東京都世田谷区野沢3丁目6-15 | ||
| 築年 | 1999/08築 | 現況/引渡/入居時期 | |
| 土地権利 | 所有権 | 土地面積 | m² |
| 物件番号 | 260327000014 | 掲載期限日 | 2026/05/08 |
| 状態 | 売り出し中 | 取引態様 | 仲介 |
更新
- 普通の不動産屋ではできないこと
押し売りせず、丁寧に寄り添うのがロータス不動産のスタイルです。知識と経験を活かし、物件の良いところだけでなく、気になるところも、表面的な情報だけでなく、見えにくいリスクや将来性まで、あらゆる方向から包み隠さず情報おお伝えしています。ご期待ください。
手続きを知る
ローンのことなど
その他はよくあるご質問をご覧ください。
不動産仲介手数料無料・半額のこと
+
No posts found in this category.
その他はよくあるご質問をご覧ください。
不動産仲介手数料無料・半額のこと
+他のお部屋の販売情報
沿線の販売中物件
ウィスティリアコート代官山 15480万円 2階 2
柿の木坂パレス 8999万円 13階 3
朝日自由が丘マンション 5980万円 1階 1
ウィスティリアコート代官山 18980万円 7階 1
代官山アドレス 26990万円 18階 2
世田谷区内の売り物件を探す
野沢エリアのマンションカタログ
- ディーグランセ駒沢大学
- ハイホーム駒沢公園
- メモアール柿の木坂
- フォルスコート学芸大学
- ベルグレードK
- 東急ドエルアルス学芸大学パークサイド
- グランドメゾン野沢
- 柿ノ木坂東豊エステート
- フジタ野沢マンション
- パルムハウス野沢
- 学芸大ダイヤモンドマンション
- 柿の木坂パレス
- 野沢ビューグリーン
- ザパークハウス学芸大学四季の杜
- 柿の木坂東豊エステート
- 野沢サマリヤマンション
- ニュー上馬マンション
- ライオンズマンション学芸大学グランフォート
- 野沢ダイヤモンドマンション
- 日生野沢マンション
- サンスタレ駒沢
- 世田谷野沢ハイデンス