パークハウス市谷仲之町 408 3LDK
21980万円
79.21㎡ が仲介手数料無料!
広々としたルーフバルコニーが日常に非日常の彩りを添え、都心にいながら空と風を感じる贅沢を実現します。ブランドマンションならではの堅牢な安心感と洗練された室内空間が、上質な家族の時間を支えます。
仲介手数料無料でできますので、665万円ほどオトクになります!

パークハウス市谷仲之町
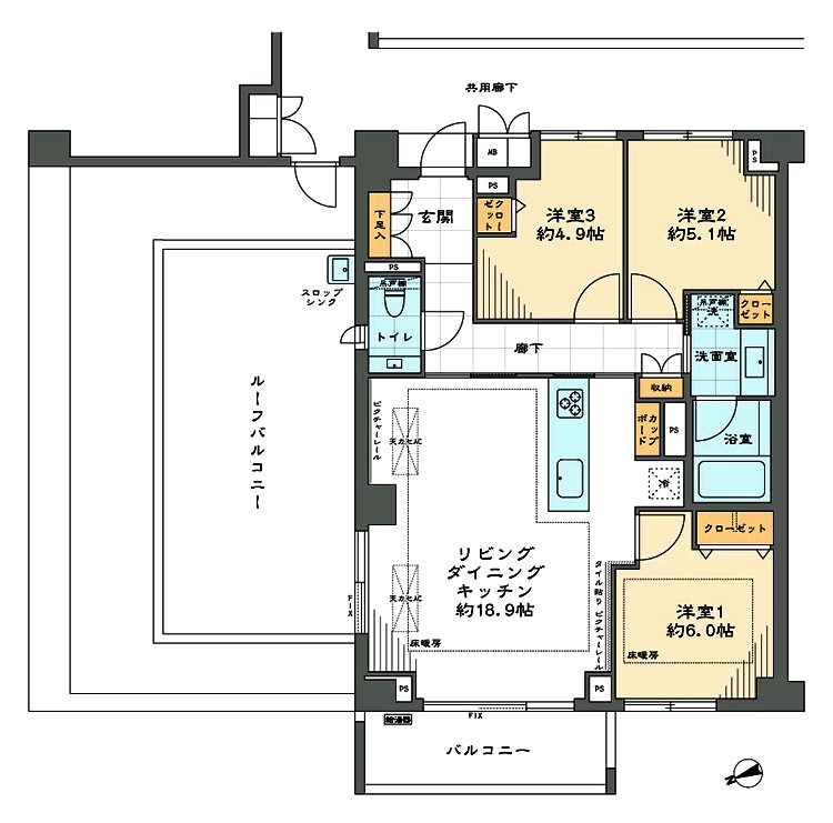
パークハウス市谷仲之町 408 3LDK 79.21㎡
| 価格 | ||||
|---|---|---|---|---|
| 面積 | 79.21m² (バルコニー6.9m²) | |||
| 間取 | 3LDK 4階 |
|||
| 管理費等 | 管理費 16200円 修繕積立金 28000円 (合計 44,200円) | |||
26平米もの広大なルーフバルコニーは、室内だけの生活に息苦しさを感じている方に、開放的なプライベート空間を提供します。都市の空を独り占めできるこの場所は、ガーデニングや趣味の時間を通じて日常のストレスを解消してくれます。
三菱地所旧分譲のブランド力と、戸田建設施工による信頼性は、建物の品質に強いこだわりを持つ方の不安を解消します。床暖房やホームセキュリティなどの設備が充実しており、冬の寒さや防犯面での懸念も払拭されます。
全室に窓が配置された79平米超のゆとりある設計は、家族それぞれのプライバシーを保ちつつ、明るい住空間を維持します。ペット2匹まで飼育可能という条件は、大切な家族である動物たちとの理想的な共生を望む方の願いを叶えます。
2026年4月15日時点の売出価格は21980万円でした。
築21年6か月です。新耐震です。高い安全性が期待できます。
ローン控除が利用できます。
リノベーション状況について
リノベーション:間取り変更、設備一新等
| 交通 | 都営新宿線 曙橋 徒歩3分 | ||
|---|---|---|---|
| 所在地 | 東京都新宿区市谷仲之町2-7 | ||
| 築年 | 2004/10築 | 現況/引渡/入居時期 | |
| 土地権利 | 所有権 | 土地面積 | m² |
| 物件番号 | 260414000018 | 掲載期限日 | 2026/05/12 |
| 状態 | 売り出し中 | 取引態様 | 仲介 |
更新
- 普通の不動産屋ではできないこと
押し売りせず、丁寧に寄り添うのがロータス不動産のスタイルです。知識と経験を活かし、物件の良いところだけでなく、気になるところも、表面的な情報だけでなく、見えにくいリスクや将来性まで、あらゆる方向から包み隠さず情報おお伝えしています。ご期待ください。
手続きを知る
ローンのことなど
その他はよくあるご質問をご覧ください。
不動産仲介手数料無料・半額のこと
+
No posts found in this category.
その他はよくあるご質問をご覧ください。
不動産仲介手数料無料・半額のこと
+他のお部屋の販売情報
沿線の販売中物件
コスモ21ガーデンズフォート 5880万円 11階 3
新大橋永谷マンション 3990万円 9階 2
東大島ハイライズ 4899万円 1階 3
メゾン代々木 6480万円 8階 1
ハイラーク船堀 4998万円 1階 2
ランジュ2000ohjima 8980万円 9階 3
南篠崎スカイハイツB棟 3498万円 8階 3
ネバーランド大島 8480万円 6階 3
ゾンネンハイム北砂 5498万円 2階 3
四谷ガーデニア 12300万円 7階 2
オーベル船堀 7680万円 7階 4
プラウド九段南 20980万円 9階 2
コスモ大島グランコート 5798万円 4階 3
トーカンマンション大島C棟 6980万円 11階 3
住吉パーク・ホームズ 9480万円 7階 3
新宿区内の売り物件を探す
- 三栄町
- 上落合
- 下落合
- 中井
- 中落合
- 二十騎町
- 住吉町
- 北新宿
- 南町
- 原町
- 四谷
- 大京町
- 富久町
- 山吹町
- 左門町
- 市谷仲之町
- 市谷左内町
- 市谷柳町
- 市谷薬王寺町
- 新宿
- 新小川町
- 早稲田鶴巻町
- 東榎町
- 片町
- 百人町
- 築地町
- 若松町
- 若葉
- 荒木町
- 西五軒町
- 西新宿
- 西早稲田
- 高田馬場