パーク・コート落合台 201 3LDK
11480万円
76.42㎡ が仲介手数料無料!up
2026年1月完了のフルリノベーションがもたらす、清々しい空気と最新設備の快適さ。人感センサー付玄関や一新された水回りが、住む人の毎日をスマートに演出します。
仲介手数料無料でできますので、350万円ほどオトクになります!
2026年04月7日に価格改定しました(改定前:11580万円)

パークコート落合台
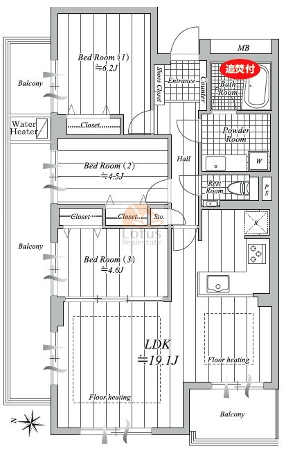
パーク・コート落合台 201 3LDK 76.42㎡
| 価格 | ||||
|---|---|---|---|---|
| 面積 | 76.42m² 壁芯(バルコニー18.82m²) | |||
| 間取 | 3LDK 2階 北 |
|||
| 管理費等 | 管理費 20500円 修繕積立金 32710円 (合計 53,210円) | |||
| 周辺施設 | 新宿区立落合第五小学校 徒歩4分 新宿区立落合第二中学校 徒歩7分 | |||
古い設備による故障や衛生面の不安を抱える方へ、2026年1月に完了のフルリノベーション住戸を提案します。給湯器から水回り一式まで刷新されており、新築のような清潔感の中で生活を始められます。
整理整頓が苦手な方の悩みを、玄関の人感センサー照明と新調された下足入れが解決します。帰宅時に自動で足元が明るくなり、大容量の収納に家族全員の靴を収めることで、常にスッキリとした玄関を保てます。
全室のクロスとフローリングを貼り替えた室内は、アレルギーが気になる方にも安心です。最新のシステムキッチンやユニットバスが日々の清掃負担を軽減し、ゆとりある時間をもたらしてくれます。
2026年2月3日時点の売出価格は11880万円でした。
ペットの飼育は不可です。
築28年10か月です。新耐震です。高い安全性が期待できます。
ローン控除は可です。
リノベーション状況について
リノベーション:給湯器、システムキッチン、ユニットバス、洗面台、トイレ交換、全室クロス・フローリング張替、全建具交換、フロアタイル張替、下足入交換、洗濯水栓・防水パン交換、照明器具設置等(2026/1/15完了)
| 交通 |
西武新宿線 中井 徒歩5分 東西線 落合 徒歩11分 大江戸線「中井駅」徒歩6分、大江戸線「落合南長崎駅」徒歩12分 | ||
|---|---|---|---|
| 所在地 | 東京都新宿区中井2丁目19-16 | ||
| 築年 | 1997/06築 | 現況/引渡/入居時期 | 空家 |
| 土地権利 | 所有権 | 土地面積 | m² |
| 物件番号 | 260203000023 | 掲載期限日 | 2026/05/16 |
| 状態 | 売り出し中 | 取引態様 | 仲介 |
更新
- 普通の不動産屋ではできないこと
押し売りせず、丁寧に寄り添うのがロータス不動産のスタイルです。知識と経験を活かし、物件の良いところだけでなく、気になるところも、表面的な情報だけでなく、見えにくいリスクや将来性まで、あらゆる方向から包み隠さず情報おお伝えしています。ご期待ください。
手続きを知る
ローンのことなど
ローン相談も対応いたします。ローンの対応力は、10年以上営業している会社の強みです。お客様専用の諸費用例を作成いたします。諸費用のローン化もご対応できます。親身に対応いたします。
その他はよくあるご質問をご覧ください。
不動産仲介手数料無料・半額のこと
+
No posts found in this category.
ローン相談も対応いたします。ローンの対応力は、10年以上営業している会社の強みです。お客様専用の諸費用例を作成いたします。諸費用のローン化もご対応できます。親身に対応いたします。
その他はよくあるご質問をご覧ください。
不動産仲介手数料無料・半額のこと
+他のお部屋の販売情報
沿線の販売中物件
エクセル石神井台 4990万円 3階 3
サニーハウスさぎの宮 4198万円 3階 3
エミール松ヶ丘 7480万円 3階 2
藤和シティコープ中野沼袋 6990万円 6階 3
パシフィック中野 3990万円 7階 1
ライオンズマンション野方 4290万円 4階 1
グローベルザ・シーズン鷺ノ宮パークス 6490万円 4階 2
藤和シティホームズ下落合 8480万円 2階 3
レーベンハイム武蔵関 6499万円 5階 3
武蔵野グリーンタウンC棟 3790万円 6階 3
武蔵野フィールド・レジデンス 7780万円 6階 3
コーズ関町スカイハイツ2号棟 4098万円 4階 3
恒陽鷺宮マンションC棟 4580万円 3階 3
パシフィックニュー中野 7290万円 2階 3
日神シルバーパレス鷺宮 4280万円 4階 1
新宿区内の売り物件を探す
- 三栄町
- 上落合
- 下落合
- 中井
- 中落合
- 二十騎町
- 住吉町
- 北新宿
- 南町
- 原町
- 四谷
- 大京町
- 富久町
- 山吹町
- 左門町
- 市谷仲之町
- 市谷左内町
- 市谷柳町
- 市谷薬王寺町
- 新宿
- 新小川町
- 早稲田鶴巻町
- 東榎町
- 歌舞伎町
- 片町
- 白銀町
- 百人町
- 築地町
- 若松町
- 若葉
- 荒木町
- 西五軒町
- 西新宿
- 西早稲田
- 高田馬場