ダイアパレス幡ヶ谷第2の売買情報[仲介手数料無料]

代表・春日秀典
渋谷区幡ヶ谷は人気のエリアで、生活環境も良好。築41年1か月の新耐震で、駅至近の立地の中規模物件です。
23区の中古マンション売買を扱う会社です
現在、当社サイトには売出物件の掲載はありませんが、不動産サイトで公開されているダイアパレス幡ヶ谷第2が仲介手数料が無料・半額・割引になる場合があります。入力1~2分でメールで確認できます(なお賃貸の扱いはありません)
仲介手数料無料・半額・割引って?
売主から手数料をもらえるので買主は免除。これが手数料無料のカラクリ。それに該当しない物件は手数料半額です。もちろん、手数料の安さだけがウリではなく、知識と経験を活かし、いいづらい情報、リスクも事前に説明し、お客様の購入・売却をサポートしています。そのことは実績やブログなどで確認いただけるでしょう。

ダイアパレス幡ヶ谷第2の解説

代表・春日秀典
ダイアパレス幡ヶ谷第2のレビュー
物件画像
ダイアパレス幡ヶ谷第二は、京王線「笹塚」駅から徒歩5分、中野通りに面しています。
大手ゼネコンの奥村組による信頼性の高い施工がなされています。また、管理面も大手管理会社が担当しており、長期的な安心感があります。
徒歩2分には、コンビニ「ローソン 渋谷笹塚二丁目店」があり、徒歩7分にスーパー「ライフ幡ケ谷店」も利用できます。
維持・管理の体制
東急コミュニティーの全部委託(日勤)管理。
施設・設備
- バイク置場 : 要確認
- 駐輪場 : 要確認
- エレベータ : あり
- 宅配ボックス : 要確認
- オートロック : 要確認
- TVドアフォン : 要確認
- その他施設 : 要確認
マンションルール
- ペットの可否 : 不可
- 事務所の可否 : 要確認
- 楽器の可否 : 要確認
災害・耐震
1985/03築で、 総戸数82戸の 鉄骨鉄筋コンクリート9階建て。
2026年4月の時点で 築 41年 1か月となります。1981年6月以降の建築確認により新耐震です。高い安全性が期待できます。
洪水により予想される浸水深さは0.5 ~ 3.0mです。「液状化の可能性がある」とされています。
洪水や高潮の浸水想定図
物件概要
| 所在地 |
東京都渋谷区幡ヶ谷2丁目32-3
|
||
|---|---|---|---|
| 交通 |
京王線 笹塚駅 徒歩5分 京王線 幡ヶ谷駅 徒歩8分 |
||
| 築年 | 1985/03築 | ||
| 規模・構造 | 鉄骨鉄筋コンクリート 9階建て 総戸数82戸 | ||
| 新築時売主 | ダイア建設株式会社 | ||
| 施工 | 株式会社奥村組 | ||
| 土地権利 | 所有権 | ||
| 用途地域 | 準工業 | ||
| 管理形態 | 全部委託 日勤 | ||
| 管理会社 | 東急コミュニティー | ||
| 管理費単価 | 504.1474654 | ||
相場・価格履歴
過去に当社サイトが公開情報から収集したリノベーションマンションの売出履歴です。 また、それから想定できる「個人売り物件の予想価格」「不動産業者による買取価格」をシミュレーションしました。 売却相談も歓迎。
| 時期 | フロア | 面積 | リノベ物件 相場 (履歴・万円/㎡) |
通常状態の 相場 (想定目安・万円/㎡) |
買取の相場 (想定目安・万円/㎡) |
備考 |
|---|---|---|---|---|---|---|
| 2026/1 | 8階 | 約47㎡ | @132.91 | @121.5 | @87.7 | |
| 2025/7 | 8階 | 約47㎡ | @137.14 | @125.7 | @90.9 | |
| 2024/10 | 2階 | 約46㎡ | @108.03 | @96.5 | @69 | |
| 2024/9 | 2階 | 約46㎡ | @114.53 | @103 | @73.9 | |
| 2024/7 | 2階 | 約46㎡ | @118.87 | @107.3 | @77.1 | |
| 2022/11 | 2階 | 約40㎡ | @109.26 | @96.8 | @69 | |
| 2022/9 | 2階 | 約40㎡ | @111.75 | @99.3 | @70.9 | |
| 2022/8 | 2階 | 約40㎡ | @114.23 | @101.8 | @72.7 |
出典:当社サイト
過去の掲載物件
こちらの事例物件は成約となりましたが、当社ではほかにも仲介手数料もしくは半額で物件を紹介・お取り扱いしております。
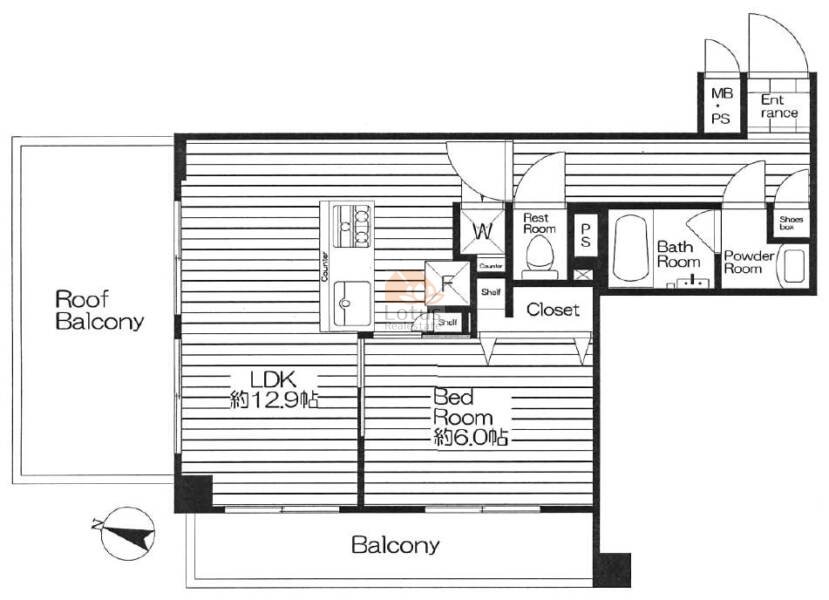
過去掲載物件 / 2階 / 46.1m²
仲介料手数料無料で取扱していました
- 所在階
- 2階
- 間取り
- 1LDK
- 専有面積
- 46.1㎡
- バルコニー
- 19.98㎡
- 管理費
- 13600円
- 修繕積立金
- 9580円
・「ダイアパレス幡ヶ谷第二」は2面バルコニー付き角部屋です。
・内装はリノベーションです。

過去掲載物件 / 2階 / 40.26m²
仲介料手数料無料で取扱していました
- 所在階
- 2階
- 間取り
- 2LDK
- 専有面積
- 40.26㎡
- バルコニー
- 6.36㎡
- 管理費
- 12000円
- 修繕積立金
- 8390円
・「ダイアパレス幡ケ谷第2」は駅徒歩5分・角部屋・新耐震基準です。
・内装はリノベーションです。

地図、周辺環境
渋谷区幡ヶ谷2丁目32-3
学校区
小学校:笹塚小学校(5分)
中学校:笹塚中学校(7分)
Convenience Store
- セブンイレブン 笹塚2丁目10号通り店 5分
- セブンイレブン 渋谷笹塚駅北店 5分
- ファミリーマート 渋谷笹塚一丁目店 4分
- ローソン 笹塚テラス店 5分
- セブンイレブン 笹塚店 5分
SuperMarket,etc
- ダイエー幡ヶ谷店 7分
- 株式会社ライフコーポレーション 幡ヶ谷店 6分
- サンディ 幡ヶ谷店 2分
- 株式会社グルメシティ関東幡ケ谷店 7分
- ライフ 幡ヶ谷店 6分
Medical
Kindergarten
- まなびの森保育園幡ヶ谷 5分
- 笹塚保育園 6分
- 谷区立幡ケ谷第三保育園 3分
Bank
- 三井住友銀行 幡ヶ谷支店 6分
- 三井住友銀行笹塚支店 1分
- 三菱UFJ銀行笹塚支店 4分
- きらぼし銀行 笹塚支店 6分
- みずほ銀行 笹塚支店 6分
Parks
- 幡ヶ谷第一公園 2分
- 玉川上水旧水路 幡ヶ谷緑道 5分
- 幡ヶ谷第二公園 5分
徒歩2分に「サンディ 幡ヶ谷店」があります。
徒歩6分に「ライフ幡ヶ谷店」があります。
電話:03-5809-1630
営業時間:9:30~20:00/水曜定休
よくある仲介手数料無料・半額Q&A
仲介手数料は無料とかいって、超怪しいんですが?
仲介手数料無料にできるわけは、売主さんから手数料をいただいているからです。リノベマンションなどの物件は広告費に相当する部分を仲介手数料として支払ってくれます。それでも23区ならかなりの高額ですので経営も大丈夫です。
仲介手数料無料のデメリットはありますか?
仲介手数料無料のデメリットと言われることは、話のすり替えだけで、実際には低レベルな手数料有料でも起こりえることです。ただし売却で仲介手数料無料をやるとデメリットが生じることもあります。
仲介手数料無料なんて大したことない不動産屋ですよね?
大きな会社ではないのはその通りですが、大したことない会社かと言われれば、ちがいます。ウェブに大量の露出をして、少々なら業界でも認識された会社です。今このページを見ていただいているのが何よりの証拠。押し売りせず、丁寧に寄り添うのがスタイルです。知識と経験を活かし、表面的な情報だけでなく、見えにくいリスクや将来性まで、あらゆる方向から包み隠さず情報をお伝えしています。ご期待ください。
仲介手数料は無料といっても、他にお金がかかるのではないですか?
ローン利用の場合、当社では調査事務手数料を33000円を頂いております※。これは不動産の調査に利用します。マンションの場合、積立金の残高の最新情報などは、管理会社に対する調査費用がかかり、これに使います。念ため申し上げますと、登記関連費用、銀行費用、税金、火災保険などの諸費用の負担がございますが、これらは外部のものなので、どの仲介業者でも差はありません。
その他「仲介手数料無料・半額のご質問と詳しい説明は以下のリンクからご覧いただけます。
仲介手数料無料・半額のよくあるご質問更新日:
近隣・沿線・類似の物件
沿線の販売中物件
秀和幡ヶ谷レジデンス 4180万円 9階 1
ザ・グランツ代々木参宮橋 13980万円 5階 2
キャニオングランデ桜上水 4499万円 6階 1
芦花公園ハイツ 6990万円 3階 3
芦花公園プレスティージュ 14177万円 6階 4
シャルマンコーポ第2芦花公園 5980万円 1階 3
ガーデンヴィラ芦花公園 10480万円 5階 3
ライオンズマンション幡ヶ谷 6490万円 1階 2
パールハイツ笹塚 6799万円 7階 3
八幡山ビューグリーン 7499万円 7階 3
ライオンズマンション幡ヶ谷 6190万円 6階 1
マンション和泉苑 3280万円 4階 1
ライオンズマンション幡ヶ谷 8190万円 1階 1
エスポワール松原 7798万円 6階 2
サーラ・コモド八幡山ヴェローナ 5399万円 4階 1
幡ヶ谷と同じ町内のマンションを調べよう
幡ヶ谷のマンションカタログの詳細はこちらです。
- ライオンズマンション幡ヶ谷
- ライオンズシティ幡ヶ谷弐番館
- リッシェル幡ヶ谷
- イニシアクラウド渋谷笹塚
- 幡ヶ谷ハイムグランシス
- ガーデンホーム幡ヶ谷
- 京王幡ヶ谷マンション
- ビオライフハウス
- フィールT幡ヶ谷
- グランドメゾン幡ヶ谷
- ロムルスコート幡ヶ谷
- コーポラス幡ヶ谷
- パラスト幡ヶ谷
- レジデンシャルスター幡ヶ谷
- キャッスルマンション幡ヶ谷
- シャンブル幡ヶ谷
- 秀和幡ヶ谷レジデンス
- 幡ヶ谷ハウス
- 協和マンション
- ダイアパレス高橋
- パールハイツ幡ヶ谷
- アルム幡ヶ谷
- ライベストコート幡ヶ谷
- 幡ヶ谷YMビル
- ライオンズヴィアーレ幡ヶ谷
- 光シャンブル笹塚
- シャトレー幡ヶ谷
- パークノヴァ幡ヶ谷
- 幡ヶ谷ゴールデンマンション
- 幡ヶ谷コーエイマンション
- ライオンズガーデン幡ヶ谷
区内の他地域のマンションを調べよう
区内の他の地域の物件も手数料割引にてご紹介できます。
- 渋谷区
- 上原
- 鶯谷町
- 宇田川町
- 恵比寿
- 恵比寿西
- 恵比寿南
- 神山町
- 桜丘町
- 笹塚
- 渋谷
- 松濤
- 神泉町
- 神宮前
- 神南
- 千駄ヶ谷
- 代官山町
- 富ヶ谷
- 道玄坂
- 南平台町
- 西原
- 鉢山町
- 初台
- 東
- 広尾
- 円山町
- 元代々木町
- 代々木
- 代々木神園町
- 本町
- 猿楽町
- 大山町
幡ヶ谷で似たような特徴のマンションを確認しよう
担当者

私が担当します:春日秀典
新築・中古を問わず、分譲マンションや戸建ての販売・開発に20年以上携わってきました。専門知識が欠かせない不動産の世界だからこそ、宅地建物取引士や公認不動産コンサルティングマスターなどの資格を活かして、日々の業務に取り組んでいます。
当社のサイトでは、物件の魅力はもちろん、将来的な資産価値や注意点まで率直にお伝えしています。「納得して取引できた」と思えるよう、判断材料をご提供しています。
なお、当サイトに掲載している情報は、すべて私自身が独自に執筆したものです。現場の肌感や最新動向も含め、信頼できる情報を目指しています。
不動産購入はそう何度もないご決断です。疑問や不安があれば、お気軽にご相談ください。納得感を持ってお取引いただけるよう、サポートいたします。