レーベン北千住エアクロスタワー[仲介手数料無料]

代表・春日秀典
2駅6路線利用可能で、通勤・通学に便利。長期修繕計画もあります。築12年0か月の新耐震で、好立地の中規模物件です。
仲介手数料無料・半額・割引ならば2~3か月分の月収の節約も可能!
ロータス不動産の仲介手数料無料とは、売主様より手数料をいただくことにより、買主様の手数料を免除するというビジネスモデル。新規リノベ、新築戸建てのような商品物件に適用できます。手数料無料にできない物件は、原則として手数料半額(「3%+6万+税」の半分)で対応しています。
もちろん、ロータス不動産は手数料の安さだけがウリの会社ではなく、知識と経験を活かし、いいづらい情報、リスクも事前に説明し、お客様の購入・売却をサポートしています。そのことは実績やブログなどで確認いただけるでしょう。
レーベン北千住エアクロスタワーの解説

代表・春日秀典
レーベン北千住エアクロスタワーのレビュー
レーベン北千住エアクロスタワーは、京成本線「千住大橋」駅から徒歩9分、千代田線他「北千住」駅からは徒歩13分、墨堤通りに面した立地です。
エントランスにはオートロックが完備されており、宅配ボックスが設置されており、便利です。ペットの飼育も可能です。
徒歩1分にスーパー「まいばすけっと千住緑町3丁目」があり便利です。
維持・管理の体制
株式会社レーベンコミュニティの全部委託(日勤)管理。
維持・修繕の対応状況
長期修繕計画: あり
修繕積立金の額: 確認中です。分析は残高を確認してお伝えいたします。
過去の修繕履歴:
過去の履歴は確認中です。施設・設備
- 駐車場 : あり(空き状況は要確認)13,000~17,000円/月
- バイク置場 : あり
- 駐輪場 : あり
- エレベータ : あり
- 宅配ボックス : あり
- オートロック : あり
- TVドアフォン : あり
- その他施設 : 要確認
マンションルール
- ペットの可否 : 可
- 事務所の可否 : 不可
- 楽器の可否 : 可
災害・耐震
2014/02築で、 総戸数53戸の 鉄筋コンクリート15階建て。
2026年2月の時点で 築 12年 0か月となります。1981年6月以降の建築確認により新耐震です。高い安全性が期待できます。
洪水により予想される浸水深さは3.0 ~ 5.0mです。「液状化の可能性がある」とされています。
浸水予想図

相場・価格履歴
過去に当社サイトが公開情報から収集したリノベーションマンションの売出履歴です。 また、それから想定できる「個人売り物件の予想価格」「不動産業者による買取価格」をシミュレーションしました。 売却相談も歓迎。
| 時期 | フロア | 面積 | リノベ物件 相場 (履歴・万円/㎡) |
通常状態の 相場 (想定目安・万円/㎡) |
買取の相場 (想定目安・万円/㎡) |
備考 |
|---|---|---|---|---|---|---|
| 2024/12 | 2階 | 約71㎡ | @75.68 | @66.3 | @47.2 | |
| 2024/11 | 2階 | 約71㎡ | @78.48 | @69.1 | @49.3 | |
| 2024/11 | 1階 | 約54㎡ | @64.93 | @54.3 | @37.9 | |
| 2024/8 | 2階 | 約71㎡ | @81.29 | @71.9 | @51.4 |
出典:当社サイト
過去の掲載物件
こちらの事例物件は成約となりましたが、当社ではほかにも仲介手数料もしくは半額で物件を紹介・お取り扱いしております。
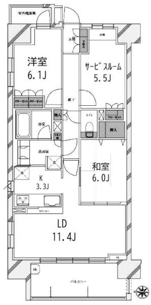
過去掲載物件 / 2階 / 71.34m²
仲介料手数料無料で取扱していました
- 所在階
- 2階
- 間取り
- 2SLDK
- 専有面積
- 71.34㎡
- バルコニー
- 9.18㎡
- 管理費
- 15300円
- 修繕積立金
- 12200円
・「レーベン北千住エアクロスタワー」はキッチンディスポーザー、LD部分に床暖付きの北西角部屋です。
・内装は一部リフォームです。

物件概要
| 所在地 |
東京都足立区千住宮元町20-9
|
||
|---|---|---|---|
| 交通 |
京成本線 千住大橋駅 徒歩9分 JR常磐線 北千住駅 徒歩15分 |
||
| 築年 | 2014/02築 | ||
| 規模・構造 | 鉄筋コンクリート 15階建て 総戸数53戸 | ||
| 新築時売主 | 株式会社タカラレーベン | ||
| 施工 | 川田工業株式会社 | ||
| 土地権利 | 所有権 | ||
| 用途地域 | 準工業 | ||
| 管理形態 | 全部委託 日勤 | ||
| 管理会社 | 株式会社レーベンコミュニティ | ||
| 管理費単価 | 384.60 | ||
地図、周辺環境
足立区千住宮元町20-9
学校区
小学校:足立区立千寿桜小学校(4分)
中学校:足立区立千寿青葉中学校(3分)
コンビニなど
- ローソン 千住中居町店 5分
- ファミリーマート 千住河原町墨堤通り店 5分
スーパー・買い物
- まいばすけっと 千住大橋駅北店 7分
- おっ母さん 北千住店 6分
- まいばすけっと 千住中居町店 6分
Medical
- 船田歯科医院 3分
- 高木歯科医院 3分
- 布川医院 3分
- 江口医院 5分
幼稚園
金融機関・銀行
- 足立成和信用金庫本店 8分
- 三菱UFJ銀行千住支店 8分
- きらぼし銀行 千住支店 7分
- 千葉銀行 千住支店 7分
- 東日本銀行 千住支店 6分
公園・公共施設
- 千住スポーツ公園 4分
- 千住桜木町公園 4分
- 足立区立千住スポーツ公園 4分
電話:03-5809-1630
営業時間:9:30~20:00/水曜定休
よくある仲介手数料無料・半額Q&A
仲介手数料は無料とかいって、超怪しいんですが?
仲介手数料無料にできるわけは、売主さんから手数料をいただいているからです。リノベマンション・新築戸建て・分譲宅地など、商品タイプの物件は広告費に相当する部分を仲介手数料として正当な報酬として支払ってくれます。手数料両手の業者と比べれば半分ですが、それでも23区ならかなりの高額になりますので大丈夫です。
仲介手数料無料のデメリットはありますか?
仲介手数料無料のデメリットと言われることは、低レベル業者だと発生する可能性がある問題を仲介手数料無料になすりつけているだけです。話をすり替えているだけで、実際には手数料有料でも起こりえることです。ただし売却で仲介手数料無料をやるとデメリットが生じることもあります。
仲介手数料無料なんて大したことない不動産屋ですよね?
大きな会社ではないのはその通りですが、大したことない会社かと言われれば、それはちがいます。ウェブに大量の露出をして、少々なら業界でも認識された会社です。今このページを見ていただいているのが何よりの証拠。当社は押し売りせず、丁寧に寄り添うのがロータス不動産のスタイルです。知識と経験を活かし、物件の良いところだけでなく、気になるところも、表面的な情報だけでなく、見えにくいリスクや将来性まで、あらゆる方向から包み隠さず情報をお伝えしています。ご期待ください。
仲介手数料は無料といっても、他にお金がかかるのではないですか?
ローン利用の場合、当社では調査事務手数料を33000円を頂いております※。これは不動産の調査に利用します。マンションの場合、積立金の残高の最新情報などは、管理会社に対する調査費用がかかり、これに使います。念ため申し上げますと、登記関連費用、銀行費用、税金、火災保険などの諸費用の負担がございますが、これらは外部のものなので、どの仲介業者でも差はありません。
その他「仲介手数料無料・半額のご質問と詳しい説明は以下のリンクからご覧いただけます。
詳しい情報を見る更新日:
近隣・沿線・類似の物件
沿線の販売中物件
白鳥スカイマンション 3290万円 7階 3
リヴラックスお花茶屋 4198万円 4階 2
アンビシャス青砥 5980万円 12階 3
ライオンズマンションお花茶屋第5 4198万円 3階 3
イーストヒル町屋 5790万円 12階 2
関屋ステーションハイツ 3180万円 7階 1
お花茶屋ローヤルコーポ 2198万円 5階 1
ダイアパレス町屋 2999万円 3階 1
同じ沿線のマンションを見てみよう
同じ沿線の他の駅にもマンションがあります。
同じで駅でも特に徒歩分数が近い物件を選びました。
千住宮元町と同じ町内のマンションを調べよう
千住宮元町のマンションカタログの詳細はこちらです。
区内の他地域のマンションを調べよう
区内の他の地域の物件も手数料割引にてご紹介できます。
- 足立区
- 青井
- 足立
- 綾瀬
- 入谷町
- 梅島
- 梅田
- 扇
- 大谷田
- 興野
- 小台
- 加賀
- 加平
- 北加平町
- 栗原
- 弘道
- 江北
- 古千谷
- 佐野
- 皿沼
- 鹿浜
- 島根
- 新田
- 神明
- 神明南
- 関原
- 千住
- 千住曙町
- 千住旭町
- 千住大川町
- 千住河原町
- 千住寿町
- 千住関屋町
- 千住龍田町
- 千住中居町
- 千住仲町
- 千住橋戸町
- 千住元町
- 千住柳町
- 千住東
- 千住桜木
- 千住緑町
- 竹の塚
- 辰沼
- 中央本町
- 椿
- 東和
- 舎人
- 舎人町
- 中川
- 西綾瀬
- 西新井
- 西新井栄町
- 西新井本町
- 西伊興町
- 西加平
- 西保木間
- 花畑
- 東綾瀬
- 東保木間
- 東六月町
- 一ツ家
- 日ノ出町
- 保木間
- 保塚町
- 堀之内
- 南花畑
- 宮城
- 六木
- 本木
- 本木北町
- 本木西町
- 本木東町
- 本木南町
- 谷在家
- 柳原
- 六月
- 六町
- 伊興
- 西伊興
- 西竹の塚
- 東伊興
- 古千谷本町
- 舎人公園
- 伊興本町
- 谷中
- 平野
- 入谷
千住宮元町で似たような特徴のマンションを確認しよう
担当者

私が担当します:春日秀典
新築・中古を問わず、分譲マンションや戸建ての販売・開発に20年以上携わってきました。専門知識が欠かせない不動産の世界だからこそ、宅地建物取引士や公認不動産コンサルティングマスターなどの資格を活かして、日々の業務に取り組んでいます。
当社のサイトでは、物件の魅力はもちろん、将来的な資産価値や注意点まで率直にお伝えしています。「納得して取引できた」と思えるよう、判断材料をご提供しています。
なお、当サイトに掲載している情報は、すべて私自身が独自に執筆したものです。現場の肌感や最新動向も含め、信頼できる情報を目指しています。
不動産購入はそう何度もないご決断です。疑問や不安があれば、お気軽にご相談ください。納得感を持ってお取引いただけるよう、サポートいたします。
