アーリアシティ曳舟2の売買情報[仲介手数料無料]

代表・春日秀典
東京スカイツリーまで徒歩圏内なので、観光やレジャーも楽しめる。築10年10か月の新耐震で、賑やかな立地の小規模物件です。
23区の中古マンション売買を扱う会社です
現在、当社サイトには売出物件の掲載はありませんが、不動産サイトで公開されているアーリアシティ曳舟2が仲介手数料が無料・半額・割引になる場合があります。入力1~2分でメールで確認できます(なお賃貸の扱いはありません)
仲介手数料無料・半額・割引って?
売主から手数料をもらえるので買主は免除。これが手数料無料のカラクリ。それに該当しない物件は手数料半額です。もちろん、手数料の安さだけがウリではなく、知識と経験を活かし、いいづらい情報、リスクも事前に説明し、お客様の購入・売却をサポートしています。そのことは実績やブログなどで確認いただけるでしょう。

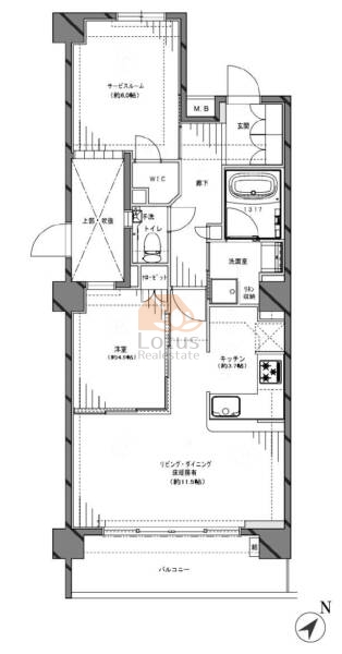
アーリアシティ曳舟2の解説

代表・春日秀典
アーリアシティ曳舟2のレビュー
物件画像
アーリアシティ曳舟Ⅱは、東武スカイツリーライン「曳舟」駅から徒歩9分、東京メトロ半蔵門線・都営浅草線・京成押上線「押上」駅からは徒歩13分でアクセス可能。
フラット35適合物件であり、住宅ローン控除を活用できる点も大きな魅力です。安心のオートロック完備です。宅配ボックスも設置されており便利です。ペットの飼育も可能です。
徒歩2分に名店「向島 言問団子」があり、気軽に立ち寄れる魅力的なスポットです。徒歩3分にコンビニ「セブン-イレブン 墨田向島5丁目店」があり、徒歩7分にスーパー「コモディイイダ東向島店」もあります。
維持・管理の体制
株式会社メイプルリビングサービスの全部委託(巡回)管理。
施設・設備
- 駐車場 : あり(空き状況は要確認)18,000円/月
- バイク置場 : あり
- 駐輪場 : あり
- エレベータ : あり
- 宅配ボックス : あり
- オートロック : あり
- TVドアフォン : あり
- その他施設 : 要確認
マンションルール
- ペットの可否 : 可
- 事務所の可否 : 要確認
- 楽器の可否 : 要確認
ペット可の内容:1住戸3匹まで
災害・耐震
2015/06築で、 総戸数24 戸の 小規模な鉄筋コンクリート7 階建て。
2026年4月の時点で 築 11年 10か月となります。1981年6月以降の建築確認により新耐震です。高い安全性が期待できます。
洪水により予想される浸水深さは0.5 ~ 3.0mです。高潮により予想される浸水深さは3.0 ~ 5.0mです。「液状化の可能性がある」とされています。
浸水予想図

物件概要
| 所在地 |
東京都墨田区向島5丁目17-13
|
||
|---|---|---|---|
| 交通 |
都営浅草線 押上駅 徒歩12分 東武スカイツリーライン 曳舟駅 徒歩9分 |
||
| 築年 | 2015/06築 | ||
| 規模・構造 | 鉄筋コンクリート 7 階建て 総戸数24 戸 | ||
| 新築時売主 | エリアライフ株式会社 | ||
| 施工 | 多田建設株式会社 第一事業本部 | ||
| 土地権利 | 所有権 | ||
| 用途地域 | 商業 | ||
| 管理形態 | 全部委託 巡回 | ||
| 管理会社 | 株式会社メイプルリビングサービス | ||
| 管理費単価 | 283 | ||
相場・価格履歴
過去に当社サイトが公開情報から収集したリノベーションマンションの売出履歴です。 また、それから想定できる「個人売り物件の予想価格」「不動産業者による買取価格」をシミュレーションしました。 売却相談も歓迎。
| 時期 | フロア | 面積 | リノベ物件 相場 (履歴・万円/㎡) |
通常状態の 相場 (想定目安・万円/㎡) |
買取の相場 (想定目安・万円/㎡) |
備考 |
|---|---|---|---|---|---|---|
| 2025/9 | 4階 | 約58㎡ | @110.85 | @100.6 | @72.5 | |
| 2025/5 | 4階 | 約56㎡ | @104 | @93.5 | @67.2 | |
| 2024/11 | 1階 | 約58㎡ | @93.52 | @83.2 | @59.6 | |
| 2024/10 | 1階 | 約58㎡ | @96.93 | @86.7 | @62.1 | |
| 2024/8 | 1階 | 約58㎡ | @96.93 | @86.7 | @62.1 |
出典:当社サイト
過去の掲載物件
こちらの事例物件は成約となりましたが、当社ではほかにも仲介手数料もしくは半額で物件を紹介・お取り扱いしております。
過去掲載物件 / 1階 / 58.6m²
仲介料手数料無料で取扱していました
- 所在階
- 1階
- 間取り
- 1SLDK
- 専有面積
- 58.6㎡
- バルコニー
- 8.4㎡
- 管理費
- 13500円
- 修繕積立金
- 3100円
・「アーリアシティ曳舟Ⅱ」はリビングダイニングに床暖付きです。
・内装はリフォームです。

地図、周辺環境
墨田区向島5丁目17-13
学校区
小学校:墨田区立言問小学校(2分)
中学校:墨田区立墨田中学校(6分)
電話:03-5809-1630
営業時間:9:30~20:00/水曜定休
よくある仲介手数料無料・半額Q&A
仲介手数料は無料とかいって、超怪しいんですが?
仲介手数料無料にできるわけは、売主さんから手数料をいただいているからです。リノベマンションなどの物件は広告費に相当する部分を仲介手数料として支払ってくれます。それでも23区ならかなりの高額ですので経営も大丈夫です。
仲介手数料無料のデメリットはありますか?
仲介手数料無料のデメリットと言われることは、話のすり替えだけで、実際には低レベルな手数料有料でも起こりえることです。ただし売却で仲介手数料無料をやるとデメリットが生じることもあります。
仲介手数料無料なんて大したことない不動産屋ですよね?
大きな会社ではないのはその通りですが、大したことない会社かと言われれば、ちがいます。ウェブに大量の露出をして、少々なら業界でも認識された会社です。今このページを見ていただいているのが何よりの証拠。押し売りせず、丁寧に寄り添うのがスタイルです。知識と経験を活かし、表面的な情報だけでなく、見えにくいリスクや将来性まで、あらゆる方向から包み隠さず情報をお伝えしています。ご期待ください。
仲介手数料は無料といっても、他にお金がかかるのではないですか?
ローン利用の場合、当社では調査事務手数料を33000円を頂いております※。これは不動産の調査に利用します。マンションの場合、積立金の残高の最新情報などは、管理会社に対する調査費用がかかり、これに使います。念ため申し上げますと、登記関連費用、銀行費用、税金、火災保険などの諸費用の負担がございますが、これらは外部のものなので、どの仲介業者でも差はありません。
その他「仲介手数料無料・半額のご質問と詳しい説明は以下のリンクからご覧いただけます。
仲介手数料無料・半額のよくあるご質問更新日:
近隣・沿線・類似の物件
沿線の販売中物件
シャリエ本所吾妻橋 8690万円 9階 2
シンエイマンション蔵前 4198万円 9階 1
五反田ダイヤモンドマンション 4699万円 5階 1
クレストフォルム戸越 11900万円 7階 2
ボナール戸越 10800万円 4階 3
南馬込スカイハイツ 5899万円 4階 3
フィース蔵前 7699万円 10階 1
シャルムコート東日本橋 10499万円 7階 2
フェニックス浅草リバーサイド 6399万円 6階 1
秀和高輪レジデンス 6499万円 2階 1
セザール本所吾妻橋 7699万円 4階 3
向島と同じ町内のマンションを調べよう
向島のマンションカタログの詳細はこちらです。
- イニシア墨田押上
- ミオカステーロ押上シェーナ
- スカイコートパレス押上3
- パークハウス向島言問
- 隅田川パークホームズ
- ヴォーガコルテ東京スカイツリー
- 藤和シティコープ向島
- ライジングプレイス向島
- シティハウス業平橋ステーションコート
- ビラ喜代川
- パークノヴァ向島
- ベルメゾン向島
- ベルメゾン向島イースト
- 朝日言問マンション
- ヴェラハイツ隅田公園
- ライオンズマンション言問
- ハピーハイツ向島
- レアライズ押上2
- バームハイツ隅田公園
- スカイコート隅田公園
- メイゾン向島
- トーア向島マンション
- ダイアパレス隅田公園
- コスモ向島シティフォルム
- パークホームズ隅田桜橋
- コスモ向島
- コスモ向島グランコート
- メゾンアルカディア
- アルテシモトランザ
- アーデル向島アヴァンセア
- 向島パークハイツ
- ハーモニーレジデンス東京イーストコア#002
- ライオンズマンション隅田公園
- キャピタルビュー向島第2
- ミオカステーロ押上
- 向島パークハイツ第2
- ファミール向島桜橋
- エクレール向島
- 向島ハイツ
- 朝日向島マンション
- コスモ隅田アクティ
- ライオンズ墨田押上
- 向島パークハイツ第3
- グリーンパーク新向島
- ライオンズマンション向島第2
- サンモール向島
- グラーサ向島隅田公園
- オリンポス隅田公園弐号館
- グリーンハイツ隅田公園
- 東急ドエルアルス向島
- ハイホーム向島
- セレナハイム隅田公園ビューステージ
- 日東コーポ言問
区内の他地域のマンションを調べよう
区内の他の地域の物件も手数料割引にてご紹介できます。
向島で似たような特徴のマンションを確認しよう
担当者

私が担当します:春日秀典
新築・中古を問わず、分譲マンションや戸建ての販売・開発に20年以上携わってきました。専門知識が欠かせない不動産の世界だからこそ、宅地建物取引士や公認不動産コンサルティングマスターなどの資格を活かして、日々の業務に取り組んでいます。
当社のサイトでは、物件の魅力はもちろん、将来的な資産価値や注意点まで率直にお伝えしています。「納得して取引できた」と思えるよう、判断材料をご提供しています。
なお、当サイトに掲載している情報は、すべて私自身が独自に執筆したものです。現場の肌感や最新動向も含め、信頼できる情報を目指しています。
不動産購入はそう何度もないご決断です。疑問や不安があれば、お気軽にご相談ください。納得感を持ってお取引いただけるよう、サポートいたします。