秀和第4東陽町レジデンス[仲介手数料無料]

代表・春日秀典
駅徒歩6分。
2~3か月分の月収の節約。仲介手数料無料・半額・割引って何ですか??
ロータス不動産の仲介手数料無料とは、売主様より手数料をいただくことにより、買主様の手数料を免除するというビジネスモデル。新規リノベ、新築戸建てのような商品物件に適用できます。手数料無料にできない物件は、原則として手数料半額(「3%+6万+税」の半分)で対応しています。
もちろん、ロータス不動産は手数料の安さだけがウリの会社ではなく、知識と経験を活かし、いいづらい情報、リスクも事前に説明し、お客様の購入・売却をサポートしています。そのことは実績やブログなどで確認いただけるでしょう。
秀和第4東陽町レジデンスの解説

代表・春日秀典
好立地の大規模物件です。
秀和第4東陽町レジデンスは、東西線「東陽町」駅から徒歩8分の立地です。
総戸数189戸の大規模なビッグコミュニティで、夜間はオートロックが備わりますし、住み込みの管理体制で安心です。
周辺には豊富な生活施設があり、徒歩3分には「江東区役所」があり、コンビニ「セブン-イレブン 江東区役所前店」もあります。スーパーは、徒歩6分に「サミットストア イースト21店」があります。徒歩7分には「木場公園」が、もあります。
維持・管理の体制
レジデンスビルディングマネジメント(株)の全部委託(常駐)管理。
維持・修繕の対応状況
長期修繕計画: なし
修繕積立金の額: ¥54,489,151(2022-09-30時点)、戸あたり¥288,302円です。残高はやや少なめです。
過去の修繕履歴:
- 駐車場外灯増設工事・階段室窓改修工事・内階段床シート貼替工事 令和3年10月~令和4年9月実施
- 共用廊下塗装工事・管理室改修工事・共用部LED化工事・非常階段扉改修工事 令和2年10月~令和3年9月実施
- 高架水槽交換工事・PS内水道メーター廻り改修工事 令和1年10月~令和2年9月実施
- 共用部電盤及びブレーカー交換・手摺交換工事 平成30年10月~令和1年9月実施
- 1階エントランス改修工事 平成29年10月~平成30年9月実施
- 鉄骨階段塗装工事・1階外溝策塗装工事 平成28年10月~平成29年9月実施
- 窓サッシ交換工事・非常照明交換工事 平成27年10月~平成28年9月実施
- 屋上共用排水管補修工事・窓サッシ交換工事 平成26年10月~平成27年9月実施
- 廊下壁補修工事・屋上他防水工事 平成25年10月~平成26年9月実施
- 防犯カメラ交換・給水管メーター廻り交換工事・系統バルブ設置工事 平成24年10月~平成25年9月実施
- 駐輪場改修工事 平成23年10月~平成24年9月実施
- 屋上物干し補修工事他 平成22年10月~平成23年9月実施
- 住戸玄関ドア交換工事・テレビ共視聴設備改修工事 平成29年10月~平成21年9月実施
- 集会室・ごみ置き場改修工事・エントランス外部他補修工事・経年埋設ガス管交換 平成19年10月~平成20年9月実施
- 雑排水管部分改修工事 平成18年10月~平成19年9月実施
- 埋没雑排水管部分更新工事 平成17年10月~平成18年9月実施
- エレベーター設置工事他 平成16年10月~平成17年9月実施
- 外壁等大規模修繕工事 平成13年10月~平成15年9月実施
施設・設備
- 駐車場 : あり(空き状況は要確認)16,000円/月
- バイク置場 : あり
- 駐輪場 : あり
- エレベータ : あり
- 宅配ボックス :
- オートロック :
- TVドアフォン :
- その他施設 : 要確認
マンションルール
- ペットの可否 : 不可
- 事務所の可否 : 不可
- 楽器の可否 :
災害・耐震
1974/10築で、 総戸数189戸の 大規模な鉄骨鉄筋コンクリート10階建て。
2025年12月の時点で 築 51年 2か月となります。1981年6月以前の建築確認により旧耐震です。
洪水により予想される浸水深さは0.5 ~ 3.0mです。高潮により予想される浸水深さは3.0 ~ 5.0mです。「液状化の可能性がある」とされています。
洪水や高潮の浸水想定図
相場・価格履歴
過去に当社サイトが公開情報から収集したリノベーションマンションの売出履歴です。 また、それから想定できる「個人売り物件の予想価格」「不動産業者による買取価格」をシミュレーションしました。 売却相談も歓迎。
| 時期 | フロア | 面積 | リノベ物件 相場 (履歴・万円/㎡) |
通常状態の 相場 (想定目安・万円/㎡) |
買取の相場 (想定目安・万円/㎡) |
備考 |
|---|---|---|---|---|---|---|
| 2025/3 | 1階 | 約40㎡ | @62.25 | @49.8 | @33.9 | |
| 2025/3 | 1階 | 約40㎡ | @69.75 | @57.3 | @39.5 | |
| 2025/2 | 1階 | 約40㎡ | @72.25 | @59.8 | @41.4 | |
| 2025/2 | 1階 | 約40㎡ | @71 | @58.5 | @40.4 | |
| 2024/11 | 1階 | 約40㎡ | @73.75 | @61.3 | @42.5 | |
| 2024/9 | 3階 | 約40㎡ | @79.75 | @67.3 | @47 | |
| 2024/8 | 3階 | 約40㎡ | @79.75 | @67.3 | @47 | |
| 2024/8 | 3階 | 約40㎡ | @79.75 | @67.3 | @47 | |
| 2024/7 | 3階 | 約45㎡ | @79.56 | @67.8 | @47.6 | |
| 2024/7 | 3階 | 約40㎡ | @62.25 | @49.8 | @33.9 | |
| 2024/7 | 1階 | 約40㎡ | @82 | @69.5 | @48.6 | |
| 2024/5 | 3階 | 約40㎡ | @72 | @59.5 | @41.2 | |
| 2024/3 | 4階 | 約45㎡ | @68.87 | @57.1 | @39.7 | |
| 2024/3 | 3階 | 約40㎡ | @74.5 | @62 | @43 | |
| 2024/2 | 3階 | 約40㎡ | @74.75 | @62.3 | @43.2 | |
| 2024/2 | 3階 | 約40㎡ | @79.5 | @67 | @46.8 | |
| 2023/11 | 4階 | 約45㎡ | @75.53 | @63.8 | @44.6 | |
| 2023/5 | 5階 | 約40㎡ | @72.45 | @60 | @41.5 | |
| 2023/2 | 5階 | 約40㎡ | @74.95 | @62.5 | @43.4 | |
| 2023/2 | 5階 | 約40㎡ | @77 | @64.5 | @44.9 | |
| 2022/8 | 7階 | 約40㎡ | @74.95 | @62.5 | @43.4 | |
| 2022/5 | 2階 | 約45㎡ | @72.89 | @61.2 | @42.7 | |
| 2022/4 | 2階 | 約45㎡ | @77.33 | @65.6 | @46 | |
| 2022/3 | 2階 | 約32㎡ | @58.75 | @46 | @30.8 | |
| 2022/3 | 5階 | 約50㎡ | @65.47 | @54.4 | @37.8 | |
| 2021/11 | 7階 | 約50㎡ | @63.96 | @52.9 | @36.7 |
出典:当社サイト
過去の掲載物件
こちらの事例物件は成約となりましたが、当社ではほかにも仲介手数料もしくは半額で物件を紹介・お取り扱いしております。
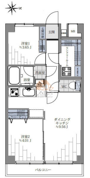
過去掲載物件 / 4階 / 45m²
仲介料手数料無料で取扱していました
- 所在階
- 4階
- 間取り
- 2LDK
- 専有面積
- 45㎡
- バルコニー
- 5㎡
- 管理費
- 8200円
- 修繕積立金
- 5400円
・「秀和第4東陽町レジデンス」は4階部分・東向き・ランドリールーム・食洗器付きキッチンが特徴です。
・内装はリノベーションです。

過去掲載物件 / 2階 / 45m²
仲介料手数料無料で取扱していました
- 所在階
- 2階
- 間取り
- 2LDK
- 専有面積
- 45㎡
- バルコニー
- 5㎡
- 管理費
- 8200円
- 修繕積立金
- 5400円
・「秀和第4東陽町レジデンス」はテレビモニター付きインターホン・ランドリールーム・浴室乾燥機・食洗器完備です。
・内装はリノベーションです。

物件概要
| 所在地 |
東京都江東区東陽5丁目30-6
|
||
|---|---|---|---|
| 交通 | 東西線 東陽町駅 徒歩8分 | ||
| 築年 | 1974/10築 | ||
| 規模・構造 | 鉄骨鉄筋コンクリート 10階建て 総戸数189戸 | ||
| 新築時売主 | 秀和 | ||
| 施工 | フジタ工業株式会社 | ||
| 土地権利 | 所有権 | ||
| 用途地域 | 準工業 | ||
| 管理形態 | 全部委託 常駐 | ||
| 管理会社 | レジデンスビルディングマネジメント(株) | ||
| 管理費単価 | |||
地図、周辺環境
江東区東陽5丁目30-6
学校区
小学校:江東区立東陽小学校(5分)
中学校:江東区立深川第四中学校(12分)
Convenience Store
- ファミリーマート 東陽六丁目店 4分
- ローソン 江東区役所前店 4分
- ファミリーマート 東京イースト21店 3分
- デイリーヤマザキ 東陽町店 2分
- セブンイレブン 江東千石1丁目店 5分
SuperMarket,etc
- まいばすけっと 東陽5丁目店 3分
- スーパータイヨー東陽町店 6分
- サミットストア イースト21店 3分
- 西友 東陽町店 5分
Medical
- 東京イースト21クリニック 3分
- 山本歯科医院 1分
- 小川歯科クリニック 2分
- エール矯正歯科クリニック 1分
Kindergarten
- キッズパティオ江東おひさま園 2分
- ピノキオ幼児舎東陽町園 5分
- 東陽保育園 7分
Bank
- 常陽銀行江東支店 2分
- 三菱UFJ銀行木場深川支店 6分
- 江東信用組合 洲崎支店 8分
- みずほ銀行 東陽町支店 6分
Parks
- 豊住公園 5分
電話:03-5809-1630
営業時間:9:30~20:00/水曜定休
よくある仲介手数料無料・半額Q&A
仲介手数料は無料とかいって、超怪しいんですが?
仲介手数料無料にできるわけは、売主さんから手数料をいただいているからです。リノベマンション・新築戸建て・分譲宅地など、商品タイプの物件は広告費に相当する部分を仲介手数料として正当な報酬として支払ってくれます。手数料両手の業者と比べれば半分ですが、それでも23区ならかなりの高額になりますので大丈夫です。
仲介手数料無料のデメリットはありますか?
仲介手数料無料のデメリットと言われることは、低レベル業者だと発生する可能性がある問題を仲介手数料無料になすりつけているだけです。話をすり替えているだけで、実際には手数料有料でも起こりえることです。ただし売却で仲介手数料無料をやるとデメリットが生じることもあります。
仲介手数料無料なんて大したことない不動産屋ですよね?
大きな会社ではないのはその通りですが、大したことない会社かと言われれば、それはちがいます。ウェブに大量の露出をして、少々なら業界でも認識された会社です。今このページを見ていただいているのが何よりの証拠。当社は押し売りせず、丁寧に寄り添うのがロータス不動産のスタイルです。知識と経験を活かし、物件の良いところだけでなく、気になるところも、表面的な情報だけでなく、見えにくいリスクや将来性まで、あらゆる方向から包み隠さず情報をお伝えしています。ご期待ください。
仲介手数料は無料といっても、他にお金がかかるのではないですか?
ローン利用の場合、当社では調査事務手数料を33000円を頂いております※。これは不動産の調査に利用します。マンションの場合、積立金の残高の最新情報などは、管理会社に対する調査費用がかかり、これに使います。念ため申し上げますと、登記関連費用、銀行費用、税金、火災保険などの諸費用の負担がございますが、これらは外部のものなので、どの仲介業者でも差はありません。
その他「仲介手数料無料・半額のご質問と詳しい説明は以下のリンクからご覧いただけます。
詳しい情報を見る更新日:
近隣・沿線・類似の物件
沿線の販売中物件
ツインシティ弐番館アルス東砂 3890万円 2階 3
パティオ西早稲田 4198万円 8階 1
パティオ西早稲田 4980万円 5階 1
プレミスト神楽坂 16300万円 4階 3
門前仲町サマリヤマンション 7299万円 10階 3
中葛西スカイハイツ 4980万円 2階 3
グリーンヒル西葛西1号棟 6999万円 3階 3
グリーンパーク東砂 4680万円 4階 3
同じで駅でも特に徒歩分数が近い物件を選びました。
東陽と同じ町内のマンションを調べよう
東陽のマンションカタログの詳細はこちらです。
- マンション東陽
- ジャパンハイツ東陽
- シェルゼ木場公園
- 山屋東陽ハイツ
- フリージャーマンション
- 藤和シティコープ東陽町2
- 東陽町高砂ウィーンハイツ
- デュオシティ木場公園
- ライベストコート東陽
- セザールアーバンデュオウエスト
- ニックハイム東陽町
- シティテラス東陽町
- ジャパンハイツニュー東陽
- エンゼルハイツ
- プラウド東陽町サウス
- 東陽町ダイヤモンドマンション
- ザパークハウス東陽町レジデンス
- ヴェレーナ木場公園
- シャリエ木場
- ナイスグランソレイユ東陽町
- 中銀東陽公園マンシオン
- 東陽六丁目ハイツ
- セザールアーバンデュオイースト
- ニックハイム東陽町第2
- トーカン東陽町マンション
- 東陽町スカイハイツ
- ニックアーバンハイム東陽町
- グランヒルズ東陽町
- パイロットハウス東陽町
- ストークマンション東陽町
- ロイヤルタワー木場公園
- メトロハイツ東陽
- セイワ東陽マンション
- 永信東陽ハイツ
- プロスペアー木場
- ニックハイム東陽町第6
- 三井東陽ハイツ
- 秀和東陽町レジデンス
- ローズハイム東陽町
- エンブレム木場
- 藤和シティホームズ東陽町
- ファミリータウン東陽
- ヴェラハイツ木場
- 秀和第3東陽町レジデンス
- ヴェルビュ東陽町
- 東陽町コーポラス
- 東陽サニーハイツ
- 秀和第2東陽町レジデンス
- 中銀第2木場マンシオン
- 東陽七丁目ハイツ
- 東陽町住宅
- サンプラハ東陽
- ライオンズシティ東陽町親水公園
- 東陽町ハイホーム
- グランアコール
- 東陽町グリーンハイツ
- プレジャーガーデン木場弐番館
- イトーピア東陽町マンション
- サニーハウス東陽町
- ライオンズマンション東陽町第2
区内の他地域のマンションを調べよう
区内の他の地域の物件も手数料割引にてご紹介できます。
- 江東区
- 有明
- 石島
- 海辺
- 永代
- 枝川
- 越中島
- 扇橋
- 大島
- 亀戸
- 北砂
- 木場
- 清澄
- 佐賀
- 猿江
- 塩浜
- 潮見
- 東雲
- 白河
- 新大橋
- 新木場
- 新砂
- 住吉
- 千田
- 高橋
- 辰巳
- 常盤
- 富岡
- 豊洲
- 東砂
- 平野
- 深川
- 福住
- 冬木
- 古石場
- 牡丹
- 南砂
- 三好
- 毛利
- 森下
- 門前仲町
- 夢の島
- 若洲
- 千石
東陽で似たような特徴のマンションを確認しよう
担当者

私が担当します:春日秀典
新築・中古を問わず、分譲マンションや戸建ての販売・開発に20年以上携わってきました。専門知識が欠かせない不動産の世界だからこそ、宅地建物取引士や公認不動産コンサルティングマスターなどの資格を活かして、日々の業務に取り組んでいます。
当社のサイトでは、物件の魅力はもちろん、将来的な資産価値や注意点まで率直にお伝えしています。「納得して取引できた」と思えるよう、判断材料をご提供しています。
なお、当サイトに掲載している情報は、すべて私自身が独自に執筆したものです。現場の肌感や最新動向も含め、信頼できる情報を目指しています。
不動産購入はそう何度もないご決断です。疑問や不安があれば、お気軽にご相談ください。納得感を持ってお取引いただけるよう、サポートいたします。
