エクセル東陽町[仲介手数料無料]

代表・春日秀典
仙台堀川公園に隣接。
2~3か月分の月収の節約。仲介手数料無料・半額・割引って何ですか??
ロータス不動産の仲介手数料無料とは、売主様より手数料をいただくことにより、買主様の手数料を免除するというビジネスモデル。新規リノベ、新築戸建てのような商品物件に適用できます。手数料無料にできない物件は、原則として手数料半額(「3%+6万+税」の半分)で対応しています。
もちろん、ロータス不動産は手数料の安さだけがウリの会社ではなく、知識と経験を活かし、いいづらい情報、リスクも事前に説明し、お客様の購入・売却をサポートしています。そのことは実績やブログなどで確認いただけるでしょう。
エクセル東陽町の解説

代表・春日秀典
築41年0か月の新耐震で、 好立地の大規模物件です。
エクセル東陽町は東西線「東陽町」駅から徒歩14分、「南砂町」駅からは徒歩17分です。14階建て新耐震基準のマンションです。
260世帯のビッグコミュニティです。平成25年にエレベーター改修工事、平成29年に排水管更新工事履歴があります。管理体制は良好です。
エクセル東陽町は「仙台堀川公園」が目の前にあります。「まいばすけっと南砂2丁目店」まで徒歩3分、「オーケー 尾高橋店」まで徒歩5分です。
- 江東区南砂1丁目の住所
- 東西線「東陽町」駅徒歩13分
- 江東区立第四砂町小学校 300m学区
- 耐震基準は新耐震
- 住宅ローン控除は耐震基準適合証明により利用可
- 浅沼組 間組 他2社が施工を担当(大手)
維持・管理の体制
近鉄住宅管理㈱の全部委託(日勤)管理。
災害・耐震
1984/12築で、 総戸数266戸の 大規模な鉄骨鉄筋コンクリート14階建て。
2025年12月の時点で 築 41年 0か月となります。1981年6月以降の建築確認により新耐震です。高い安全性が期待できます。
洪水や高潮の浸水想定図
江東区の災害マップなどをご覧いただけるよう区のウェブサイトへのリンクを用意しました。
相場・価格履歴
過去に当社サイトが公開情報から収集したリノベーションマンションの売出履歴です。 また、それから想定できる「個人売り物件の予想価格」「不動産業者による買取価格」をシミュレーションしました。 売却相談も歓迎。
| 時期 | フロア | 面積 | リノベ物件 相場 (履歴・万円/㎡) |
通常状態の 相場 (想定目安・万円/㎡) |
買取の相場 (想定目安・万円/㎡) |
備考 |
|---|---|---|---|---|---|---|
| 2024/3 | 4階 | 約66㎡ | @57.35 | @47.6 | @33.2 | |
| 2024/3 | 9階 | 約66㎡ | @58.72 | @49 | @34.2 | |
| 2024/1 | 10階 | 約66㎡ | @60.38 | @50.6 | @35.5 | |
| 2023/8 | 11階 | 約66㎡ | @61.86 | @52.1 | @36.6 | |
| 2023/4 | 13階 | 約66㎡ | @60.23 | @50.5 | @35.4 | |
| 2023/3 | 13階 | 約66㎡ | @64.92 | @55.2 | @38.9 | |
| 2023/1 | 13階 | 約66㎡ | @66.43 | @56.7 | @40 | |
| 2022/12 | 13階 | 約66㎡ | @67.95 | @58.2 | @41.1 | |
| 2022/10 | 13階 | 約66㎡ | @69.46 | @59.7 | @42.2 | |
| 2022/10 | 8階 | 約66㎡ | @67.95 | @58.2 | @41.1 | |
| 2022/9 | 8階 | 約66㎡ | @69.46 | @59.7 | @42.2 | |
| 2022/8 | 13階 | 約66㎡ | @72.34 | @62.6 | @44.4 | |
| 2022/8 | 8階 | 約66㎡ | @70.97 | @61.2 | @43.4 | |
| 2022/7 | 8階 | 約66㎡ | @72.49 | @62.8 | @44.5 | |
| 2022/5 | 8階 | 約66㎡ | @75.51 | @65.8 | @46.8 | |
| 2022/4 | 7階 | 約64㎡ | @66.04 | @56.2 | @39.6 | |
| 2022/2 | 7階 | 約64㎡ | @67.43 | @57.6 | @40.6 | |
| 2021/12 | 7階 | 約64㎡ | @68.97 | @59.2 | @41.8 |
出典:当社サイト
過去の掲載物件
こちらの事例物件は成約となりましたが、当社ではほかにも仲介手数料もしくは半額で物件を紹介・お取り扱いしております。
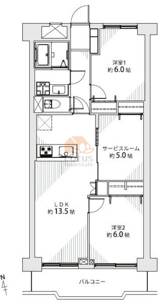
過去掲載物件 / 13階 / 66.08m²
仲介料手数料無料で取扱していました
- 所在階
- 13階
- 間取り
- 2SLDK
- 専有面積
- 66.08㎡
- バルコニー
- 7.53㎡
- 管理費
- 7810円
- 修繕積立金
- 10180円
・「エクセル東陽町」は南向き・13階部分・日当たり眺望良好です。
・内装はフルリノベーションです。

過去掲載物件 / 8階 / 66.08m²
- 所在階
- 8階
- 間取り
- 2SLDK
- 専有面積
- 66.08㎡
- バルコニー
- 7.53㎡
- 管理費
- 7810円
- 修繕積立金
- 10180円
・「エクセル東陽町」はパントリー・ウォークインうローゼット・テレワークデスク付きです。
・内装はリノベーションです。

物件概要
| 所在地 |
東京都江東区南砂1丁目19-1
|
||
|---|---|---|---|
| 交通 |
東西線 東陽町駅 徒歩14分 東西線 南砂町駅 徒歩17分 |
||
| 築年 | 1984/12築 | ||
| 規模・構造 | 鉄骨鉄筋コンクリート 14階建て 総戸数266戸 | ||
| 新築時売主 | 近鉄不動産(株) | ||
| 施工 | ㈱浅沼組・㈱間組・㈱錢高組共同企業体・近畿工業㈱ | ||
| 土地権利 | 所有権 | ||
| 用途地域 | 準工業 | ||
| 管理形態 | 全部委託 日勤 | ||
| 管理会社 | 近鉄住宅管理㈱ | ||
| 管理費単価 | |||
地図、周辺環境
江東区南砂1丁目19-1
学校区
小学校:江東区立第四砂町小学校(4分)
中学校:第二南砂中学校(5分)
Convenience Store
- ポプラ 南砂2丁目店 分
SuperMarket,etc
- まいばすけっと 南砂2丁目店 2分
- 西友 東陽町店 7分
- スーパータイヨー東陽町店 7分
- OKストア 尾高橋店 4分
Medical
- 深川立川病院付属有料老人ホーム扇苑南砂 4分
- 鈴木歯科医院 3分
- 南砂メディカルクリニック 5分
- 小林歯科医院 5分
Kindergarten
- 江東区立 南陽幼稚園 7分
- 南砂第四保育園 7分
- 南砂第三保育園 5分
Bank
- 第一勧業信用組合 千田町支店 9分
- 東京東信用金庫江東中央支店 7分
- 東京シティ信用金庫深川支店 9分
- 東日本銀行 深川支店 10分
Parks
- 南砂緑道公園 4分
- 横十間川親水公園 3分
電話:03-5809-1630
営業時間:9:30~20:00/水曜定休
よくある仲介手数料無料・半額Q&A
仲介手数料は無料とかいって、超怪しいんですが?
仲介手数料無料にできるわけは、売主さんから手数料をいただいているからです。リノベマンション・新築戸建て・分譲宅地など、商品タイプの物件は広告費に相当する部分を仲介手数料として正当な報酬として支払ってくれます。手数料両手の業者と比べれば半分ですが、それでも23区ならかなりの高額になりますので大丈夫です。
仲介手数料無料のデメリットはありますか?
仲介手数料無料のデメリットと言われることは、低レベル業者だと発生する可能性がある問題を仲介手数料無料になすりつけているだけです。話をすり替えているだけで、実際には手数料有料でも起こりえることです。ただし売却で仲介手数料無料をやるとデメリットが生じることもあります。
仲介手数料無料なんて大したことない不動産屋ですよね?
大きな会社ではないのはその通りですが、大したことない会社かと言われれば、それはちがいます。ウェブに大量の露出をして、少々なら業界でも認識された会社です。今このページを見ていただいているのが何よりの証拠。当社は押し売りせず、丁寧に寄り添うのがロータス不動産のスタイルです。知識と経験を活かし、物件の良いところだけでなく、気になるところも、表面的な情報だけでなく、見えにくいリスクや将来性まで、あらゆる方向から包み隠さず情報をお伝えしています。ご期待ください。
仲介手数料は無料といっても、他にお金がかかるのではないですか?
ローン利用の場合、当社では調査事務手数料を33000円を頂いております※。これは不動産の調査に利用します。マンションの場合、積立金の残高の最新情報などは、管理会社に対する調査費用がかかり、これに使います。念ため申し上げますと、登記関連費用、銀行費用、税金、火災保険などの諸費用の負担がございますが、これらは外部のものなので、どの仲介業者でも差はありません。
その他「仲介手数料無料・半額のご質問と詳しい説明は以下のリンクからご覧いただけます。
詳しい情報を見る更新日:
近隣・沿線・類似の物件
沿線の販売中物件
ツインシティ弐番館アルス東砂 3890万円 2階 3
パティオ西早稲田 4198万円 8階 1
パティオ西早稲田 4980万円 5階 1
プレミスト神楽坂 16300万円 4階 3
門前仲町サマリヤマンション 7299万円 10階 3
中葛西スカイハイツ 4980万円 2階 3
グリーンヒル西葛西1号棟 6999万円 3階 3
グリーンパーク東砂 4680万円 4階 3
同じで駅でも特に徒歩分数が近い物件を選びました。
南砂と同じ町内のマンションを調べよう
南砂のマンションカタログの詳細はこちらです。
- コスモ東陽町シティフォルム
- 南砂住宅2号棟
- ウィルリベール南砂
- パークホームズ東陽町四季の庭
- グランディ南砂
- 南砂パブリックハイツ
- クリオ南砂町壱番館
- マイキャッスル東陽町イデアコート
- 東陽町第3ダイヤモンドマンション
- ヴェラハイツ南砂町
- ノヴェル南砂
- ウェルフェアグリーン南砂
- ライオンズマンション東陽町第3
- テラス東陽町ネクスタワー
- オーベル東陽町
- マイキャッスル南砂
- クレストフォルム南砂仙台堀川公園
- グリーンパーク南砂
- プラウド東陽町ガーデンズ
- ガーデンフラッグシティ
- コスモ東陽町親水公園
- コスモプレイス東陽町
- ゼファー東陽町
- ライオンズグローベル南砂アクアパーク
- グランイーグル南砂町
- 砂町マンション
- コープ南砂
- エンゼルハイム南砂
- 南砂公園ガーデニア
- エムステージイースティア
- 南砂四丁目住宅
- メイクスデザイン東陽町
- ナイスアーバン東陽町仙台堀川公園
- ロイズスクエア東陽町
- クレヴィア南砂
- ライオンズマンション南砂
- 南砂町グリーンハイツ
- モリス東陽町
- アクシアガーデン南砂
- パークハイム東陽町
- パセオ東京イースト
- レーベンハイム東陽町アクアリア
- ライオンズマンション東陽町
- 東陽町ガーデニア
- レクセルマンション東陽町
- ウインザーハイム南砂
- 南砂住宅8号棟
- フドウ東陽町ハイツ
- 東陽町公園ハイツ壱番館
- グランシティ東陽町2
- 藤和東陽町コープ
- ニックハイム東陽町第7
- 南砂キャピタルコータース
- スカイシティ南砂
- クレストフォルム南砂サウスステージ
- 南砂一丁目エステート
- シャンボール南砂
- エムステージウエスティア
- プレシス南砂
- シティタワー東陽町
- ナイスパークステイツ東陽町仙台堀川公園
- マンション東陽町
- トーア南砂マンション
区内の他地域のマンションを調べよう
区内の他の地域の物件も手数料割引にてご紹介できます。
- 江東区
- 有明
- 石島
- 海辺
- 永代
- 枝川
- 越中島
- 扇橋
- 大島
- 亀戸
- 北砂
- 木場
- 清澄
- 佐賀
- 猿江
- 塩浜
- 潮見
- 東雲
- 白河
- 新大橋
- 新木場
- 新砂
- 住吉
- 千田
- 高橋
- 辰巳
- 東陽
- 常盤
- 富岡
- 豊洲
- 東砂
- 平野
- 深川
- 福住
- 冬木
- 古石場
- 牡丹
- 三好
- 毛利
- 森下
- 門前仲町
- 夢の島
- 若洲
- 千石
南砂で似たような特徴のマンションを確認しよう
担当者

私が担当します:春日秀典
新築・中古を問わず、分譲マンションや戸建ての販売・開発に20年以上携わってきました。専門知識が欠かせない不動産の世界だからこそ、宅地建物取引士や公認不動産コンサルティングマスターなどの資格を活かして、日々の業務に取り組んでいます。
当社のサイトでは、物件の魅力はもちろん、将来的な資産価値や注意点まで率直にお伝えしています。「納得して取引できた」と思えるよう、判断材料をご提供しています。
なお、当サイトに掲載している情報は、すべて私自身が独自に執筆したものです。現場の肌感や最新動向も含め、信頼できる情報を目指しています。
不動産購入はそう何度もないご決断です。疑問や不安があれば、お気軽にご相談ください。納得感を持ってお取引いただけるよう、サポートいたします。
