ルネ中村橋[仲介手数料無料]

代表・春日秀典
駅徒歩2分の好立地。
2~3か月分の月収の節約。仲介手数料無料・半額・割引って何ですか??
ロータス不動産の仲介手数料無料とは、売主様より手数料をいただくことにより、買主様の手数料を免除するというビジネスモデル。新規リノベ、新築戸建てのような商品物件に適用できます。手数料無料にできない物件は、原則として手数料半額(「3%+6万+税」の半分)で対応しています。
もちろん、ロータス不動産は手数料の安さだけがウリの会社ではなく、知識と経験を活かし、いいづらい情報、リスクも事前に説明し、お客様の購入・売却をサポートしています。そのことは実績やブログなどで確認いただけるでしょう。
ルネ中村橋の解説

代表・春日秀典
駅至近の立地の中規模物件です。
維持・管理の体制
日本ハウズイング(株)の全部委託(日勤)管理。
施設・設備
- 駐車場 : あり(空き要確認)
災害・耐震
1981/01築で、 総戸数67戸の 鉄骨鉄筋コンクリート8階建て。
2025年12月の時点で 築 44年 11か月となります。耐震は要確認です。
洪水や高潮の浸水想定図
練馬区の災害マップなどをご覧いただけるよう区のウェブサイトへのリンクを用意しました。
相場・価格履歴
過去に当社サイトが公開情報から収集したリノベーションマンションの売出履歴です。 また、それから想定できる「個人売り物件の予想価格」「不動産業者による買取価格」をシミュレーションしました。 売却相談も歓迎。
| 時期 | フロア | 面積 | リノベ物件 相場 (履歴・万円/㎡) |
通常状態の 相場 (想定目安・万円/㎡) |
買取の相場 (想定目安・万円/㎡) |
備考 |
|---|---|---|---|---|---|---|
| 2023/5 | 5階 | 約47㎡ | @57.4 | @45.9 | @31.4 | |
| 2023/4 | 5階 | 約47㎡ | @59.34 | @47.9 | @32.9 | |
| 2023/4 | 5階 | 約47㎡ | @63.78 | @52.3 | @36.2 | |
| 2023/3 | 5階 | 約47㎡ | @68.03 | @56.6 | @39.3 | |
| 2023/2 | 5階 | 約47㎡ | @69.97 | @58.5 | @40.8 | |
| 2022/12 | 5階 | 約47㎡ | @71.88 | @60.4 | @42.2 | |
| 2022/11 | 5階 | 約51㎡ | @67.84 | @56.9 | @39.7 | |
| 2022/9 | 5階 | 約51㎡ | @71.73 | @60.8 | @42.6 |
出典:当社サイト
過去の掲載物件
こちらの事例物件は成約となりましたが、当社ではほかにも仲介手数料もしくは半額で物件を紹介・お取り扱いしております。
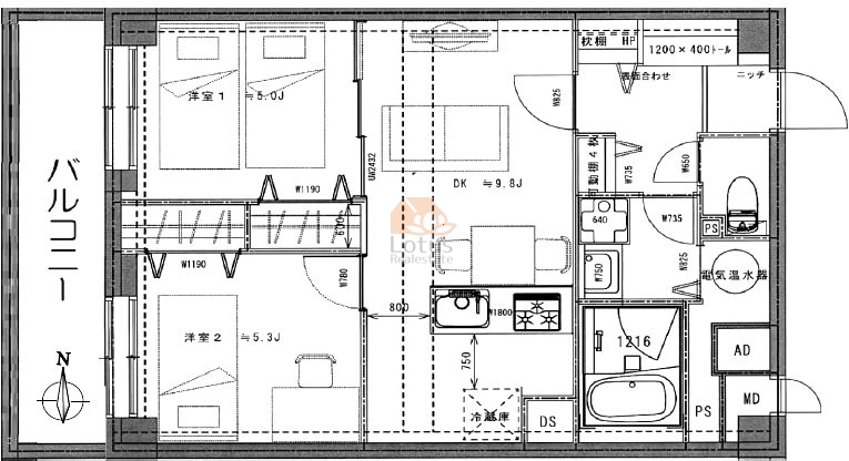
過去掲載物件 / 5階 / 47.02m²
仲介料手数料無料で取扱していました
- 所在階
- 5階
- 間取り
- 2DK
- 専有面積
- 47.02㎡
- バルコニー
- 4.67㎡
- 管理費
- 8700円
- 修繕積立金
- 11800円
・「ルネ中村橋」は最寄り駅徒歩2分の好立地です。
・内装はフルリノベーションです。

過去掲載物件 / 5階 / 51.3m²
仲介料手数料無料で取扱していました
- 所在階
- 5階
- 間取り
- 2LDK
- 専有面積
- 51.3㎡
- バルコニー
- 5.1㎡
- 管理費
- 9500円
- 修繕積立金
- 12880円
・「ルネ中村橋」は西向き・二重サッシで室内静か・対面キッチンウォークインクローゼット×2です。
・内装はフルリノベーションです。

過去掲載物件 / 7階 / 56.4m²
仲介料手数料無料で取扱していました
- 所在階
- 7階
- 間取り
- 2LDK
- 専有面積
- 56.4㎡
- バルコニー
- 5.1㎡
- 管理費
- 9500円
- 修繕積立金
- 12880円
・「ルネ中村橋」は7階西向き・眺望良好です。
・内装はリノベーションです。

物件概要
| 所在地 |
東京都練馬区中村北3丁目15-1
|
||
|---|---|---|---|
| 交通 | 西武池袋線 中村橋駅 徒歩2分 | ||
| 築年 | 1981/01築 | ||
| 規模・構造 | 鉄骨鉄筋コンクリート 8階建て 総戸数67戸 | ||
| 新築時売主 | 安宅地所 | ||
| 施工 | (株)長谷川工務店 | ||
| 土地権利 | 所有権 | ||
| 用途地域 | 商業 | ||
| 管理形態 | 全部委託 日勤 | ||
| 管理会社 | 日本ハウズイング(株) | ||
| 管理費単価 | 396.81 | ||
地図、周辺環境
練馬区中村北3丁目15-1
電話:03-5809-1630
営業時間:9:30~20:00/水曜定休
よくある仲介手数料無料・半額Q&A
仲介手数料は無料とかいって、超怪しいんですが?
仲介手数料無料にできるわけは、売主さんから手数料をいただいているからです。リノベマンション・新築戸建て・分譲宅地など、商品タイプの物件は広告費に相当する部分を仲介手数料として正当な報酬として支払ってくれます。手数料両手の業者と比べれば半分ですが、それでも23区ならかなりの高額になりますので大丈夫です。
仲介手数料無料のデメリットはありますか?
仲介手数料無料のデメリットと言われることは、低レベル業者だと発生する可能性がある問題を仲介手数料無料になすりつけているだけです。話をすり替えているだけで、実際には手数料有料でも起こりえることです。ただし売却で仲介手数料無料をやるとデメリットが生じることもあります。
仲介手数料無料なんて大したことない不動産屋ですよね?
大きな会社ではないのはその通りですが、大したことない会社かと言われれば、それはちがいます。ウェブに大量の露出をして、少々なら業界でも認識された会社です。今このページを見ていただいているのが何よりの証拠。当社は押し売りせず、丁寧に寄り添うのがロータス不動産のスタイルです。知識と経験を活かし、物件の良いところだけでなく、気になるところも、表面的な情報だけでなく、見えにくいリスクや将来性まで、あらゆる方向から包み隠さず情報をお伝えしています。ご期待ください。
仲介手数料は無料といっても、他にお金がかかるのではないですか?
ローン利用の場合、当社では調査事務手数料を33000円を頂いております※。これは不動産の調査に利用します。マンションの場合、積立金の残高の最新情報などは、管理会社に対する調査費用がかかり、これに使います。念ため申し上げますと、登記関連費用、銀行費用、税金、火災保険などの諸費用の負担がございますが、これらは外部のものなので、どの仲介業者でも差はありません。
その他「仲介手数料無料・半額のご質問と詳しい説明は以下のリンクからご覧いただけます。
詳しい情報を見る更新日:
近隣・沿線・類似の物件
沿線の販売中物件
ライオンズ石神井公園ステーションゲート 5880万円 3階 1
ライツ富士見台 5999万円 3階 3
ランドステージ練馬 6990万円 2階 2
オリエンタルグリーンコーポラス 3390万円 5階 2
カクエイ・ハイホーム 3580万円 4階 1
レクセルマンション石神井公園 4290万円 2階 3
KMエンゼルハイム中村橋 3280万円 5階 2
同じで駅でも特に徒歩分数が近い物件を選びました。
中村北と同じ町内のマンションを調べよう
中村北のマンションカタログの詳細はこちらです。
- メイゾン中村橋
- ライオンズマンション中村橋駅前
- フォーラムイン東京
- 大洋中村橋マンション
- ロイヤルステーション中村橋
- ビッグ武蔵野中村橋
- ライオンズシティ練馬
- サンコート中村北
- キャニオンマンション第2中村橋
- 中村橋シティハウス
- オリエンタルグリーンコーポラス
- 中村橋パークホームズオーチャードコート
- カーサ中村
- シャトレー信用
- ヴィラウチダ
- レーベンリヴァーレ中村橋エターリア
- 藤和ハイタウン練馬
- 藤和シティコープ練馬2
- メゾン練馬
- 練馬スカイホーム
- ランドステージ練馬
- ジュネス練馬
- 中村橋ダイヤモンドマンション
- 総建中村ハイム
- 三田中村橋第2コーポ
- ライツ中村橋
区内の他地域のマンションを調べよう
区内の他の地域の物件も手数料割引にてご紹介できます。
- 練馬区
- 旭丘
- 旭町
- 大泉学園町
- 大泉町
- 春日町
- 上石神井
- 上石神井南町
- 向山
- 小竹町
- 桜台
- 下石神井
- 石神井台
- 石神井町
- 関町北
- 関町東
- 関町南
- 高野台
- 田柄
- 立野町
- 土支田
- 豊玉上
- 豊玉北
- 豊玉中
- 豊玉南
- 中村
- 中村南
- 西大泉
- 西大泉町
- 錦
- 貫井
- 練馬
- 羽沢
- 早宮
- 東大泉
- 光が丘
- 氷川台
- 富士見台
- 平和台
- 南大泉
- 南田中
- 三原台
- 谷原
- 高松
- 北町
- 栄町
中村北で似たような特徴のマンションを確認しよう
担当者

私が担当します:春日秀典
新築・中古を問わず、分譲マンションや戸建ての販売・開発に20年以上携わってきました。専門知識が欠かせない不動産の世界だからこそ、宅地建物取引士や公認不動産コンサルティングマスターなどの資格を活かして、日々の業務に取り組んでいます。
当社のサイトでは、物件の魅力はもちろん、将来的な資産価値や注意点まで率直にお伝えしています。「納得して取引できた」と思えるよう、判断材料をご提供しています。
なお、当サイトに掲載している情報は、すべて私自身が独自に執筆したものです。現場の肌感や最新動向も含め、信頼できる情報を目指しています。
不動産購入はそう何度もないご決断です。疑問や不安があれば、お気軽にご相談ください。納得感を持ってお取引いただけるよう、サポートいたします。
