リビオレゾン駒込六義園イースト[仲介手数料無料]

代表・春日秀典
山手線駒込駅徒歩2分の好立地。
リビオレゾン駒込六義園イーストの解説

代表・春日秀典
築12年2か月の新耐震で、 駅至近の立地の中規模物件です。
リビオレゾン駒込六義園イーストは山手線他「駒込」駅徒歩2分です。平成25年築、14階建てのマンションです。
オートロック・宅配ボックスあります。ペット飼育可です。
耐震基準は新耐震で、住宅ローン控除は利用可です。
リビオレゾン駒込六義園イーストは徒歩2分に「豊島区立駒込東公園」があります。徒歩4分に「マルエツ プチ 駒込中里一丁目店」があります。
維持・管理の体制
株式会社日鉄コミュニティの全部委託(日勤)管理。
災害・耐震
2013/08築で、 総戸数40戸の 鉄筋コンクリート14階建て。
2025年10月の時点で 築 12年 2か月となります。1981年6月以降の建築確認により新耐震です。高い安全性が期待できます。
洪水や高潮の浸水想定図
豊島区の災害マップなどをご覧いただけるよう区のウェブサイトへのリンクを用意しました。
相場・価格履歴
過去に当社サイトが公開情報から収集したリノベーションマンションの売出履歴です。 また、それから想定できる「個人売り物件の予想価格」「不動産業者による買取価格」をシミュレーションしました。 売却相談も歓迎。
| 時期 | フロア | 面積 | リノベ物件 相場 (履歴・万円/㎡) | 通常状態の 相場 (想定目安・万円/㎡) | 買取の相場 (想定目安・万円/㎡) | 備考 | 
|---|---|---|---|---|---|---|
| 2023/3 | 1階 | 約55㎡ | @124.92 | @114.3 | @82.7 | 
出典:当社サイト
過去の掲載物件
こちらの事例物件は成約となりましたが、当社ではほかにも仲介手数料もしくは半額で物件を紹介・お取り扱いしております。
過去掲載物件 / 1階 / 55.22m²
 仲介料手数料無料で取扱していました
仲介料手数料無料で取扱していました
- 所在階
- 1階
- 間取り
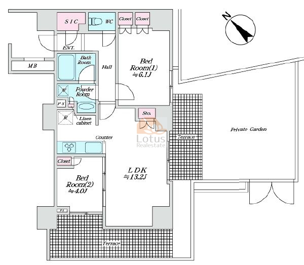
- 2LDK
- 専有面積
- 55.22㎡
- バルコニー
- 16.88㎡
- 管理費
- 15240円
- 修繕積立金
- 12700円
・「リビオレゾン駒込六義園イースト」はテラス+専用庭付き角部屋です。
・内装はリフォームです。

物件概要
| 所在地 | 
東京都豊島区駒込1丁目37-3            
 | ||
|---|---|---|---|
| 交通 | JR山手線 駒込駅 徒歩2分 | ||
| 築年 | 2013/08築 | ||
| 規模・構造 | 鉄筋コンクリート 14階建て 総戸数40戸 | ||
| 新築時売主 | 新日鉄興和不動産株式会社 | ||
| 施工 | 株式会社ナカノフドー建設 | ||
| 土地権利 | 所有権 | ||
| 用途地域 | 商業 | ||
| 管理形態 | 全部委託 日勤 | ||
| 管理会社 | 株式会社日鉄コミュニティ | ||
| 管理費単価 | 505.98 | ||
地図、周辺環境
豊島区駒込1丁目37-3
学校区
小学校:豊島区立駒込小学校(9分)
中学校:豊島区立駒込中学校(9分)
電話:03-5809-1630
営業時間:9:30~20:00/水曜定休
よくある仲介手数料無料・半額Q&A
仲介手数料は無料とかいって、超怪しいんですが?
仲介手数料無料にできるわけは、売主さんから手数料をいただいているからです。リノベマンション・新築戸建て・分譲宅地など、商品タイプの物件は広告費に相当する部分を仲介手数料として正当な報酬として支払ってくれます。手数料両手の業者と比べれば半分ですが、それでも23区ならかなりの高額になりますので大丈夫です。
仲介手数料無料のデメリットはありますか?
仲介手数料無料のデメリットと言われることは、低レベル業者だと発生する可能性がある問題を仲介手数料無料になすりつけているだけです。話をすり替えているだけで、実際には手数料有料でも起こりえることです。ただし売却で仲介手数料無料をやるとデメリットが生じることもあります。
仲介手数料無料なんて大したことない不動産屋ですよね?
大きな会社ではないのはその通りですが、大したことない会社かと言われれば、それはちがいます。ウェブに大量の露出をして、少々なら業界でも認識された会社です。今このページを見ていただいているのが何よりの証拠。当社は押し売りせず、丁寧に寄り添うのがロータス不動産のスタイルです。知識と経験を活かし、物件の良いところだけでなく、気になるところも、表面的な情報だけでなく、見えにくいリスクや将来性まで、あらゆる方向から包み隠さず情報をお伝えしています。ご期待ください。
仲介手数料は無料といっても、他にお金がかかるのではないですか?
ローン利用の場合、当社では調査事務手数料を33000円を頂いております※。これは不動産の調査に利用します。マンションの場合、積立金の残高の最新情報などは、管理会社に対する調査費用がかかり、これに使います。念ため申し上げますと、登記関連費用、銀行費用、税金、火災保険などの諸費用の負担がございますが、これらは外部のものなので、どの仲介業者でも差はありません。
その他「仲介手数料無料・半額のご質問と詳しい説明は以下のリンクからご覧いただけます。
詳しい情報を見る更新日:
近隣・沿線・類似の物件
沿線の販売中物件
 第15宮庭マンション 5999万円 5階 1 第15宮庭マンション 5999万円 5階 1
 五反田永谷タウンプラザ 3399万円 7階 1 五反田永谷タウンプラザ 3399万円 7階 1
 渋谷常磐松ハウス 14499万円 6階 2 渋谷常磐松ハウス 14499万円 6階 2
 カテリーナ三田タワースイート 16800万円 13階 2 カテリーナ三田タワースイート 16800万円 13階 2
 ステーションガーデンタワー 12800万円 23階 2 ステーションガーデンタワー 12800万円 23階 2
 高田馬場住宅 4980万円 7階 2 高田馬場住宅 4980万円 7階 2
 グランスイート文京本駒込 11900万円 6階 2 グランスイート文京本駒込 11900万円 6階 2
 ペアシティ・ルネッサンス 11980万円 7階 1 ペアシティ・ルネッサンス 11980万円 7階 1
同じ沿線のマンションを見てみよう
同じ沿線の他の駅にもマンションがあります。
同じで駅でも特に徒歩分数が近い物件を選びました。
駒込と同じ町内のマンションを調べよう
駒込のマンションカタログの詳細はこちらです。
- ルジェンテ駒込六義園リビオレゾン
- 駒込コーポビアネーズ
- プリンスハイツ駒込
- クロス
- プラウド駒込
- フェアロージュ駒込
- プリムローズ駒込染井坂
- カーサ駒込
- グランディーノ駒込
- パークハイム駒込
- グランシャトレ駒込
- ウェリス駒込レジデンス
- ライオンズマンション六義園
- 藤和シティホームズ駒込
- 駒込コーポラス
- レーベンリヴァーレシュアレジデンス駒込
- 藤和シティホームズ駒込駅前弐番館
- ラポール駒込
- 駒込千成オリエントコート
- 駒込富士ハイツ
- プリムローズ駒込
- シティハウス駒込
- 旭マンション
- シェフルール駒込駅前
- トーカンマンション駒込
- サニークレスト六義園
- 駒込第3コーポラス
- 染井コーポ
- ミオカステーロ駒込
- モンテベルデ六義園
- 駒込コーポラス
- 東急ドエルアルス駒込
- サンビューハイツ駒込
- メゾンドール駒込
- 六義園アビタシオン
- パークハウス駒込桜郷
- 染井コーポラス
- 駒込タウンブリーズ
- トーア駒込マンション
- 妙義坂マンション
区内の他地域のマンションを調べよう
区内の他の地域の物件も手数料割引にてご紹介できます。
駒込で似たような特徴のマンションを確認しよう
担当者

私が担当します:春日秀典
新築・中古を問わず、分譲マンションや戸建ての販売・開発に20年以上携わってきました。専門知識が欠かせない不動産の世界だからこそ、宅地建物取引士や公認不動産コンサルティングマスターなどの資格を活かして、日々の業務に取り組んでいます。
当社のサイトでは、物件の魅力はもちろん、将来的な資産価値や注意点まで率直にお伝えしています。「納得して取引できた」と思えるよう、判断材料をご提供しています。
なお、当サイトに掲載している情報は、すべて私自身が独自に執筆したものです。現場の肌感や最新動向も含め、信頼できる情報を目指しています。
不動産購入はそう何度もないご決断です。疑問や不安があれば、お気軽にご相談ください。納得感を持ってお取引いただけるよう、サポートいたします。
 
