アルカサル亀戸 902 2LDK
7999万円
60.61㎡ が仲介手数料無料!up
建物情報を見る
問い合わせ
7999万円
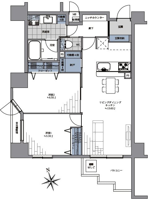
【間取図】アルカサル亀戸902※図面と現況に相違がある場合は現況を優先します。
株式会社ロータス不動産 営業時間:9:30~20:00 / 定休日:水曜日
亀戸駅からわずか徒歩5分の好立地で、9階南向きのパノラマビューと陽光を独り占めする暮らしが始まります。新規リノベーション済みの清潔な空間と、ペット飼育可能なゆとりが、都市生活の利便性と安らぎを同時に提供します。
仲介手数料無料でできますので、246万円ほどオトクになります!

建物情報
アルカサル亀戸
アルカサル亀戸
アルカサル亀戸 902 2LDK 60.61㎡
| 価格 | ||||
|---|---|---|---|---|
| 面積 | 60.61m² (バルコニー4.8m²) | |||
| 間取 | 2LDK 9階 |
|||
| 管理費等 | 管理費 12700円 修繕積立金 10850円 (合計 23,550円) | |||
駅から徒歩5分という立地は、毎朝の通勤ラッシュによるストレスや時間のロスを最小限に抑えたいビジネスパーソンに最適です。
9階南向きの明るい室内は、日中テレワークを行う方にとって、自然光に包まれた集中しやすい快適な作業環境を叶えます。
カメイドクロックなど最新の施設が身近にあることで、休日のレジャーや買い物の選択肢が広がり、単調になりがちな生活に刺激を与えます。
2026年2月28日時点の売出価格は7999万円でした。
築29年9か月です。新耐震です。高い安全性が期待できます。
ローン控除が利用できます。
リノベーション状況について
リノベーション:フローリング新規貼替、ユニットバス新規交換、洗面化粧台新規交換、トイレ新規交換、システムキッチン新規交換、壁・天井クロス新規貼替、建具・玄関収納新規交換、給湯器新規交換、洗濯水栓・防水パン新規交換
| 交通 | JR総武線 亀戸 徒歩5分 | ||
|---|---|---|---|
| 所在地 | 東京都江東区亀戸5丁目30-9 | ||
| 築年 | 1996/07築 | 現況/引渡/入居時期 | |
| 土地権利 | 所有権 | 土地面積 | m² |
| 物件番号 | 260228000002 | 掲載期限日 | 2026/05/17 |
| 状態 | 売り出し中 | 取引態様 | 仲介 |
更新
- 普通の不動産屋ではできないこと
押し売りせず、丁寧に寄り添うのがロータス不動産のスタイルです。知識と経験を活かし、物件の良いところだけでなく、気になるところも、表面的な情報だけでなく、見えにくいリスクや将来性まで、あらゆる方向から包み隠さず情報おお伝えしています。ご期待ください。
手続きを知る
ローンのことなど
その他はよくあるご質問をご覧ください。
不動産仲介手数料無料・半額のこと
+
No posts found in this category.
その他はよくあるご質問をご覧ください。
不動産仲介手数料無料・半額のこと
+
No posts found in this category.
他のお部屋の販売情報
沿線の販売中物件
コスモ平井メルベーユ 6598万円 5階 3
ハイネス亀戸 3480万円 2階 2
ブライトコート平井 6498万円 3階 3
東中野第2マンション 2980万円 4階 1
ヴェラハイツ新宿 3499万円 4階 1
北斗スターマンション亀戸 2990万円 3階 1
トーア第2亀戸マンション 4980万円 4階 3
プリマドムス立花 5980万円 12階 3
大久保ハウス 7299万円 5階 2
ファミール亀戸 5698万円 3階 3
メイツ新小岩親水公園 4480万円 4階 3
クレッセント東中野レジデンス 12990万円 3階 3
ライオンズマンション西荻第2 4799万円 4階 2
コスモプレイス亀戸 8490万円 3階 3
新小岩サマリヤマンション 2990万円 4階 2
江東区内の売り物件を探す
亀戸エリアのマンションカタログ
- コルサム亀戸
- エルニシア亀戸
- ライオンズマンション亀戸駅前公園
- 日神パレステージ亀戸第6
- セザール亀戸東公園
- レーベンハイム亀戸アークプロット
- ライオンズマンション柳島
- シティポート亀戸
- アルカサル亀戸
- ベルメゾン亀戸コンフォートレジデンス
- コスモプレイス亀戸
- パークタワー亀戸ステーションアリーナ
- ハイネス亀戸
- クローバー亀戸
- グランパース亀戸
- 秀和亀戸2丁目レジデンス
- レーベンハイム亀戸シャリテ
- キャピタルガーデン東大島クワイエ
- コンポーゼ亀戸
- キャッスルマンション亀戸
- ライオンズステージ亀戸中央公園
- パークサイド亀戸
- ブライトスクエア
- サンレイ天神橋
- コーヅ天神ハイツ
- クレアトール亀戸
- GSハイム亀戸
- プレジール東大島
- ドルミ亀戸
- ライオンズマンション亀戸第5
- ライオンズマンション亀戸蔵前橋通り
- ライオンズマンション亀戸カナメビル
- ライオンズマンション亀戸五丁目
- コープ野村亀戸
- パークナード亀戸ロジュマン
- ドミール三友
- ランドステージ東大島エグゼタワー
- 冨士見コーポビアネーズ
- ヴェラハイツ亀戸
- ザパークハウス亀戸
- キャピタルガーデン東大島ソレア
- ワコー亀戸マンション
- レーベンシティオリスタイル東京亀戸
- 亀戸第5ウィーンハイツ
- グリーンフォレスト錦糸町
- 亀戸パークハイツ
- ディークラディア亀戸ソレーア
- ベルグコート亀戸中央公園
- デュオスカーラ亀戸
- クレール亀戸
- 藤和亀戸南公園コープ
- アーデルハイム錦糸町
- アドリーム亀戸
- メゾンドール亀戸
- グランズ亀戸
- セザール亀戸
- ライオンズプラザ亀戸
- ウイング亀戸
- サンクタス亀戸
- ミオカステーロ亀戸
- ディークラディア亀戸ブリエア
- 東京錦糸町シティタワー
- 亀戸レジデンス
- パラシオン亀戸
- クレアメゾン天神橋
- トレゾール亀戸
- コスモ亀戸アネックス
- パークフロントテラス亀戸
- 亀戸天神リリエンハイム
- コスモ亀戸水神
- 中銀亀戸マンシオン
- 亀戸サニーフラット
- サンモール亀戸
- グランヴァン亀戸3
- グリーンパーク天神
- ヴェラハイツ亀戸参番館
- コスモ亀戸
- グランドコンシェルジュ亀戸
- ニューパークハイツ
- 藤和シティホームズ亀戸
- ハピーハイツニュー亀戸
- 信開ダイナスティ亀戸
- ウインベルデュエット亀戸第2
- マークス亀戸
- ビレッタ亀戸
- エスポワール亀戸
- アルテシモフィリーフ
- マンション亀戸天神ガーデニア
- パークホームズ亀戸ガーデンズコート
- セントレー亀戸
- カーサ第1亀戸
- ライオンズマンション亀戸
- ファミール亀戸
- 亀戸リリエンハイム
- エンゼルハイム大島
- レヴィ亀戸
- ラブリハイツ亀戸
- 日商岩井亀戸マンション
- 亀戸天神前スカイマンション
- 藤和シティコープ錦糸町
- 朝日プラザ亀戸
- レック亀戸グリーンマンション
- 秀和亀戸天神橋レジデンス
- サンシャインハイツ
- ハピーハイツ亀戸
- クレストフォルム亀戸ビュータワー
- ソラネットシティ
- 亀戸クリーンハイツ
- 東線亀戸マンション
- ライオンズマンション亀戸第2
- パールマンション亀戸
- 亀戸二丁目団地
- クレストフォルム亀戸ブライトスクエア
- グリーンキャピタル亀戸水神
- サンハイツ亀戸
- カーサ第2亀戸
- 日神デュオステージ亀戸
- ニックハイム亀戸
- 東京ソシオグランデ
- ニューハウス亀戸
- ディナスカーラ亀戸2
- 藤和亀戸コープ
- 亀戸サマリヤマンション
- トーア第2亀戸マンション
- 北斗スターマンション亀戸
- ファミール亀戸グランデージ
- 亀戸センタープラザ
- ヴェラハイツ第2亀戸
- クレイシア亀戸