西戸山タワーホウムズの売買情報[仲介手数料無料]

代表・春日秀典
総戸数576戸(N棟・C棟・S棟)の大規模構成で、ヨーロピアンな4つの広場と四季の風を伝える庭園に囲まれつつ、エレベーター3基やオートロックなど実務的な設備が淡々と機能するあたり、規模に対して“肩ひじ張らない”タワーだと感じます(まあ敷地が広すぎて初見は迷う可能性ありますが)。 まいばすけっと百人町1丁目店が徒歩1分という距離感なら、文化性のある街区に住みつつ生活インフラを近接させたい層に向き、日常と非日常の境界を緩やかに行き来する暮らし方が馴染む物件だと思います。
売出し中の住戸
西戸山タワーホウムズの価格・面積・間取り・画像を確認できます。仲介手数料無料・半額・割引です。

西戸山タワーホウムズの解説

代表・春日秀典
西戸山タワーホウムズのレビュー
2,110,833円/戸の積立金残高で、厚めの残高が備わり、良好な管理体制と予想できます。長期修繕計画もあります。築38年3か月の新耐震で、落ち着きのある立地の大規模物件です。
物件画像
西戸山タワーホウムズの特徴(立地・建物・周辺環境・周辺施設)
新大久保駅・高田馬場駅・大久保駅の3駅4路線が徒歩圏で、山手線内側ながら敷地が大きく、動線に余白が生まれています。都心アクセスの利便性に加え、線路沿いでありながらタワー群が奥に配置され、視界と距離が確保されることで心理的な密度が低く感じられます。朝、通り抜ける風が広場に抜けると、都市の喧騒が一歩退いた印象です。
西戸山タワーホウムズは地上25階建・総戸数576戸のノース・サウス・セントラルの3棟構成で、大林組施工により外観や躯体のスケール感が安定しています。共有空間はエレベーター3基、オートロック、防犯カメラ、24時間ゴミ出し可能なゴミ置き場、駐車場、駐輪場、ゲストルームなど用途に応じた設備が整い、日常利用を想定した実務的な選択肢です。陽光がタイル面に当たると淡い反射が広がり、装飾過多ではない上質さを感じます。
敷地全体は西戸山タワーガーデンと位置づけられ、四季の変化を感じる庭園やヨーロピアンを意識した広場が複数配置されています。グローブ座(円形劇場)の存在が文化的なアクセントとなり、生活圏のなかで観劇やイベントに触れる機会が自然に増えます。住宅棟が緑地と広場に囲まれる配置のため、夜は車音が遠ざかるタイミングがあり、都市と庭園の重なりが暮らしに穏やかさを与えるといえます。
西戸山公園や戸山公園が隣接し、子どもと遊ぶ家族やランナー、犬の散歩など異なる利用者が時間帯で入れ替わります。新宿区百人町というエリアは多国籍性が強い印象がありますが、学校や保育施設が徒歩圏にまとまっており、住宅地としての性格も確かに存在します。木々の間を抜ける光が芝生に落ちると境界が溶け、単なる「大型団地」とは異なる風景です。
まいばすけっと百人町1丁目店が徒歩1分にあり、日々の買い物を短時間で済ませられます。医療面では総合病院クラスへのアクセスは高田馬場エリアが近く、大学キャンパスや教育機関が点在しているため、進学期のライフスタイル変化に対応しやすい地域特性です。街へ出ると飲食店が深夜帯まで営業し、帰路では照明が店先から歩道に漏れ、生活圏の広さを感じます。
タワー3棟の広い敷地を背景に、単身からファミリー、文化系のライフスタイルを持つ居住者まで幅広く選択される物件といえます。高級住宅地というより、都市機能と庭園型配置計画を組み合わせたハイグレード志向の集合住宅で、都心を活動圏にしながら生活動線を短縮したい層に適しています。夜は広場を抜けるルートが静かに整い、帰宅時に切り替えが生まれる環境です。
維持・管理の体制
東急コミュニティーの全部委託(日勤)管理。
維持・修繕の対応状況
長期修繕計画: あり
修繕積立金の額: ¥1,215,839,684(2024-03-31時点)、戸あたり¥2,110,833円です。厚めの残高が備わり、良好な管理体制と予想できます。
過去の修繕履歴:
- 2024年 共用部照明器具LED化工事
- 2024年 インターホン更新工事
施設・設備
- 駐車場 : あり(空き状況は要確認)2,000~34,000円/月
- バイク置場 : あり
- 駐輪場 : あり
- エレベータ : あり
- 宅配ボックス : 要確認
- オートロック : あり
- TVドアフォン : あり
- その他施設 : トランクルーム 娯楽室 談話室 集会室 ゲストルーム スタジオ ルネッサンスのプラザ バロックのプラザ シェイクスピアのプラザ サンクンガーデン 円形広場 児童公園
マンションルール
- ペットの可否 : 不可
- 事務所の可否 : 不可
- 楽器の可否 : 規約参照
ペット可の内容:犬・猫の飼育は禁止
災害・耐震
1988/01築で、 総戸数576戸の 大規模な鉄筋コンクリート地下3階付25階建て。
2026年4月の時点で 築 38年 3か月となります。1981年6月以降の建築確認により新耐震です。高い安全性が期待できます。
洪水や高潮の浸水想定図
新宿区の災害マップなどをご覧いただけるよう区のウェブサイトへのリンクを用意しました。
物件概要
| 所在地 |
東京都新宿区百人町3丁目1-4
|
||
|---|---|---|---|
| 交通 |
JR山手線 新大久保駅 徒歩8分 JR山手線 高田馬場駅 徒歩12分 総武線「大久保」駅 徒歩10分 |
||
| 築年 | 1988/01築 | ||
| 規模・構造 | 鉄筋コンクリート 地下3階付 25階建て 総戸数576戸 | ||
| 新築時売主 | 新宿西戸山開発 | ||
| 施工 | 大林組・竹中工務店・鹿島建設・清水建設・大成建設・熊谷組・鴻池組・戸田建設・フジタ工業・三井建設・大日本土木・東急建設・飛鳥建設・日本国土開発・間組・前田建設工業 | ||
| 土地権利 | 所有権 | ||
| 用途地域 | 1種中高層 | ||
| 管理形態 | 全部委託 日勤 | ||
| 管理会社 | 東急コミュニティー | ||
| 管理費単価 | 363.4769905 | ||
相場・価格履歴
過去に当社サイトが公開情報から収集したリノベーションマンションの売出履歴です。 また、それから想定できる「個人売り物件の予想価格」「不動産業者による買取価格」をシミュレーションしました。 売却相談も歓迎。
| 時期 | フロア | 面積 | リノベ物件 相場 (履歴・万円/㎡) |
通常状態の 相場 (想定目安・万円/㎡) |
買取の相場 (想定目安・万円/㎡) |
備考 |
|---|---|---|---|---|---|---|
| 2026/4 | 4階 | 約81㎡ | @144.93 | @135.7 | @99.1 | |
| 2026/3 | 3階 | 約75㎡ | @109.31 | @100.1 | @72.5 | |
| 2026/3 | 7階 | 約83㎡ | @147.65 | @138.5 | @101.2 | |
| 2026/3 | 3階 | 約75㎡ | @111.95 | @102.8 | @74.5 | |
| 2026/3 | 19階 | 約76㎡ | @121.61 | @112.4 | @81.7 | |
| 2026/3 | 8階 | 約84㎡ | @164.89 | @155.8 | @114.1 | |
| 2026/3 | 3階 | 約71㎡ | @121.42 | @112 | @81.3 | |
| 2026/3 | 19階 | 約76㎡ | @124.23 | @115.1 | @83.7 | |
| 2026/2 | 3階 | 約71㎡ | @122.81 | @113.4 | @82.4 | |
| 2026/2 | 3階 | 約71㎡ | @125.61 | @116.2 | @84.4 | |
| 2026/1 | 15階 | 約79㎡ | @122.6 | @113.6 | @82.6 | |
| 2026/1 | 19階 | 約76㎡ | @128.16 | @119 | @86.6 | |
| 2026/1 | 15階 | 約79㎡ | @122.6 | @113.6 | @82.6 | |
| 2025/12 | 15階 | 約79㎡ | @132.88 | @123.9 | @90.3 | |
| 2025/12 | 19階 | 約76㎡ | @130.78 | @121.6 | @88.6 | |
| 2025/11 | 3階 | 約71㎡ | @127.99 | @118.6 | @86.2 | |
| 2025/11 | 15階 | 約79㎡ | @135.39 | @126.4 | @92.2 | |
| 2025/11 | 10階 | 約76㎡ | @130.78 | @121.6 | @88.6 | |
| 2025/11 | 15階 | 約79㎡ | @137.9 | @128.9 | @94 | |
| 2025/11 | 3階 | 約71㎡ | @138.34 | @128.9 | @93.9 | |
| 2025/10 | 15階 | 約79㎡ | @140.4 | @131.4 | @95.9 | |
| 2025/10 | 19階 | 約76㎡ | @140.09 | @130.9 | @95.5 | |
| 2025/10 | 19階 | 約76㎡ | @154.11 | @144.9 | @105.9 | |
| 2025/10 | 12階 | 約81㎡ | @131.17 | @122 | @88.9 | |
| 2025/10 | 15階 | 約79㎡ | @144.16 | @135.2 | @98.7 | |
| 2025/9 | 15階 | 約79㎡ | @147.93 | @138.9 | @101.5 | |
| 2025/9 | 3階 | 約71㎡ | @139.74 | @130.3 | @95 | |
| 2025/8 | 12階 | 約81㎡ | @134.86 | @125.7 | @91.6 | |
| 2025/8 | 15階 | 約79㎡ | @150.43 | @141.4 | @103.4 | |
| 2025/8 | 15階 | 約79㎡ | @156.7 | @147.7 | @108.1 | |
| 2025/7 | 13階 | 約81㎡ | @137.32 | @128.1 | @93.5 | |
| 2025/7 | 12階 | 約81㎡ | @139.77 | @130.6 | @95.3 | |
| 2025/7 | 13階 | 約81㎡ | @140.76 | @131.6 | @96 | |
| 2025/5 | 13階 | 約81㎡ | @144.43 | @135.3 | @98.8 | |
| 2025/5 | 12階 | 約81㎡ | @147.14 | @138 | @100.8 | |
| 2025/4 | 23階 | 約86㎡ | @168.48 | @159.5 | @116.9 | |
| 2025/3 | 15階 | 約79㎡ | @161.71 | @152.7 | @111.8 | |
| 2025/2 | 13階 | 約94㎡ | @142.78 | @134.1 | @98.1 | |
| 2025/1 | 15階 | 約80㎡ | @131.72 | @122.5 | @89.2 | |
| 2024/11 | 2階 | 約73㎡ | @104.99 | @95.7 | @69.2 | |
| 2024/9 | 2階 | 約73㎡ | @109.09 | @99.8 | @72.2 | |
| 2024/7 | 2階 | 約73㎡ | @114.56 | @105.2 | @76.3 | |
| 2024/5 | 13階 | 約79㎡ | @112.57 | @103.6 | @75.2 | |
| 2024/4 | 5階 | 約81㎡ | @118.1 | @108.9 | @79.1 | |
| 2024/3 | 2階 | 約73㎡ | @115.93 | @106.6 | @77.3 | |
| 2024/1 | 16階 | 約83㎡ | @141.88 | @132.8 | @96.9 | |
| 2024/1 | 22階 | 約83㎡ | @130.91 | @121.8 | @88.8 | |
| 2023/12 | 16階 | 約80㎡ | @121.76 | @112.5 | @81.8 | |
| 2023/12 | 22階 | 約80㎡ | @124.25 | @115 | @83.7 | |
| 2023/10 | 5階 | 約80㎡ | @109.31 | @100.1 | @72.5 | |
| 2023/9 | 22階 | 約83㎡ | @130.91 | @121.8 | @88.8 | |
| 2023/7 | 3階 | 約74㎡ | @94.27 | @85 | @61.2 | |
| 2023/7 | 3階 | 約74㎡ | @96.97 | @87.7 | @63.2 | |
| 2023/6 | 12階 | 約81㎡ | @98.37 | @89.2 | @64.4 | |
| 2023/5 | 3階 | 約74㎡ | @98.31 | @89 | @64.2 | |
| 2023/4 | 3階 | 約74㎡ | @99.66 | @90.4 | @65.2 | |
| 2023/3 | 3階 | 約74㎡ | @101.01 | @91.7 | @66.3 | |
| 2023/2 | 18階 | 約79㎡ | @112.57 | @103.6 | @75.2 | |
| 2023/2 | 3階 | 約74㎡ | @103.71 | @94.4 | @68.3 | |
| 2023/1 | 3階 | 約74㎡ | @106.41 | @97.1 | @70.3 | |
| 2023/1 | 15階 | 約81㎡ | @110.1 | @100.9 | @73.2 | |
| 2022/12 | 3階 | 約74㎡ | @107.75 | @98.5 | @71.3 | |
| 2022/11 | 13階 | 約81㎡ | @101.52 | @92.3 | @66.8 | |
| 2022/8 | 4階 | 約81㎡ | @92.33 | @83.1 | @59.9 |
出典:当社サイト
過去の掲載物件
こちらの事例物件は成約となりましたが、当社ではほかにも仲介手数料もしくは半額で物件を紹介・お取り扱いしております。
過去掲載物件 / 5階 / 80.32m²
仲介料手数料無料で取扱していました
- 所在階
- 5階
- 間取り
- 3SLDK
- 専有面積
- 80.32㎡
- バルコニー
- 14.93㎡
- 管理費
- 19966円
- 修繕積立金
- 14569円
・「西戸山タワーホウムズセントラルタワー」は25階建て5階部分・北西角部屋・L字バルコニー・シューズインクローゼット完備です。
・内装はリノベーションです。

過去掲載物件 / 22階 / 83.17m²
仲介料手数料無料で取扱していました
- 所在階
- 22階
- 間取り
- 2LDK
- 専有面積
- 83.17㎡
- バルコニー
- 9.1㎡
- 管理費
- 17479円
- 修繕積立金
- 12755円
・「西戸山タワーホウムズノースタワー」は22階部分・全室南向き・日当たり眺望良好です。
・内装はリノベーションです。

過去掲載物件 / 12階 / 81.12m²
仲介料手数料無料で取扱していました
- 所在階
- 12階
- 間取り
- 2LDK
- 専有面積
- 81.12㎡
- バルコニー
- 15.16㎡
- 管理費
- 17529円
- 修繕積立金
- 12786円
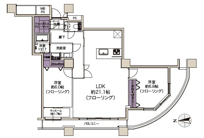
・「西戸山タワーホウムズセントラルタワー」は12階部分の眺望の良い南西角部屋・20帖超えの広いLDKが特徴です。
・内装はリノベーションです。

過去掲載物件 / 18階 / 79.77m²
仲介料手数料無料で取扱していました
- 所在階
- 18階
- 間取り
- 2SLDK
- 専有面積
- 79.77㎡
- バルコニー
- 13.22㎡
- 管理費
- 17126円
- 修繕積立金
- 12495円
・「西戸山タワーホウムズセントラルタワー」は高層18階部分の北東角部屋・リビングダイニングに床暖房完備・収納豊富な間取りが特徴です。
・内装はリノベーションです。

過去掲載物件 / 4階 / 81.12m²
仲介料手数料無料で取扱していました
- 所在階
- 4階
- 間取り
- 2LDK
- 専有面積
- 81.12㎡
- バルコニー
- 15.16㎡
- 管理費
- 17614円
- 修繕積立金
- 12850円
・「西戸山タワーホウムズサウスタワー」は西向きワイドスパン・南西角部屋・収納スペース豊富です。
・内装はフルリノベーションです。

過去掲載物件 / 3階 / 75.75m²
仲介料手数料無料で取扱していました
- 所在階
- 3階
- 間取り
- 2SLDK
- 専有面積
- 75.75㎡
- バルコニー
- 8.83㎡
- 管理費
- 15918円
- 修繕積立金
- 11618円
・「西戸山タワーホウムズセントラルタワー」は総戸数234戸の大規模マンション・書斎・ウォークインクローゼット・サービスルーム付きです。
・内装はリノベーションです。

地図、周辺環境
新宿区百人町3丁目1-4
学校区
小学校:新宿区立西戸山小学校(5分)
中学校:新宿区立新宿西戸山中学校(5分)
Convenience Store
- ファミリーマート 薬ヒグチ新宿百人町店 3分
- ファミリーマート 新宿大久保二丁目店 5分
- セブンイレブン 新宿百人町2丁目店 5分
- ローソン 百人町二丁目店 5分
SuperMarket,etc
- まいばすけっと 新宿百人町3丁目店 2分
- まいばすけっと 新大久保駅北店 6分
- マルエツ オレンジコート店 6分
- 業務スーパー 新宿大久保店 7分
Medical
- 青葉クリニック 1分
- 古川歯科クリニック 1分
- 新宿神経クリニック 3分
- JCHO東京山手メディカルセンター 3分
- 里見歯科医院 4分
- 光眼科医院 4分
- 新大久保文化通り診療所 4分
- 百人町診療所 5分
- 西戸山クリニック 5分
- ユキクリニック耳鼻咽喉科 5分
Kindergarten
- 新栄保育園 2分
- 新宿区立戸山幼稚園 3分
- 百人町保育園 5分
- 東京都民間保育園協会 分
- きこり 7分
- キッズパオ高田馬場あおぞら園 7分
- 日本ベビーシッター協会本部 7分
- 新宿区立西戸山幼稚園 8分
- 新宿区立大久保第一保育園 8分
- 北新宿雲母保育園 8分
Bank
Parks
- 西戸山公園 3分
- 都立戸山公園大久保地区 5分
- 戸山公園サービスセンター 5分
電話:03-5809-1630
営業時間:9:30~20:00/水曜定休
よくある仲介手数料無料・半額Q&A
仲介手数料は無料とかいって、超怪しいんですが?
仲介手数料無料にできるわけは、売主さんから手数料をいただいているからです。リノベマンションなどの物件は広告費に相当する部分を仲介手数料として支払ってくれます。それでも23区ならかなりの高額ですので経営も大丈夫です。
仲介手数料無料のデメリットはありますか?
仲介手数料無料のデメリットと言われることは、話のすり替えだけで、実際には低レベルな手数料有料でも起こりえることです。ただし売却で仲介手数料無料をやるとデメリットが生じることもあります。
仲介手数料無料なんて大したことない不動産屋ですよね?
大きな会社ではないのはその通りですが、大したことない会社かと言われれば、ちがいます。ウェブに大量の露出をして、少々なら業界でも認識された会社です。今このページを見ていただいているのが何よりの証拠。押し売りせず、丁寧に寄り添うのがスタイルです。知識と経験を活かし、表面的な情報だけでなく、見えにくいリスクや将来性まで、あらゆる方向から包み隠さず情報をお伝えしています。ご期待ください。
仲介手数料は無料といっても、他にお金がかかるのではないですか?
ローン利用の場合、当社では調査事務手数料を33000円を頂いております※。これは不動産の調査に利用します。マンションの場合、積立金の残高の最新情報などは、管理会社に対する調査費用がかかり、これに使います。念ため申し上げますと、登記関連費用、銀行費用、税金、火災保険などの諸費用の負担がございますが、これらは外部のものなので、どの仲介業者でも差はありません。
その他「仲介手数料無料・半額のご質問と詳しい説明は以下のリンクからご覧いただけます。
仲介手数料無料・半額のよくあるご質問更新日:
近隣・沿線・類似の物件
沿線の販売中物件
コートスクエア秋葉原 16990万円 8階 3
巣鴨第2SYマンション 5999万円 6階 1
ワールドシティタワーズブリーズタワー 22000万円 16階 2
秀和第2田町レジデンス 5998万円 11階 1
ベルジェ田端 5780万円 4階 2
feeth#001 7398万円 2階 2
ザ・タワー芝浦 12999万円 14階 2
日暮里第2ダイヤモンドマンション 8780万円 7階 3
東池袋ハイツ弐番館 6980万円 11階 2
東建島津山南ハイツ 8690万円 11階 2
グランドミレーニア 18800万円 31階 2
レジェンド西早稲田フォレストタワー 14999万円 6階 3
デュオ駒込古河庭園 8690万円 2階 2
TOWER RESIDENCE TOKYO 14380万円 15階 2
西戸山タワーホウムズノースタワー 12280万円 7階 3
同じ沿線のマンションを見てみよう
同じ沿線の他の駅にもマンションがあります。
百人町と同じ町内のマンションを調べよう
百人町のマンションカタログの詳細はこちらです。
- グランドヒルズA
- キャピタルプラザ大久保
- 日神シルバープラザ大久保第2
- ライオンズマンション新大久保第2
- ヴィアシテラ新宿
- グランドヒルズB
- 金子ハイツ
- シーズクロノス新宿戸山
- 大久保ハウス
- エクセルシオール新宿西戸山
- 大久保ユニオンビル
- バラードハイム新宿渡辺ビル
- 大久保ローヤルコーポ
- シエンコンドミニオ
- アゼリアコート
区内の他地域のマンションを調べよう
区内の他の地域の物件も手数料割引にてご紹介できます。
- 新宿区
- 愛住町
- 赤城下町
- 赤城元町
- 揚場町
- 荒木町
- 市谷加賀町
- 市谷甲良町
- 市谷砂土原町
- 市谷左内町
- 市谷鷹匠町
- 市谷田町
- 市谷台町
- 市谷長延寺町
- 市谷仲之町
- 市谷八幡町
- 市谷船河原町
- 市谷本村町
- 市谷薬王寺町
- 市谷柳町
- 市谷山伏町
- 岩戸町
- 榎町
- 大久保
- 改代町
- 神楽河岸
- 神楽坂
- 霞ケ丘町
- 片町
- 歌舞伎町
- 上落合
- 喜久井町
- 北新宿
- 北町
- 北山伏町
- 細工町
- 四谷坂町
- 左門町
- 三栄町
- 信濃町
- 下落合
- 下宮比町
- 白銀町
- 新小川町
- 新宿
- 水道町
- 須賀町
- 住吉町
- 高田馬場
- 箪笥町
- 大京町
- 築地町
- 筑土八幡町
- 津久戸町
- 天神町
- 戸塚
- 内藤町
- 中井
- 中落合
- 中里町
- 中町
- 納戸町
- 西落合
- 西五軒町
- 西新宿
- 西早稲田
- 二十騎町
- 払方町
- 原町
- 馬場下町
- 東榎町
- 東五軒町
- 袋町
- 舟町
- 弁天町
- 本塩町
- 南榎町
- 南町
- 南元町
- 南山伏町
- 山吹町
- 矢来町
- 横寺町
- 余丁町
- 四谷
- 若葉
- 若松町
- 若宮町
- 早稲田鶴巻町
- 早稲田南町
- 早稲田町
- 戸山
- 富久町
- 河田町
- 四谷本塩町
- 四谷三栄町
百人町で似たような特徴のマンションを確認しよう
担当者

私が担当します:春日秀典
新築・中古を問わず、分譲マンションや戸建ての販売・開発に20年以上携わってきました。専門知識が欠かせない不動産の世界だからこそ、宅地建物取引士や公認不動産コンサルティングマスターなどの資格を活かして、日々の業務に取り組んでいます。
当社のサイトでは、物件の魅力はもちろん、将来的な資産価値や注意点まで率直にお伝えしています。「納得して取引できた」と思えるよう、判断材料をご提供しています。
なお、当サイトに掲載している情報は、すべて私自身が独自に執筆したものです。現場の肌感や最新動向も含め、信頼できる情報を目指しています。
不動産購入はそう何度もないご決断です。疑問や不安があれば、お気軽にご相談ください。納得感を持ってお取引いただけるよう、サポートいたします。