シャンノール綾瀬[仲介手数料無料]

代表・春日秀典
駅徒歩3分の好立地。
2~3か月分の月収の節約。仲介手数料無料・半額・割引って何ですか??
ロータス不動産の仲介手数料無料とは、売主様より手数料をいただくことにより、買主様の手数料を免除するというビジネスモデル。新規リノベ、新築戸建てのような商品物件に適用できます。手数料無料にできない物件は、原則として手数料半額(「3%+6万+税」の半分)で対応しています。
もちろん、ロータス不動産は手数料の安さだけがウリの会社ではなく、知識と経験を活かし、いいづらい情報、リスクも事前に説明し、お客様の購入・売却をサポートしています。そのことは実績やブログなどで確認いただけるでしょう。
シャンノール綾瀬の解説

代表・春日秀典
築29年8か月の新耐震で、 駅至近の立地の中規模物件です。
シャンノール綾瀬は常磐線・千代田線「綾瀬」駅徒歩3分です。平成8年築、11階建て新耐震基準のマンションです。
オートロック完備しています。宅配ボックス完備しています。
耐震基準は新耐震で、住宅ローン控除は利用可です。
シャンノール綾瀬は「イトーヨーカドー 綾瀬店」まで徒歩2分です。徒歩1分にパン屋線「アヤセベーカリー」があります。徒歩3分にスーパーマーケット「ベルクス 足立綾瀬店」があります。
維持・管理の体制
日本ハウズイング株式会社の全部委託(日勤)管理。
災害・耐震
1996/04築で、 総戸数39戸の 鉄骨鉄筋コンクリート11階建て。
2025年12月の時点で 築 29年 8か月となります。1981年6月以降の建築確認により新耐震です。高い安全性が期待できます。
洪水や高潮の浸水想定図
足立区の災害マップなどをご覧いただけるよう区のウェブサイトへのリンクを用意しました。
相場・価格履歴
過去に当社サイトが公開情報から収集したリノベーションマンションの売出履歴です。 また、それから想定できる「個人売り物件の予想価格」「不動産業者による買取価格」をシミュレーションしました。 売却相談も歓迎。
| 時期 | フロア | 面積 | リノベ物件 相場 (履歴・万円/㎡) |
通常状態の 相場 (想定目安・万円/㎡) |
買取の相場 (想定目安・万円/㎡) |
備考 |
|---|---|---|---|---|---|---|
| 2023/2 | 8階 | 約63㎡ | @75.23 | @65.3 | @46.4 | |
| 2023/1 | 8階 | 約63㎡ | @76.8 | @66.9 | @47.5 | |
| 2022/10 | 8階 | 約63㎡ | @78.38 | @68.5 | @48.7 | |
| 2022/8 | 1階 | 約69㎡ | @61.14 | @51.6 | @36.3 | |
| 2022/7 | 1階 | 約69㎡ | @61.57 | @52 | @36.6 | |
| 2022/5 | 8階 | 約63㎡ | @81.52 | @71.6 | @51.1 | |
| 2022/5 | 1階 | 約69㎡ | @63 | @53.5 | @37.7 | |
| 2022/4 | 1階 | 約69㎡ | @64.44 | @54.9 | @38.7 | |
| 2022/1 | 1階 | 約69㎡ | @59.82 | @50.3 | @35.3 | |
| 2021/12 | 1階 | 約69㎡ | @61.25 | @51.7 | @36.4 |
出典:当社サイト
過去の掲載物件
こちらの事例物件は成約となりましたが、当社ではほかにも仲介手数料もしくは半額で物件を紹介・お取り扱いしております。
過去掲載物件 / 8階 / 63.54m²
仲介料手数料無料で取扱していました
- 所在階
- 8階
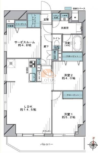
- 間取り
- 2LDK
- 専有面積
- 63.54㎡
- バルコニー
- 4.45㎡
- 管理費
- 13660円
- 修繕積立金
- 15630円
・「シャンノール綾瀬」は綾瀬駅徒歩3分・東南角部屋です。
・内装はリノベーションです。

過去掲載物件 / 1階 / 69.68m²
仲介料手数料無料で取扱していました
- 所在階
- 1階
- 間取り
- 2SLDK
- 専有面積
- 69.68㎡
- バルコニー
- 8.18㎡
- 管理費
- 14980円
- 修繕積立金
- 17140円
・「シャンノール綾瀬」は1階の南西角部屋です。
・内装は令和3年3月リノベーション済です。
物件概要
| 所在地 |
東京都足立区綾瀬3丁目16-15
|
||
|---|---|---|---|
| 交通 | 千代田線 綾瀬駅 徒歩3分 | ||
| 築年 | 1996/04築 | ||
| 規模・構造 | 鉄骨鉄筋コンクリート 11階建て 総戸数39戸 | ||
| 新築時売主 | (株)北野組 | ||
| 施工 | (株)北野組 | ||
| 土地権利 | 所有権 | ||
| 用途地域 | 商業 | ||
| 管理形態 | 全部委託 日勤 | ||
| 管理会社 | 日本ハウズイング株式会社 | ||
| 管理費単価 | 429.86 | ||
地図、周辺環境
足立区綾瀬3丁目16-15
学校区
小学校:足立区立東綾瀬小学校(14分)
中学校:足立区立東綾瀬中学校(4分)
Convenience Store
- ローソン メトロス綾瀬東口店 4分
- ファミリーマート 足立綾瀬三丁目店 4分
- ファミリーマート 足立綾瀬西口店 3分
- セブンイレブン 足立綾瀬2丁目店 4分
- セブンイレブン 綾瀬駅西口店 4分
SuperMarket,etc
- イトーヨーカドー 綾瀬店 2分
- ビッグ・エー 綾瀬店 4分
- まいばすけっと 綾瀬駅西店 5分
- アコレ 綾瀬駅東店 5分
Medical
- かなりあクリニック 2分
- Mデンタルクリニック綾瀬 1分
- 小森歯科医院 2分
- あやせ駅前腎クリニック 2分
Kindergarten
- 東部若葉保育園 7分
- ぬくもりのおうち保育綾瀬園 4分
- コンビプラザ綾瀬保育園 4分
Bank
- 東京東信用金庫綾瀬支店 3分
- 足立成和信用金庫綾瀬支店 3分
- 三井住友銀行 綾瀬支店 2分
- 江東信用組合 綾瀬支店 2分
- 筑波銀行 綾瀬支店 3分
Parks
電話:03-5809-1630
営業時間:9:30~20:00/水曜定休
よくある仲介手数料無料・半額Q&A
仲介手数料は無料とかいって、超怪しいんですが?
仲介手数料無料にできるわけは、売主さんから手数料をいただいているからです。リノベマンション・新築戸建て・分譲宅地など、商品タイプの物件は広告費に相当する部分を仲介手数料として正当な報酬として支払ってくれます。手数料両手の業者と比べれば半分ですが、それでも23区ならかなりの高額になりますので大丈夫です。
仲介手数料無料のデメリットはありますか?
仲介手数料無料のデメリットと言われることは、低レベル業者だと発生する可能性がある問題を仲介手数料無料になすりつけているだけです。話をすり替えているだけで、実際には手数料有料でも起こりえることです。ただし売却で仲介手数料無料をやるとデメリットが生じることもあります。
仲介手数料無料なんて大したことない不動産屋ですよね?
大きな会社ではないのはその通りですが、大したことない会社かと言われれば、それはちがいます。ウェブに大量の露出をして、少々なら業界でも認識された会社です。今このページを見ていただいているのが何よりの証拠。当社は押し売りせず、丁寧に寄り添うのがロータス不動産のスタイルです。知識と経験を活かし、物件の良いところだけでなく、気になるところも、表面的な情報だけでなく、見えにくいリスクや将来性まで、あらゆる方向から包み隠さず情報をお伝えしています。ご期待ください。
仲介手数料は無料といっても、他にお金がかかるのではないですか?
ローン利用の場合、当社では調査事務手数料を33000円を頂いております※。これは不動産の調査に利用します。マンションの場合、積立金の残高の最新情報などは、管理会社に対する調査費用がかかり、これに使います。念ため申し上げますと、登記関連費用、銀行費用、税金、火災保険などの諸費用の負担がございますが、これらは外部のものなので、どの仲介業者でも差はありません。
その他「仲介手数料無料・半額のご質問と詳しい説明は以下のリンクからご覧いただけます。
詳しい情報を見る更新日:
近隣・沿線・類似の物件
沿線の販売中物件
湯島ハイタウンB棟 5698万円 8階 2
東急ドエルアルス根津 8490万円 11階 2
シャトー赤坂台 7999万円 3階 2
千駄木リリエンハイム 8999万円 6階 1
湯島ハイタウンA棟 7399万円 13階 3
東急ドエルアルス北綾瀬 3690万円 2階 3
ライオンズプラザ北綾瀬 2899万円 5階 1
ルフォン町屋ブランシエラ 6499万円 2階 3
同じ沿線のマンションを見てみよう
同じ沿線の他の駅にもマンションがあります。
同じで駅でも特に徒歩分数が近い物件を選びました。
綾瀬と同じ町内のマンションを調べよう
綾瀬のマンションカタログの詳細はこちらです。
- アパガーデンコート綾瀬
- 朝日クレスパリオ綾瀬
- 綾瀬ロイヤルパレス
- サンクタス綾瀬ラクススクエア
- 綾瀬フレンドハイツ
- 綾瀬ロイヤルマンション
- レックスハイツ綾瀬ステーションタワー
- グランフォース綾瀬2
- ライオンズシティ綾瀬
- マイキャッスル綾瀬
- レックスハイツ綾瀬2
- キャニオンマンション綾瀬
- グリーンパーク綾瀬リバーサイド
- モアステージ綾瀬
- レーベン綾瀬リフィール
- デュオ綾瀬
- ライオンズマンション綾瀬第7
- 藤和綾瀬コープ
- グランシティユーロテラス
- レーベンハイム綾瀬パークヴェール
- 藤和シティホームズ綾瀬
- アールヴェール綾瀬
- リプル綾瀬
- セザール第5綾瀬
- グリーンパーク第10綾瀬
- グリーンパーク第13綾瀬
- グリーンパーク第17綾瀬
- グリーンパーク第11綾瀬
- 綾瀬プルミエ
- セザール第2東綾瀬公園
- ストークマンション綾瀬
- ルマージュ綾瀬
- グリーンパーク綾瀬公園通り2
- ライオンズマンション綾瀬第2
- リベール綾瀬
- グリーンパーク第14綾瀬
- グリーンパーク第4綾瀬
- グリーンパーク第12綾瀬
- マリンアーク綾瀬
- クレアトール綾瀬
- パークホームズ綾瀬二丁目
- キャヴィム綾瀬
- モリス綾瀬
区内の他地域のマンションを調べよう
区内の他の地域の物件も手数料割引にてご紹介できます。
- 足立区
- 青井
- 足立
- 入谷町
- 梅島
- 梅田
- 扇
- 大谷田
- 興野
- 小台
- 加賀
- 加平
- 北加平町
- 栗原
- 弘道
- 江北
- 古千谷
- 佐野
- 皿沼
- 鹿浜
- 島根
- 新田
- 神明
- 神明南
- 関原
- 千住
- 千住曙町
- 千住旭町
- 千住大川町
- 千住河原町
- 千住寿町
- 千住関屋町
- 千住龍田町
- 千住中居町
- 千住仲町
- 千住橋戸町
- 千住宮元町
- 千住元町
- 千住柳町
- 千住東
- 千住桜木
- 千住緑町
- 竹の塚
- 辰沼
- 中央本町
- 椿
- 東和
- 舎人
- 舎人町
- 中川
- 西綾瀬
- 西新井
- 西新井栄町
- 西新井本町
- 西伊興町
- 西加平
- 西保木間
- 花畑
- 東綾瀬
- 東保木間
- 東六月町
- 一ツ家
- 日ノ出町
- 保木間
- 保塚町
- 堀之内
- 南花畑
- 宮城
- 六木
- 本木
- 本木北町
- 本木西町
- 本木東町
- 本木南町
- 谷在家
- 柳原
- 六月
- 六町
- 伊興
- 西伊興
- 西竹の塚
- 東伊興
- 古千谷本町
- 舎人公園
- 伊興本町
- 谷中
- 平野
- 入谷
綾瀬で似たような特徴のマンションを確認しよう
担当者

私が担当します:春日秀典
新築・中古を問わず、分譲マンションや戸建ての販売・開発に20年以上携わってきました。専門知識が欠かせない不動産の世界だからこそ、宅地建物取引士や公認不動産コンサルティングマスターなどの資格を活かして、日々の業務に取り組んでいます。
当社のサイトでは、物件の魅力はもちろん、将来的な資産価値や注意点まで率直にお伝えしています。「納得して取引できた」と思えるよう、判断材料をご提供しています。
なお、当サイトに掲載している情報は、すべて私自身が独自に執筆したものです。現場の肌感や最新動向も含め、信頼できる情報を目指しています。
不動産購入はそう何度もないご決断です。疑問や不安があれば、お気軽にご相談ください。納得感を持ってお取引いただけるよう、サポートいたします。
