ライオンズマンション中野南台の売買情報[仲介手数料無料]

代表・春日秀典
ライオンズマンション中野南台は、モニター付きオートロックと防犯カメラを完備し、セキュリティを強化した安心の住環境を提供する10階建てのレジデンスです。宅配ボックスも備え、ペットも飼育可のため、大切な家族と快適に暮らせる住まいとなっています。
23区の中古マンション売買を扱う会社です
現在、当社サイトには売出物件の掲載はありませんが、不動産サイトで公開されているライオンズマンション中野南台が仲介手数料が無料・半額・割引になる場合があります。入力1~2分でメールで確認できます(なお賃貸の扱いはありません)
仲介手数料無料・半額・割引って?
売主から手数料をもらえるので買主は免除。これが手数料無料のカラクリ。それに該当しない物件は手数料半額です。もちろん、手数料の安さだけがウリではなく、知識と経験を活かし、いいづらい情報、リスクも事前に説明し、お客様の購入・売却をサポートしています。そのことは実績やブログなどで確認いただけるでしょう。

ライオンズマンション中野南台の解説

代表・春日秀典
ライオンズマンション中野南台のレビュー
長期修繕計画もあります。築41年0か月の新耐震で、便利なロケーションの中規模物件です。「液状化の可能性は低い」とされています。
物件画像
ライオンズマンション中野南台は、中野区南台3-45-8に位置し、東京メトロ丸ノ内線「方南町」駅まで徒歩7分にあります。近隣商業地域と第一種中高層住居専用地域にまたがっており、都市機能と落ち着いた住環境のバランスが取れたエリアです。
1985年5月築のSRC・RC造のマンションで、総戸数は38戸とコンパクトながら、プライバシーが守られる快適な住環境を提供しています。エントランスにはモニター付きオートロックを採用し、防犯カメラも設置されており、セキュリティ面でも安心の仕様となっています。また、宅配ボックスを完備しており、不在時でも荷物を受け取ることができます。ペット飼育可(規約あり)のため、大切なペットと一緒に生活を送ることができます。また、2016年の鉄部塗装工事、2018年の排水管更新工事(専有部)、2024年の給水管更新工事(共用部)と、計画的な修繕が行われているため、長期的に安心して住むことができる環境が整っています。
周辺には、徒歩5分にはスーパー「サミットストア 中野南台店」、徒歩4分にはコンビニ「セブンイレブン 南台店」、徒歩3分にはホームセンター「島忠 ホームズ中野本店」があり、日常の買い物に便利な立地です。さらに、徒歩3分には、「中野区立南台図書館」があります。
維持・管理の体制
株式会社大京アステージの全部委託(巡回)管理。
維持・修繕の対応状況
長期修繕計画: あり
修繕積立金の額: ¥9,750,012(2024-05-31時点)、戸あたり¥263,514円です。残高はやや少なめです。
過去の修繕履歴:
- 2024年02月 給水管更新工事(共用部)
- 2018年03月 排水管更新工事(共用部)
- 2018年03月 排水管更新工事(専有部)
- 2016年12月 鉄部塗装工事
- 2014年01月 EVセミリニューアル工事
- 2011年06月 ルーフバルコニー防水改修工事
- 2011年06月 屋上防水改修工事
- 2011年06月 大規模修繕工事
- 2011年05月 鉄部塗装工事
- 2011年05月 ルーフバルコニー防水改修工事
- 2011年05月 屋上防水改修工事
- 2011年05月 大規模修繕工事
- 2007年08月 インターホン改修工事
- 2005年08月 給水管更生工事(共用部)
施設・設備
- 駐車場 : あり(空き状況は要確認)30,000円/月
- バイク置場 : あり
- 駐輪場 : あり
- エレベータ : 要確認
- 宅配ボックス : 要確認
- オートロック : 要確認
- TVドアフォン : 要確認
- その他施設 : 要確認
マンションルール
- ペットの可否 : 可
- 事務所の可否 : 不可
- 楽器の可否 : 可
ペット可の内容:体高40cm以内・体重10kg以内の犬または猫は2匹まで、フェレット・うさぎ・リスなどの小動物、小鳥、観賞用魚類など
災害・耐震
1985/05築で、 総戸数37戸の 鉄骨鉄筋コンクリート10階建て。
2026年5月の時点で 築 41年 0か月となります。1981年6月以降の建築確認により新耐震です。高い安全性が期待できます。
洪水により予想される浸水深さは0~0.5mです。「液状化の可能性は低い」とされています。
洪水や高潮の浸水想定図
物件概要
| 所在地 |
東京都中野区南台3丁目45−8
|
||
|---|---|---|---|
| 交通 |
丸ノ内線 方南町駅 徒歩7分 丸ノ内線 中野富士見町駅 徒歩11分 |
||
| 築年 | 1985/05築 | ||
| 規模・構造 | 鉄骨鉄筋コンクリート 10階建て 総戸数37戸 | ||
| 新築時売主 | 大京観光株式会社 | ||
| 施工 | 東洋建設株式会社 | ||
| 土地権利 | 所有権 | ||
| 用途地域 | 近隣商業 | ||
| 管理形態 | 全部委託 巡回 | ||
| 管理会社 | 株式会社大京アステージ | ||
| 管理費単価 | 459.58 | ||
相場・価格履歴
過去に当社サイトが公開情報から収集したリノベーションマンションの売出履歴です。 また、それから想定できる「個人売り物件の予想価格」「不動産業者による買取価格」をシミュレーションしました。 売却相談も歓迎。
| 時期 | フロア | 面積 | リノベ物件 相場 (履歴・万円/㎡) |
通常状態の 相場 (想定目安・万円/㎡) |
買取の相場 (想定目安・万円/㎡) |
備考 |
|---|---|---|---|---|---|---|
| 2025/9 | 5階 | 約61㎡ | @110.06 | @100 | @72.2 | |
| 2025/6 | 5階 | 約61㎡ | @113.31 | @103.3 | @74.6 | |
| 2025/2 | 4階 | 約113㎡ | @81.84 | @73.7 | @53.2 | |
| 2024/8 | 1階 | 約55㎡ | @89.96 | @79.4 | @56.7 | |
| 2024/6 | 1階 | 約55㎡ | @93.23 | @82.7 | @59.1 | |
| 2024/2 | 9階 | 約51㎡ | @69.5 | @58.6 | @41 | |
| 2024/2 | 9階 | 約51㎡ | @74.32 | @63.4 | @44.6 | |
| 2024/2 | 9階 | 約51㎡ | @77.22 | @66.3 | @46.8 | |
| 2024/2 | 9階 | 約51㎡ | @83.01 | @72.1 | @51.1 | |
| 2023/10 | 6階 | 約61㎡ | @97.39 | @87.3 | @62.7 |
出典:当社サイト
過去の掲載物件
こちらの事例物件は成約となりましたが、当社ではほかにも仲介手数料もしくは半額で物件を紹介・お取り扱いしております。
過去掲載物件 / 4階 / 113.39m²
仲介料手数料無料で取扱していました
- 所在階
- 4階
- 間取り
- 4LDK
- 専有面積
- 113.39㎡
- バルコニー
- 22.06㎡
- 管理費
- 23200円
- 修繕積立金
- 34700円
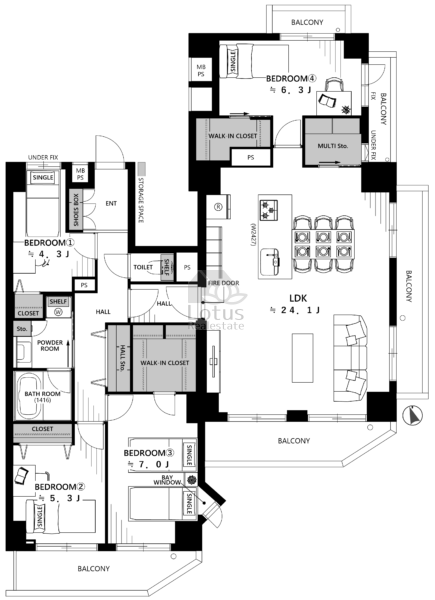
ライオンズマンション中野南台 401号室は、3方バルコニーに面した3方角部屋で窓が多く明るいお部屋、広々とし24帖のLDKとアイランドキッチン、ウォークインクローゼット2つ、パントリーなど収納方な間取りが魅力の物件です。リノベーションにより室内も一新され、最新設備も搭載されており、快適な生活を送ることができます。

過去掲載物件 / 1階 / 55.56m²
仲介料手数料無料で取扱していました
- 所在階
- 1階
- 間取り
- 2LDK
- 専有面積
- 55.56㎡
- バルコニー
- 6.07㎡
- 管理費
- 11400円
- 修繕積立金
- 14170円
・「ライオンズマンション中野南台」は通に面していない南西向き・専用庭付きです。
・内装はリノベーションです。

過去掲載物件 / 6階 / 61.6m²
仲介料手数料無料で取扱していました
- 所在階
- 6階
- 間取り
- 3LDK
- 専有面積
- 61.6㎡
- バルコニー
- 7.93㎡
- 管理費
- 12600円
- 修繕積立金
- 15710円
・「ライオンズマンション中野南台」は10階建て6階部分・南西角部屋・日当たり眺望良好です。
・内装はフルリノベーションです。

地図、周辺環境
中野区南台3丁目45−8
学校区
小学校:中野区立南台小学校(旧新山小学校)(9分)
中学校:中野区立南中野中学校(5分)
コンビニなど
- ミニストップ 南台5丁目店 4分
- セブンイレブン 南台店 4分
- ローソン 中野南台五丁目店 4分
- ファミリーマート 中野南台店 5分
スーパー・買い物
- 株式会社ライフコーポレーション 中野南台店 7分
- ライフ 南台店 7分
- サミットストア 中野南台店 4分
Medical
- 歯科室 福田 4分
- ひいらぎ歯科クリニック 3分
- やなだクリニック 3分
- 南台寺尾クリニック内科・小児科 3分
幼稚園
- なかみなみコスモ保育園 6分
- 中野区立弥生保育園 5分
- 中野みなみ保育園 7分
金融機関・銀行
- みずほ銀行 方南町支店 7分
公園・公共施設
- 和田公園 5分
電話:03-5809-1630
営業時間:9:30~20:00/水曜定休
よくある仲介手数料無料・半額Q&A
仲介手数料は無料とかいって、超怪しいんですが?
仲介手数料無料にできるわけは、売主さんから手数料をいただいているからです。リノベマンションなどの物件は広告費に相当する部分を仲介手数料として支払ってくれます。それでも23区ならかなりの高額ですので経営も大丈夫です。
仲介手数料無料のデメリットはありますか?
仲介手数料無料のデメリットと言われることは、話のすり替えだけで、実際には低レベルな手数料有料でも起こりえることです。ただし売却で仲介手数料無料をやるとデメリットが生じることもあります。
仲介手数料無料なんて大したことない不動産屋ですよね?
大きな会社ではないのはその通りですが、大したことない会社かと言われれば、ちがいます。ウェブに大量の露出をして、少々なら業界でも認識された会社です。今このページを見ていただいているのが何よりの証拠。押し売りせず、丁寧に寄り添うのがスタイルです。知識と経験を活かし、表面的な情報だけでなく、見えにくいリスクや将来性まで、あらゆる方向から包み隠さず情報をお伝えしています。ご期待ください。
仲介手数料は無料といっても、他にお金がかかるのではないですか?
ローン利用の場合、当社では調査事務手数料を33000円を頂いております※。これは不動産の調査に利用します。マンションの場合、積立金の残高の最新情報などは、管理会社に対する調査費用がかかり、これに使います。念ため申し上げますと、登記関連費用、銀行費用、税金、火災保険などの諸費用の負担がございますが、これらは外部のものなので、どの仲介業者でも差はありません。
その他「仲介手数料無料・半額のご質問と詳しい説明は以下のリンクからご覧いただけます。
仲介手数料無料・半額のよくあるご質問更新日:
近隣・沿線・類似の物件
沿線の販売中物件
藤和シティホームズ本郷 14280万円 8階 3
本郷パーク・ホームズ 12800万円 2階 2
パーク・ハイム中野富士見町 8780万円 5階 3
ルート四谷三丁目 6780万円 1階 1
ライオンズマンション高円寺 6180万円 2階 3
ニューローレルマンション 5980万円 9階 1
フォルム四谷外苑東 17480万円 5階 2
リモージュ南台 9380万円 9階 3
THE LEBEN 大塚山手 Hill Top Season 15499万円 2階 3
ライオンズシティ西新宿 8498万円 1階 1
アルテール新宿 15200万円 12階 3
クレストフォルム中野弥生町 10490万円 1階 2
プレシス文京小石川 静穏の杜 12499万円 3階 2
カインドステージ四谷三丁目 9499万円 2階 2
中野コーポビアネーズ 3180万円 3階 1
南台と同じ町内のマンションを調べよう
南台のマンションカタログの詳細はこちらです。
- レクセルマンション笹塚
- サーパス方南町
- スカイコート中野南台第2
- ナイスシティアリーナ中野南台
- 中野方南町グランドハイツ
- センチュリー中野南台
- 南台第2ローヤルコーポ
- サウスヒルズ448
- 中野南台パークホームズ
- アイディーコート中野南台
- 京王南台コーポラス
- マイトレイヤーコート
- パロス中野南台
- フェアロージュ方南町
- エステート南台
- 中野南台第1ローヤルコーポ
- 秋元ビル南台住宅
- 東急ドエルアルス中野南台
- リモージュ南台
- 南台ヒルズ
- インペリアル中野南フラット
- 幡ヶ谷ローヤルコーポ
- GSハイム中野南台
区内の他地域のマンションを調べよう
区内の他の地域の物件も手数料割引にてご紹介できます。
南台で似たような特徴のマンションを確認しよう
担当者

私が担当します:春日秀典
新築・中古を問わず、分譲マンションや戸建ての販売・開発に20年以上携わってきました。専門知識が欠かせない不動産の世界だからこそ、宅地建物取引士や公認不動産コンサルティングマスターなどの資格を活かして、日々の業務に取り組んでいます。
当社のサイトでは、物件の魅力はもちろん、将来的な資産価値や注意点まで率直にお伝えしています。「納得して取引できた」と思えるよう、判断材料をご提供しています。
なお、当サイトに掲載している情報は、すべて私自身が独自に執筆したものです。現場の肌感や最新動向も含め、信頼できる情報を目指しています。
不動産購入はそう何度もないご決断です。疑問や不安があれば、お気軽にご相談ください。納得感を持ってお取引いただけるよう、サポートいたします。