大森プロストシティレジデンス 1025 2LDK
8980万円
68.22㎡ が仲介手数料無料!up
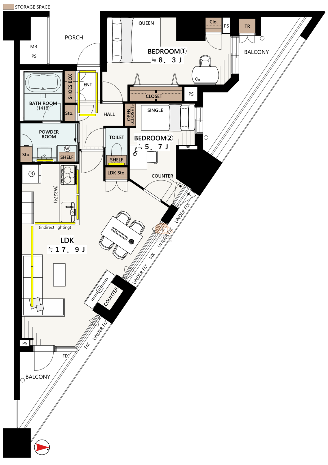
免震構造 のランドマークレジデンス! 約17.9帖のLDK と充実の共用施設 で、安心でゆとりある生活を実現できます。
仲介手数料無料でできますので、275万円ほどオトクになります!

大森プロストシティレジデンス
大森プロストシティレジデンス 1025 2LDK 68.22㎡
| 価格 | ||||
|---|---|---|---|---|
| 面積 | 68.22m² 壁芯(バルコニー13.61m²) | |||
| 間取 | 2LDK 10階 東 |
|||
| 管理費等 | 管理費 12416円 修繕積立金 21301円 (合計 33,717円) | |||
| 所在地 | 東京都大田区大森北2丁目13-31 | |||
| 設備・条件 | ||||
| 周辺施設 | 大田区立入新井第五小学校 徒歩9分 大田区立大森第二中学校 徒歩12分 | |||
地震時の揺れを軽減する免震構造 のタワーレジデンスで、大規模災害への備えを重視するお客様へ。京浜東北線「大森」駅徒歩7分、京急「大森海岸」駅徒歩3分 の好立地で都心アクセスも良好です。
約17.9帖のLDK は対面キッチン (IHコンロ、食洗機、ディスポーザー付)で、開放的な空間で家族とのコミュニケーションを楽しみ、家事の効率を上げたいお客様の悩みを解決します。共用施設 も充実しています。
24時間警備員常駐 の安心セキュリティ、ダブルオートロック で、防犯意識の高いお客様におすすめです。マンション隣接でイトーヨーカドー があり、日常の買い物に困りません。
2025/11/12時点の売出価格は8980万円でした。
大森海岸駅徒歩5分・大森駅徒歩10分という動線の軽さに、総戸数565戸・25階建てタワーレジデンスの“街に溶けるスケール感”がちょっと不思議に馴染むのですが、歩いているとその違和感がむしろ心地よく感じられます。オートロックや宅配ボックス、そしてペット飼育可の柔らかい余白が生活にゆとりをつくり、実際に足を運んだときに思った以上に落ち着いた気分になる物件だな…という印象です。
ペットの飼育は可です。 1住戸につき、体長50cm・体重10kg以下の犬・猫どちらか1匹飼育可。
築20年10か月です。新耐震です。高い安全性が期待できます。 ローン控除は可です。
リノベーション状況について
リノベーション:キッチン交換、浴室交換、洗面交換、トイレ交換、水廻り床張替、フローリング新規(張替)、建具交換、照明交換、下足入、全クロス貼替、アクセントクロス、ハウスクリーニング
| 交通 |
JR京浜東北線 大森 徒歩7分 京急本線 大森海岸 徒歩5分 | ||
|---|---|---|---|
| 築年 | 2005/01築 | 現況/引渡/入居時期 | 空家 |
| 土地権利 | 所有権 | 土地面積 | m² |
| 物件番号 | 251112000019 | 掲載期限日 | 2025/12/10 |
| 状態 | 売り出し中 | 取引態様 | 仲介 |
更新
- 普通の不動産屋ではできないこと
押し売りせず、丁寧に寄り添うのがロータス不動産のスタイルです。知識と経験を活かし、物件の良いところだけでなく、気になるところも、表面的な情報だけでなく、見えにくいリスクや将来性まで、あらゆる方向から包み隠さず情報おお伝えしています。ご期待ください。
手続きを知る
ローンのことなど
ローン相談も対応いたします。ローンの対応力は、10年以上営業している会社の強みです。お客様専用の諸費用例を作成いたします。諸費用のローン化もご対応できます。親身に対応いたします。
その他はよくあるご質問をご覧ください。
ローン相談も対応いたします。ローンの対応力は、10年以上営業している会社の強みです。お客様専用の諸費用例を作成いたします。諸費用のローン化もご対応できます。親身に対応いたします。
その他はよくあるご質問をご覧ください。